Toredad skeemid

Siia ei postita ostu-müügi kuulutusi!
kunn24
Ehituspenskar
Ehituspenskar
Postitusi: 4376
Liitunud: 11 Veebr 2018, 14:45
On tänanud: 48 korda
On tänatud: 146 korda

Toredad skeemid

Lugemata postitus Postitas kunn24 »

Küülalise soovil avapauk toredast kilbiskeemist. Tegin olemasolevast tõmmise, et mingeid andmeid kaasa ei tuleks. Ei ole minu asi kellelegi näpuga näidata.
Alustaks näiteks siseneva PEN-i ühendusest. Skeemi järgi ühendub N-ile. Peaks aga kuhu? Siis, kus on PE ja N-i ühenduspunkt? Ok, vb olla teisel lehel. Kuid loogiliselt peaks olema TN-C sisestuse juures. 40 A liini taga on 52 kW. Nunuh.
Liigpingekaitse (piiriku) ühine juht ühendub kuhu? Aga peaks?
Rikkevoolukaitsete skeemid on ikka eriline tase jne jne.
skeem10.PNG
Küülaline
Ehituspenskar
Ehituspenskar
Postitusi: 6685
Liitunud: 02 Veebr 2009, 22:46
On tänanud: 112 korda
On tänatud: 149 korda

Re: Toredad skeemid

Lugemata postitus Postitas Küülaline »

Siin on jah, kunn24 poolt loetletud vead kõik olemas. Võimsus 52 kW ja 40 A pealüliti iseenesest ei ole viga, kuna tegu on eramaja kilbiga, mille peakaitse liitumiskilbis on kindlasti väiksem, kui 40 A. See on nn installeeritud võimsus, kus kõigile pistikupesade liinidele on arvestatud 2 ja 3 kW, ning kõik on kokku liidetud. Seal peaks teine number ka juures olema - arvutuslik võimsus - vastavalt peakaitsele või kilbi max võimsus vastavalt pealülitile. Ühendus maandusele on näitamata, kuna PEN lahutuspunkt üldiselt maandatakse.
Liigpingepiirikute tähistus peaks olema tüüp T1+T2 (mitte klass ja võiks ka parameetrid olla).
RVK kummaline tingmärk ei ole otseselt viga.
Huvitav, mis aasta projekt see on, kui kaablid on PPJ?
EH.INS.
Ehituspenskar
Ehituspenskar
Postitusi: 4239
Liitunud: 29 Juul 2024, 10:56
On tänanud: 1 korda
On tänatud: 96 korda

Re: Toredad skeemid

Lugemata postitus Postitas EH.INS. »

Mis te mehed siin jama ajate???
Küsige T25 käest - ta sõbral on kohe teile õige vastus anda - kõik mis te siin arutate on ju täielik jama...
Urmas
autodidakt
Postitusi: 13352
Liitunud: 17 Apr 2009, 23:51
On tänanud: 408 korda
On tänatud: 448 korda

Re: Toredad skeemid

Lugemata postitus Postitas Urmas »

EH.INS. kirjutas: 23 Mai 2025, 22:56 Mis te mehed siin jama ajate???
Küsige T25 käest - ta sõbral on kohe teile õige vastus anda - kõik mis te siin arutate on ju täielik jama...
:) Sellise sinu postituse kohta oleks mõned aastad tagasi tulnud kaks lehekülge arvamusi su isikuomaduste(hallrakkude olemasolu) kohta. :)
NB! Ei võta materiaalset vastutust oma kommentaarides soovitatu kasutamise eest! ;)
EH.INS.
Ehituspenskar
Ehituspenskar
Postitusi: 4239
Liitunud: 29 Juul 2024, 10:56
On tänanud: 1 korda
On tänatud: 96 korda

Re: Toredad skeemid

Lugemata postitus Postitas EH.INS. »

Mul ükskõik - ei huvita
kunn24
Ehituspenskar
Ehituspenskar
Postitusi: 4376
Liitunud: 11 Veebr 2018, 14:45
On tänanud: 48 korda
On tänatud: 146 korda

Re: Toredad skeemid

Lugemata postitus Postitas kunn24 »

RVK kummaline tingmärk ei ole otseselt viga.
Huvitav, mis aasta projekt see on, kui kaablid on PPJ?
Räme viga, kuna N on järjest katkestatud jne. Ei ole töötav skeem üldse, selle järgi reaalselt ehitada ei saa. Projekti "inseneri" käekiri oli selline, et kilbis olid ca 25 mm2 jaotuskaablid.
Aastast kuskil 2010.

Trollimistele vahepalaks toimiv kilbiskeem (aastast 2013), RVK on õigesti ja toimivalt lahendatud, lisaks 1-f tarbijad jagatud kenasti faasidele, arvutatud pingelangud:
skeem3.PNG
Küülaline
Ehituspenskar
Ehituspenskar
Postitusi: 6685
Liitunud: 02 Veebr 2009, 22:46
On tänanud: 112 korda
On tänatud: 149 korda

Re: Toredad skeemid

Lugemata postitus Postitas Küülaline »

kunn24 kirjutas: 24 Mai 2025, 00:52 N on järjest katkestatud ... selle järgi reaalselt ehitada ei saa
Kui kilbi ehitaja samasugune tegelane on siis küll. Ma arvan, et see projekteerija tahtis eriliselt tähelepanu juhtida, et N ka läbi RVK läheb, ainult natuke ebaõnnestunult.
Sellel teisel skeemil on see viga, et ühefaasilised tarbijad on 4-pooluselise RVK taga, mis on ebasoovitav.
kunn24
Ehituspenskar
Ehituspenskar
Postitusi: 4376
Liitunud: 11 Veebr 2018, 14:45
On tänanud: 48 korda
On tänatud: 146 korda

Re: Toredad skeemid

Lugemata postitus Postitas kunn24 »

Eriline tähelepanujuhtimine vigase skeemina- see kõlab huvitavalt, :): Sisuliselt peab ehitaja sel juhul olema projekteerijast targem.
Küülaline
Ehituspenskar
Ehituspenskar
Postitusi: 6685
Liitunud: 02 Veebr 2009, 22:46
On tänanud: 112 korda
On tänatud: 149 korda

Re: Toredad skeemid

Lugemata postitus Postitas Küülaline »

rikgevool.jpg
kunn24
Ehituspenskar
Ehituspenskar
Postitusi: 4376
Liitunud: 11 Veebr 2018, 14:45
On tänanud: 48 korda
On tänatud: 146 korda

Re: Toredad skeemid

Lugemata postitus Postitas kunn24 »

Puutekaitses tundub moodulilaiune auk sees nn LAHK LÜLITI juures. Sildid on tõenäoliselt trükkinud slaavi päritolu tegelane. Kuid üldiselt arusaadav, mida taheti öelda.
Viimati muutis kunn24, 17 Juun 2025, 22:22, muudetud 1 kord kokku.
Küülaline
Ehituspenskar
Ehituspenskar
Postitusi: 6685
Liitunud: 02 Veebr 2009, 22:46
On tänanud: 112 korda
On tänatud: 149 korda

Re: Toredad skeemid

Lugemata postitus Postitas Küülaline »

Olgu slaavi või mistahes päritolu, isegi GoogleTranslate peaks ju aitama, kui tahtmist on. Aga see auk on muidugi viga, mis auditit ei tohiks läbida.
Ja jälle muidugi see, mille vastu mina võitlen - neljapooluseline RVK ühefaasiliste gruppide ees.
Äärenurk
Ehitusguru
Ehitusguru
Postitusi: 906
Liitunud: 22 Veebr 2016, 15:46
On tänanud: 1 korda
On tänatud: 34 korda

Re: Toredad skeemid

Lugemata postitus Postitas Äärenurk »

Küülaline kirjutas: 17 Juun 2025, 14:42 Olgu slaavi või mistahes päritolu, isegi GoogleTranslate peaks ju aitama, kui tahtmist on. Aga see auk on muidugi viga, mis auditit ei tohiks läbida.
Ja jälle muidugi see, mille vastu mina võitlen - neljapooluseline RVK ühefaasiliste gruppide ees.
Eelistad kombikaitsmeid?
Küülaline
Ehituspenskar
Ehituspenskar
Postitusi: 6685
Liitunud: 02 Veebr 2009, 22:46
On tänanud: 112 korda
On tänatud: 149 korda

Re: Toredad skeemid

Lugemata postitus Postitas Küülaline »

Äärenurk kirjutas: 17 Juun 2025, 17:25Eelistad kombikaitsmeid
Üldiselt jah, siis on nagu muiste - igal grupil oma kaitse. Aga miks ka mitte igale faasile kahepooluseline RVK ja nende taga siis grupikaitsed.
trebla
Ehituspenskar
Ehituspenskar
Postitusi: 3400
Liitunud: 04 Aug 2009, 00:27
On tänanud: 4 korda
On tänatud: 66 korda

Re: Toredad skeemid

Lugemata postitus Postitas trebla »

no aga igale liinile oma liigpingekaitse.. ? kui juba panemiseks läheb..?
dumbuser
Ehituspenskar
Ehituspenskar
Postitusi: 3841
Liitunud: 08 Jaan 2008, 23:08
On tänanud: 11 korda
On tänatud: 84 korda

Re: Toredad skeemid

Lugemata postitus Postitas dumbuser »

Küülaline kirjutas: 17 Juun 2025, 14:42 Olgu slaavi või mistahes päritolu, isegi GoogleTranslate peaks ju aitama, kui tahtmist on. Aga see auk on muidugi viga, mis auditit ei tohiks läbida.
Ja jälle muidugi see, mille vastu mina võitlen - neljapooluseline RVK ühefaasiliste gruppide ees.
Mul pole aimugi kes selle kirja sinna soperdas aga kurat loe rsk juhendit ja saa teada, et päriselt on ka olemas võimalus kogu see plära väiksemate tähtedega teha ja siis mahub ära.
RVK kohta aga ei oska öelda. Vabalt võib olla, et tegijal oli räigelt raha vaja ja klient oli ka kooner ja siis siuke asi käiku läks, sest see on kõige odavam. Ainult üks RVK. Aga võib ka olla, et tegijal on null kogemst ja ega ta väga aru ka ei saa milleks see RVK üleüldse seal on.

Mul oli paar nädalat tagasi juhus kus tuli DALI juhtimisega lambile panna push-dim, sest DALI on üsna kirves ja täiesti mõttetu asi kuskil korteris üksiku lambina ja vist kõik DALI dimmerid saavad ka push-dim teemaga ilma mingite süümekateta hakkama. Juhiti seda lampi aga kahe tavalise veksliga. No kui raske siis on kahe veksli asemel panna vedrulüliti ? Sai kokku lepitud, et tööks läheb reede lõunal. Enne kündsin poodi ostsin vajalikud lülitid (sest sobivat vedru ma sinna ei leidnud ja lüliti hind oli kah kõva 6 raha tk) ja siis hakkasin peale. Esimene lüliti oli nii nagu veksel ikka, kolm otsa kõik eri värvi isolatsiooniga. Isegi ko/ro soont ei olnud, et noh tundus nagu päris. Teise lüliti juures läks mõte sassi. Et miks kurat seal neli otsa on ? No vbl on mingi rats tehtud. Mitu aega mõtlesin, et mis krdi asi see on. Ja lõpuks ei jäänud muud üle kui võtsin kõik otsad lahti ja mõõtmisega sain aru, et see on ristlüliti. Mis aga tähendas, et seal on vähemal üks veksel kuskil veel kuigi mulle raiuti nagu lapsele, et selle lambi jaoks on ainult kaks lüliti ja mitte millimeetritki enam. Kuna igasugu pedaale ja kange oli lahedalt siis läks õige asja leidmiseni pisut aega. Napilt oleksin ka hakanud kaablit generaatoriga taga jama. Õnneks oli pood veel lahti ja ma sain ka kolmanda lüliti tuua. Joppima ajas küll, sest see pood oli ainuke mis pakkus kohapeal kohe JUNG'i impulsslülitit (aga vbl ma lihtsalt ei osanud otsida) ning poe ja paigalduskoha vahet sõitmiseks läks reede õhtul umbes 40 minutit. Aga ... Ei uusarenduse värske omanik ega ka sisekujundaja ei teadnud mitte midagi sellest kolmandast lülitist ja kui ma sellest rääkisin siis enne oma silmaga veendumist peeti mind lihtsalt lollakaks. Vabandust kui nüüd teemast väga mööda läks.
kunn24
Ehituspenskar
Ehituspenskar
Postitusi: 4376
Liitunud: 11 Veebr 2018, 14:45
On tänanud: 48 korda
On tänatud: 146 korda

Re: Toredad skeemid

Lugemata postitus Postitas kunn24 »

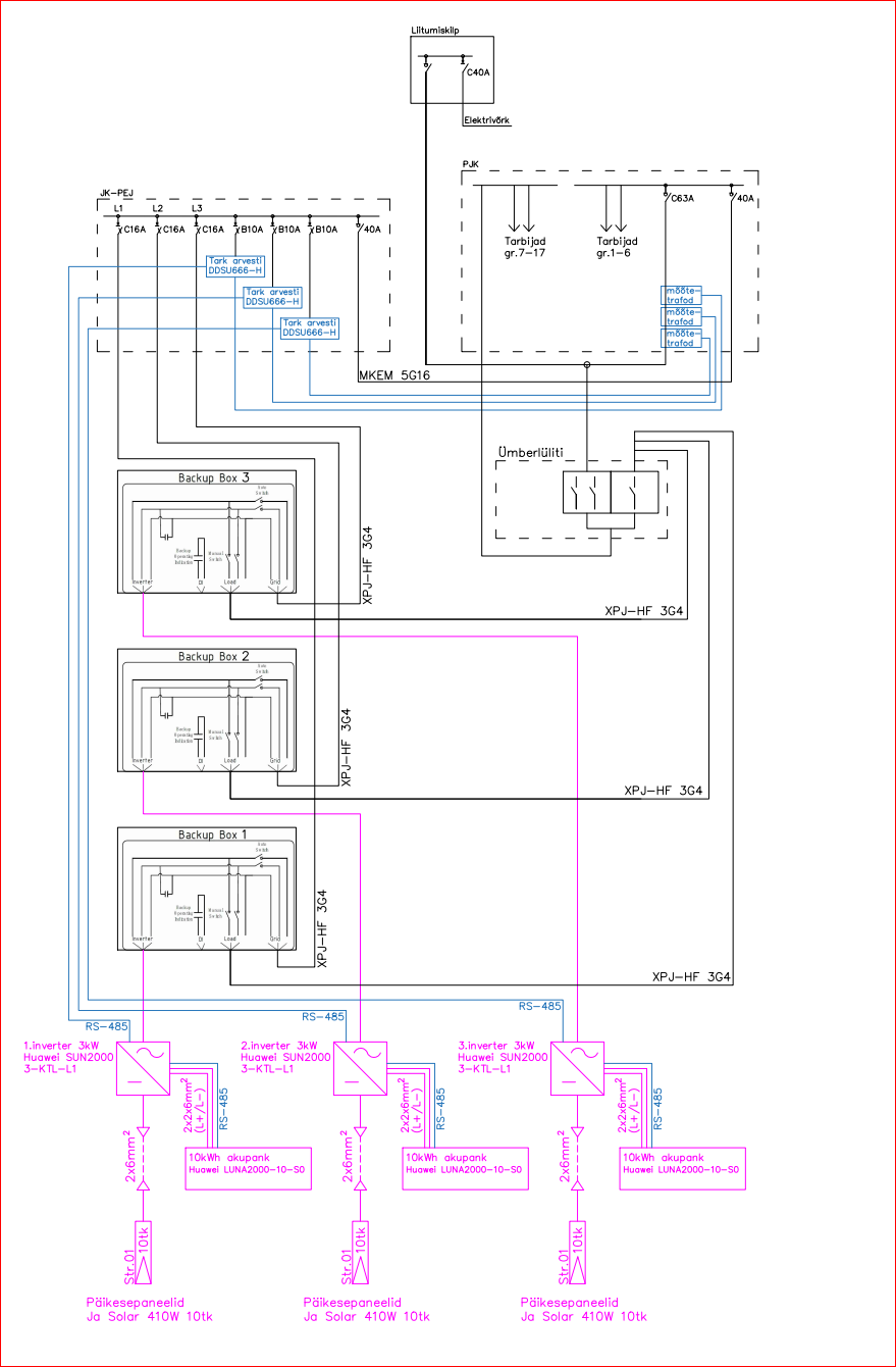
Avalikus kohas peasissekäigu kõrval avalikuks imetlemiseks selline ilus asi (tavaliselt need ikka peidetakse kuskile peitu- aga see oli näitamiseks, siis postitan ka siia). Asi on ehitatud perioodil aug- nov 2023, siis olid juba olemas ilusti ebasümm koormusega hübriid 3-f inverterid, näiteks Deye, Goodwe jms ja need olnuksid 1-s isikus asendanud Backup boxe (3 kasti) ja 3 1-f inverterit:
Akud.jpg
Kuna mind hakkas selline kõrgpilotaaž veidi huvitama, siis otsisin Ehitusregistrist teostusjoonise, mis ei petnud mu ootusi (kui on vaja seletada, siis mitmeski kohas tundub põhimõttelt vigane):
Huvitav yhendus.PNG
ping
Ehituspenskar
Ehituspenskar
Postitusi: 6317
Liitunud: 28 Jaan 2016, 10:35
On tänanud: 115 korda
On tänatud: 298 korda

Re: Toredad skeemid

Lugemata postitus Postitas ping »

kunn24 kirjutas: 21 Juul 2025, 21:46 Avalikus kohas peasissekäigu kõrval avalikuks imetlemiseks selline ilus asi ....
... Asi on ehitatud perioodil aug- nov 2023, siis olid juba olemas ilusti ebasümm koormusega hübriid 3-f inverterid, ....
Aga võibolla oli projekt tehtud 5-10 aastat varem ja hankeprotsess võttis ka omajagu aega?
Ehitama peab ju projekti järgi.
:hello:
Õppefilosoofia paradoks - õpetamine on tühi töö ja vaimu närimine, sest lollile ei jää nagunii midagi külge, andekas õpilane saab aga kõik ise selgeks, kui on loodud tingimused arenemiseks.
kunn24
Ehituspenskar
Ehituspenskar
Postitusi: 4376
Liitunud: 11 Veebr 2018, 14:45
On tänanud: 48 korda
On tänatud: 146 korda

Re: Toredad skeemid

Lugemata postitus Postitas kunn24 »

Projekt on dateeritud 26.07.2023, inverterid on kokku 9 kW (3x 3 kW).
Ma lubasin konkreetselt mitte viidata- vastasel korral lisaksin ehitusloa numbri ja hoone registrikoodi. Teostusjooniselt jätsin samuti kirjanurga ära. Rõhutan veel kord, selle joonise järgi asi ei saa õigesti toimida. Ja milleks need jämesoolikad ümber kaablite? Ehitusloa kooskõlastusel on PA poolt lahmitud: "Potensiaalselt (võimalikult) pinge alla jäävad kaablid peavad olema kogu nende kulgemise tee jooksul olema paigutatud kas kõrisse, renni või kaabliredelisse"- ehe näide, kuidas rumal ametnik ja ära ehmatanud ehitaja on "koostöös" jõudnud "tulemusele".
Vasta