Abi saunamaja vundamendi lahendamisel pehmel pinnasel.

voolik
Uus kasutaja
Uus kasutaja
Postitusi: 22
Liitunud: 12 Apr 2021, 21:10
On tänanud: 26 korda

Abi saunamaja vundamendi lahendamisel pehmel pinnasel.

Lugemata postitus Postitas voolik »

Tere,

Mul on ees seismas saunamaja ehitus ning vajan nõu seoses vundamendi lahendamisega.

Saunamaja:

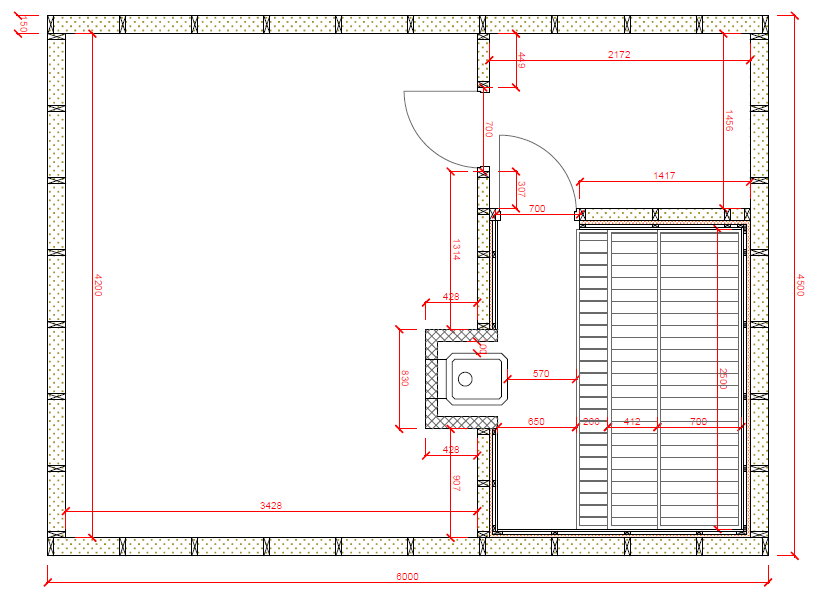
Saunamaja suurus: 4.5x6 meetrit

Kruvivunamendi peale lähevad põrandatalad 100x200+50x150mm prussid sammuga 400mm, puitkarkass 50x150mm+150mm kivivilla, tuuletõke ja puitlaudis nii sees kui väljas, sarikad 50x200mm+200mm kivivilla, roovitus, tuulutus pekkkatus.


Vundamendi probleem:

Minu mure seisneb selles, et pinnas, kuhu soovin saunamaja ehitada, on väga pehme ja niiske. Olen pinnast sondeerinud 8mm armatuuriga ja ca. 4.5-5.5m peal tuleb vastu tugevam pinnas.

Kas kellelgi on kogemust kruvivundamengiga sellistes oludes? Millega peab ja millega võiks arvestada sellises olukorras?

Pilt
Manused
Põhjaplaan.png
Kruvivundament.png
Kalvis
Ehituspenskar
Ehituspenskar
Postitusi: 11513
Liitunud: 03 Veebr 2008, 14:02
On tänanud: 4 korda
On tänatud: 331 korda

Re: Abi saunamaja vundamendi lahendamisel pehmel pinnasel.

Lugemata postitus Postitas Kalvis »

Alustatakse pinnase kandevõimest. Pinnase kandevõime peab olema posti kohta suurem, vajadusel pannakse poste tihedamalt.
Seega leia inimene, kes oskab vajaliku sammu/tiheduse per sinu plaanitava posti kohta välja arvutada.
Yrch
Uus kasutaja
Uus kasutaja
Postitusi: 23
Liitunud: 21 Mai 2023, 20:17
On tänanud: 2 korda
On tänatud: 2 korda

Re: Abi saunamaja vundamendi lahendamisel pehmel pinnasel.

Lugemata postitus Postitas Yrch »

Tiit Masso raamatus "Väikemajad" on selline tabel.
20230815_140903maasovundament.jpg
Seda raamatut leiab igal pool vanaraamatute poodides. ala

* https://vaimuvara.ee/e-pood/vaikemajad-tiit-masso/
* https://www.osta.ee/index.php?q%5Bq%5D= ... at%5D=1000

pinnasest räägib ka seal mõni leht enne ja selle kandevõimest. Päris Insenerid teavad paremini, aga ära lase ennast segadusse ajada näiteks postide kandevõime kohalt ja maapinna (posti(jala)) kandevõimega. betooni puhul on posti kandevõime nö. tohutu aga probleem seisneb selles, et posti enda kandepind on nii väike, see millele post toetub, maapinnal, mille enda kandevõime on väike. ehk kehva kandevõimega pinna puhul peab olema suurem vundamendi pindala - ala rohkem poste, suurem taldmik postil/lindil. jne jne see on võhiku refereering.
voolik
Uus kasutaja
Uus kasutaja
Postitusi: 22
Liitunud: 12 Apr 2021, 21:10
On tänanud: 26 korda

Re: Abi saunamaja vundamendi lahendamisel pehmel pinnasel.

Lugemata postitus Postitas voolik »

Nimelt on plaan kasutada sellist toodet:

Kruvivaiad keermelabaga ø 150 mm
Toru mõõdud 60,3 x 3 mm
Terase klass S355
kuumtsingitud-kruvivai-2m-800x800-min.jpg
Jutu järgi kannatab üks kruvivai nii umbes 1,5 tonni, plaanis on paigaldada neid 12tk.

12x1,5= 18 tonni, mis peaks olema piisav sellise väikese saunamaja jaoks arvestades lumekoormust jne.

Ootan endiselt inimesi jagama enda kogemust antud tootega või alternatiiviga.

Ehk on läinud midagi nihu, on super hästi väljakukkunud või hoopis midagi kolmandat. Lisaks kui on kedagi kes neid paigaldanud on siis sooviks teada kas kasutati ka mingisugust väändemõõdikut vms. et kinnitada piisav kandevõime.
Yrch
Uus kasutaja
Uus kasutaja
Postitusi: 23
Liitunud: 21 Mai 2023, 20:17
On tänanud: 2 korda
On tänatud: 2 korda

Re: Abi saunamaja vundamendi lahendamisel pehmel pinnasel.

Lugemata postitus Postitas Yrch »

Maapinnal on kandevõime. Ehk mitu kilogrammi suudab üks pindalaühik kanda. Mida tugevam pinnas, seda vähem kandvat pindala vundament vajab. Mida pehmem - seda rohkem vajab. Lisa siia juurde, et pinnase leondumine muudab pinnase kandevõimet väiksemaks.

kordan ikka veel. See et see toru kannatab 1.5t ei tähenda, et tema all olev maapind suudaks seda vastu võtta.

Kui sul on seal 5m turvast ja need torud alla tugevamale pinnasesse ei ulatu, siis pead hakkama vaatama palju nende torudel kandvad pinda on ja seda palju selle pehme pinnase kandevõime on võrreldes vaia pindalaga

Masso raamatus lk 66 ütleb "Turvas on nõrk pinnas, mis talub vaevalt rohkem kui 0.05...0.1kg/cm2 ja suurema koormuse alla vajub tublisti kokku"

Nüüd oletame, et selle toru "keerme" diameeter on 15cm, siis pindala sellel on 3.14*(0.15/2)^2 = 0.0176625 m2. Turba kandevõime 0.1kg/cm2 => 9806.65N/m2. Võhiku arvutus selle kandevõime kohta oleks 0.0176625 m2 * 9806.65N/m2 = 173.20 N per vai => 17.6 kg per vai (äkki arvutasin midagi valesti) Väidetavalt olla puitkarkarkassi koormus vundamendile 0.5-1.5t/m (Masso Väikemajad lk 67 üleval paremal).

Enivei, siin on kommenteerimas ka päris insenere. nad äkki tahavad adekvaatsemalt selgitada seda.
Manused
20230815_220648_vaikemajad_lk65.jpg
20230815_220814_vaikemajad_lk66.jpg
20230815_220904_vaikemajad_lk67.jpg
ping
Ehituspenskar
Ehituspenskar
Postitusi: 6155
Liitunud: 28 Jaan 2016, 10:35
On tänanud: 113 korda
On tänatud: 295 korda

Re: Abi saunamaja vundamendi lahendamisel pehmel pinnasel.

Lugemata postitus Postitas ping »

voolik kirjutas: 14 Aug 2023, 23:24 ... Vundamendi probleem:

Minu mure seisneb selles, et pinnas, kuhu soovin saunamaja ehitada, on väga pehme ja niiske. Olen pinnast sondeerinud 8mm armatuuriga ja ca. 4.5-5.5m peal tuleb vastu tugevam pinnas. ...
Kuidas see välja nägi, et kas tõukasid 6m pikkuse varda lupsti maa sisse?

Äkki seletad lähemalt, sest hetkel jääb see väheke segaseks?
:hello:
Õppefilosoofia paradoks - õpetamine on tühi töö ja vaimu närimine, sest lollile ei jää nagunii midagi külge, andekas õpilane saab aga kõik ise selgeks, kui on loodud tingimused arenemiseks.
Kalvis
Ehituspenskar
Ehituspenskar
Postitusi: 11513
Liitunud: 03 Veebr 2008, 14:02
On tänanud: 4 korda
On tänatud: 331 korda

Re: Abi saunamaja vundamendi lahendamisel pehmel pinnasel.

Lugemata postitus Postitas Kalvis »

Enamus pinnase kandevõimest piisab kui natuke oskad - vaatlusest ja käega katsumisest. Pooled suudad vaatamisega kindlaks teha. Edasi vaatad raamatust palju vastav pinnas kannaks ja edasi on juba tuttav pindala x kandevõime jne. Leiad maja raskuse ja palju kaalu siis posti kohta tuleb.
ping
Ehituspenskar
Ehituspenskar
Postitusi: 6155
Liitunud: 28 Jaan 2016, 10:35
On tänanud: 113 korda
On tänatud: 295 korda

Re: Abi saunamaja vundamendi lahendamisel pehmel pinnasel.

Lugemata postitus Postitas ping »

Kalvis kirjutas: 16 Aug 2023, 09:04 Enamus pinnase kandevõimest piisab kui natuke oskad - vaatlusest ja käega katsumisest. ...
Kui murumätta all on 3m turvast, siis kuidas seda vaatluse või silitamise teel kindlaks teha?

(Huvilistele võin rentida pinnasepuuri, mille abil saab kuni 5m sügavuselt võtta ise pinnaseproovi.)
:hello:
Õppefilosoofia paradoks - õpetamine on tühi töö ja vaimu närimine, sest lollile ei jää nagunii midagi külge, andekas õpilane saab aga kõik ise selgeks, kui on loodud tingimused arenemiseks.
Kalvis
Ehituspenskar
Ehituspenskar
Postitusi: 11513
Liitunud: 03 Veebr 2008, 14:02
On tänanud: 4 korda
On tänatud: 331 korda

Re: Abi saunamaja vundamendi lahendamisel pehmel pinnasel.

Lugemata postitus Postitas Kalvis »

Juba ainuüksi turba puhul võib küsija kohe teada - see on kõige halvem juhtum..... Postvundamendi võib kohe ära unustada (va. erand - taotakse post 5m sügavusele ja siis valatakse raudbetoonist lint postide otsa), plaadiga saab võibolla hakkama aga siis soovitaks kohe leida asjalik projekteerija...
voolik
Uus kasutaja
Uus kasutaja
Postitusi: 22
Liitunud: 12 Apr 2021, 21:10
On tänanud: 26 korda

Re: Abi saunamaja vundamendi lahendamisel pehmel pinnasel.

Lugemata postitus Postitas voolik »

Yrch kirjutas: 15 Aug 2023, 21:38 Maapinnal on kandevõime. Ehk mitu kilogrammi suudab üks pindalaühik kanda. Mida tugevam pinnas, seda vähem kandvat pindala vundament vajab. Mida pehmem - seda rohkem vajab. Lisa siia juurde, et pinnase leondumine muudab pinnase kandevõimet väiksemaks.

kordan ikka veel. See et see toru kannatab 1.5t ei tähenda, et tema all olev maapind suudaks seda vastu võtta.

Kui sul on seal 5m turvast ja need torud alla tugevamale pinnasesse ei ulatu, siis pead hakkama vaatama palju nende torudel kandvad pinda on ja seda palju selle pehme pinnase kandevõime on võrreldes vaia pindalaga

Masso raamatus lk 66 ütleb "Turvas on nõrk pinnas, mis talub vaevalt rohkem kui 0.05...0.1kg/cm2 ja suurema koormuse alla vajub tublisti kokku"

Nüüd oletame, et selle toru "keerme" diameeter on 15cm, siis pindala sellel on 3.14*(0.15/2)^2 = 0.0176625 m2. Turba kandevõime 0.1kg/cm2 => 9806.65N/m2. Võhiku arvutus selle kandevõime kohta oleks 0.0176625 m2 * 9806.65N/m2 = 173.20 N per vai => 17.6 kg per vai (äkki arvutasin midagi valesti) Väidetavalt olla puitkarkarkassi koormus vundamendile 0.5-1.5t/m (Masso Väikemajad lk 67 üleval paremal).

Enivei, siin on kommenteerimas ka päris insenere. nad äkki tahavad adekvaatsemalt selgitada seda.
See kalkulatsioon paistab paika pidavat. Kui tagurpidi arvutada, et 1500kg ÷ 177cm² = 8.47kg/cm²
Siis see 1,5t per vai on eeldusel, et maapõuest jõutakse paekivini.
Paekivi kandevõime.jpg
Paekivi kandevõime.jpg (12.75 KiB) Vaadatud 22467 korda
Maa-ameti mullastiku teemakaart näitab, et seal on:
"Sügav madalsoomuld - M"' Turba sügavus üle 100 cm ja mullaprofiil koosneb ainult T-horisondist."
ping kirjutas: 16 Aug 2023, 00:33
Kuidas see välja nägi, et kas tõukasid 6m pikkuse varda lupsti maa sisse?

Äkki seletad lähemalt, sest hetkel jääb see väheke segaseks?
:hello:
Jah, 6m pikkune armatuur läks kahe käega kinni hoides ja kogu keharaskusega peale vajutades läks üpris lihtsa vaevaga 4,5 - 5,5m sügavusele...
voolik
Uus kasutaja
Uus kasutaja
Postitusi: 22
Liitunud: 12 Apr 2021, 21:10
On tänanud: 26 korda

Re: Abi saunamaja vundamendi lahendamisel pehmel pinnasel.

Lugemata postitus Postitas voolik »

Kalvis kirjutas: 16 Aug 2023, 10:33 Juba ainuüksi turba puhul võib küsija kohe teada - see on kõige halvem juhtum..... Postvundamendi võib kohe ära unustada (va. erand - taotakse post 5m sügavusele ja siis valatakse raudbetoonist lint postide otsa), plaadiga saab võibolla hakkama aga siis soovitaks kohe leida asjalik projekteerija...
Olen kursis, et turvas on ääretult kehv pinnas mille peale ehitada, aga mis sa muud teed kui see on see pinnas mis seal on.

Alternatiivina võiks veel kasutada geotekstiili+geovõrku+geokärge+kergkillustik ja teha suur padi mille peale siis juba vundament rajada, aga kruvivundament paistab olevat ehk kõige mõistlikum variant.
aero
Ehituspenskar
Ehituspenskar
Postitusi: 2109
Liitunud: 27 Mai 2010, 10:40
On tänanud: 86 korda
On tänatud: 86 korda

Re: Abi saunamaja vundamendi lahendamisel pehmel pinnasel.

Lugemata postitus Postitas aero »

Need vaiad on vist max 3m. Loodad, et sellest piisab või plaanid neid kuidagi jätkata ja kandva pinnaseni kruvida? Kas lähedal on mõni tee, sõidukeid kannab normaalselt, igal aastaajal?
kunn24
Ehituspenskar
Ehituspenskar
Postitusi: 4130
Liitunud: 11 Veebr 2018, 14:45
On tänanud: 45 korda
On tänatud: 139 korda

Re: Abi saunamaja vundamendi lahendamisel pehmel pinnasel.

Lugemata postitus Postitas kunn24 »

Milleks need kruvid vajalikud pinnases, mis ei kanna? Rammi siis tsingitud torud pinnaseni, mis kannavad ja tee nende peale raam. Torub pead raamiga siduma nii, et horisontaaljõudude vastuvõtmine (tuulekoormus) oleks ka tagatud, näiteks raami külge keevitama.
Juhe teab kõike.
voolik
Uus kasutaja
Uus kasutaja
Postitusi: 22
Liitunud: 12 Apr 2021, 21:10
On tänanud: 26 korda

Re: Abi saunamaja vundamendi lahendamisel pehmel pinnasel.

Lugemata postitus Postitas voolik »

aero kirjutas: 16 Aug 2023, 18:45 Need vaiad on vist max 3m. Loodad, et sellest piisab või plaanid neid kuidagi jätkata ja kandva pinnaseni kruvida? Kas lähedal on mõni tee, sõidukeid kannab normaalselt, igal aastaajal?
Saunamaja tuleb metsa sisse ja 25m kaugusele järvest. Järvest 50m kaugusel on kõvakattega tee mis on heas korras olnud aastaid kuid see on teisel pool järve.

Neid on võimalik jätkata ja kaks 3m pikka jätkatuna on plaanis kasutada.
kunn24 kirjutas: 16 Aug 2023, 18:50 Milleks need kruvid vajalikud pinnases, mis ei kanna? Rammi siis tsingitud torud pinnaseni, mis kannavad ja tee nende peale raam. Torub pead raamiga siduma nii, et horisontaaljõudude vastuvõtmine (tuulekoormus) oleks ka tagatud, näiteks raami külge keevitama.
Mure on selles, et sinna ei pääse rasketehnikaga ligi...
aero
Ehituspenskar
Ehituspenskar
Postitusi: 2109
Liitunud: 27 Mai 2010, 10:40
On tänanud: 86 korda
On tänatud: 86 korda

Re: Abi saunamaja vundamendi lahendamisel pehmel pinnasel.

Lugemata postitus Postitas aero »

Atv-ga ikka pääsed?
ping
Ehituspenskar
Ehituspenskar
Postitusi: 6155
Liitunud: 28 Jaan 2016, 10:35
On tänanud: 113 korda
On tänatud: 295 korda

Re: Abi saunamaja vundamendi lahendamisel pehmel pinnasel.

Lugemata postitus Postitas ping »

voolik kirjutas: 16 Aug 2023, 18:14
ping kirjutas: 16 Aug 2023, 00:33
Kuidas see välja nägi, et kas tõukasid 6m pikkuse varda lupsti maa sisse?

Äkki seletad lähemalt, sest hetkel jääb see väheke segaseks?
:hello:
Jah, 6m pikkune armatuur läks kahe käega kinni hoides ja kogu keharaskusega peale vajutades läks üpris lihtsa vaevaga 4,5 - 5,5m sügavusele...

Nagu arusaada, siis pole teada ka pinnase tegelik kandevõime 6m sügavusel, peale selle et "varda tõukamine läks raskemaks"?

Kuidas mõtled tagada, et käsitsi sissekeerates need 6m pikkused vaiad saaksid täpselt vertikaalselt paika?

Sellistes oludes väikse sauna ehitamisel on arvatavasti majanduslikult mõtekas rajada see "parvele", mille saab vormistada "erikujulise plaatvundamendina".

Suure tõenäosusega, kui vedada hoone alla näiteks 0,5m paksune killukiht, siis see vajub mõne aastaga maapinna alla.
Ehk kildu on mõtet laotada ümber penost vundamendi, pehme pinnase survestamiseks, et maja vajuks vähem.
:hello:
Õppefilosoofia paradoks - õpetamine on tühi töö ja vaimu närimine, sest lollile ei jää nagunii midagi külge, andekas õpilane saab aga kõik ise selgeks, kui on loodud tingimused arenemiseks.
kunn24
Ehituspenskar
Ehituspenskar
Postitusi: 4130
Liitunud: 11 Veebr 2018, 14:45
On tänanud: 45 korda
On tänatud: 139 korda

Re: Abi saunamaja vundamendi lahendamisel pehmel pinnasel.

Lugemata postitus Postitas kunn24 »

Taskaalustamisega tuleb padi teha väiksema tihedusega materjalist, kui pinnas. Kild ei kõlba. Kõlbada võivad tühjad tsingitud plekist tünnid, kuid siis tuleb tagada, et nad pinnasesurvega kortsu ei läheks.
Juhe teab kõike.
voolik
Uus kasutaja
Uus kasutaja
Postitusi: 22
Liitunud: 12 Apr 2021, 21:10
On tänanud: 26 korda

Re: Abi saunamaja vundamendi lahendamisel pehmel pinnasel.

Lugemata postitus Postitas voolik »

ping kirjutas: 17 Aug 2023, 08:40 Nagu arusaada, siis pole teada ka pinnase tegelik kandevõime 6m sügavusel, peale selle et "varda tõukamine läks raskemaks"?

Kuidas mõtled tagada, et käsitsi sissekeerates need 6m pikkused vaiad saaksid täpselt vertikaalselt paika?

Sellistes oludes väikse sauna ehitamisel on arvatavasti majanduslikult mõtekas rajada see "parvele", mille saab vormistada "erikujulise plaatvundamendina".

Suure tõenäosusega, kui vedada hoone alla näiteks 0,5m paksune killukiht, siis see vajub mõne aastaga maapinna alla.
Ehk kildu on mõtet laotada ümber penost vundamendi, pehme pinnase survestamiseks, et maja vajuks vähem.
:hello:
Jah, ma tõesti ei tea mis kandevõimega pinnas 5-6m sügavusel on ja selleks, et vaiad vertikaalselt loodis oleks saab ehitada lihtsa abinõu...
Kruvivaia abinõu.jpg
Sinu järgmist mõtet edasi arendades oleks ehk variant teha see padi järgmiselt...

1. Koorida 50cm pinnast
2. Asetada sinna geovõrk
Geovõrk.jpg
3. Seejärel geokärg
Geokärg.jpg
4. Täita geokärg kergkillustikuga ∼200kg/m3
Kergkillustik.jpg
5. Korda 2. ja 3. ning 4.

Ning tulemuseks võiks olla padi mis tänu geovõrgule ning geokärjele annab stabiilse pinnase.

:)
ping
Ehituspenskar
Ehituspenskar
Postitusi: 6155
Liitunud: 28 Jaan 2016, 10:35
On tänanud: 113 korda
On tänatud: 295 korda

Re: Abi saunamaja vundamendi lahendamisel pehmel pinnasel.

Lugemata postitus Postitas ping »

voolik kirjutas: 17 Aug 2023, 19:37 ...
1. Koorida 50cm pinnast
...
Kõigepealt kaeva labidaga mõned proovisurfid ja siis näed, et võibolla ainult see 0,5m pealmine kiht ongi ainuke kandev kiht selles kohas ja midagi eemaldada polegi mõtet.

Umbes samasugusele pinnasele, korralikult auku betoneeritud raudtorust aiapost, kadus umbes kuu ajaga täielikult maa sisse, sest auk kaevati nii sügav, mis läbistas kandva pealmise kihi.

Vaiade puurimise aegsest vertikaalsusest ei ole suurt kasu, kui majake jääb 6m pikkustele torukestele õõtsuma, sest turvas ei paku varrastele olulist külgtuge.

Ujukitele ehitades peaks teadma max üleujutuste veekõrgust ja tünnide tõstevõimet, sest muidu võib ühel kevadel leida majakese naabri karjamaalt.
:hello:
Õppefilosoofia paradoks - õpetamine on tühi töö ja vaimu närimine, sest lollile ei jää nagunii midagi külge, andekas õpilane saab aga kõik ise selgeks, kui on loodud tingimused arenemiseks.
Kalvis
Ehituspenskar
Ehituspenskar
Postitusi: 11513
Liitunud: 03 Veebr 2008, 14:02
On tänanud: 4 korda
On tänatud: 331 korda

Re: Abi saunamaja vundamendi lahendamisel pehmel pinnasel.

Lugemata postitus Postitas Kalvis »

Enamus soovitutest on tõene. Plaatvundamendiga on see jama, et kui maja on raskem kui plaadi aluse pinnase kandevõime siis vajub viltu või sohu. Pärast muidugi hea peeglit süüdistada. Turba kandevõime on väga madal.
Teine variant on rammida vaiad sügavale kandva pinnaseni - a la paekivi. Kui see on 5 meetri sügavusel siis see pole mingi sügavus aga käsitsi - kas tulemus on piisav. Mõistlik oleks profitehnikat kasutada.
Urmas
autodidakt
Postitusi: 13126
Liitunud: 17 Apr 2009, 23:51
On tänanud: 407 korda
On tänatud: 445 korda

Re: Abi saunamaja vundamendi lahendamisel pehmel pinnasel.

Lugemata postitus Postitas Urmas »

voolik kirjutas: 16 Aug 2023, 19:04 Saunamaja tuleb metsa sisse ja 25m kaugusele järvest.
Oled kindel, et sul lubatakse järvele nii lähedale ehitada? Alles paar päeva tagasi oli artikkel. https://kodu.geenius.ee/rubriik/uudis/k ... ud-hoonet/
NB! Ei võta materiaalset vastutust oma kommentaarides soovitatu kasutamise eest! ;)
voolik
Uus kasutaja
Uus kasutaja
Postitusi: 22
Liitunud: 12 Apr 2021, 21:10
On tänanud: 26 korda

Re: Abi saunamaja vundamendi lahendamisel pehmel pinnasel.

Lugemata postitus Postitas voolik »

Urmas kirjutas: 20 Aug 2023, 19:37
voolik kirjutas: 16 Aug 2023, 19:04 Saunamaja tuleb metsa sisse ja 25m kaugusele järvest.
Oled kindel, et sul lubatakse järvele nii lähedale ehitada? Alles paar päeva tagasi oli artikkel. https://kodu.geenius.ee/rubriik/uudis/k ... ud-hoonet/
Jah, vallaga on konsulteeritud ja kitsenduste mõjuala on 25m järvest...

Looduskaitseseadus

§ 38. Ranna ja kalda ehituskeeluvöönd

5) allikal ning kuni kümne hektari suurusel järvel ja veehoidlal ning kuni 25 ruutkilomeetri suuruse valgalaga jõel ja ojal 25 meetrit;
voolik
Uus kasutaja
Uus kasutaja
Postitusi: 22
Liitunud: 12 Apr 2021, 21:10
On tänanud: 26 korda

Re: Abi saunamaja vundamendi lahendamisel pehmel pinnasel.

Lugemata postitus Postitas voolik »

Kalvis kirjutas: 20 Aug 2023, 08:30 Enamus soovitutest on tõene. Plaatvundamendiga on see jama, et kui maja on raskem kui plaadi aluse pinnase kandevõime siis vajub viltu või sohu. Pärast muidugi hea peeglit süüdistada. Turba kandevõime on väga madal.
Teine variant on rammida vaiad sügavale kandva pinnaseni - a la paekivi. Kui see on 5 meetri sügavusel siis see pole mingi sügavus aga käsitsi - kas tulemus on piisav. Mõistlik oleks profitehnikat kasutada.
Eks ma selle pärast foorumisse kirjutasingi, et uurida maad, ehk on veel variante mille peale ise ei ole taibanud tulla.

Nüüd uurin mis võimalused ning hinnad nendel rammvaiadel on ja eks ma jätan siis foorumisse ka jälje maha, et kollektiivsete teadmiste pagas siin foorumis suureneks!

:hello:
ping
Ehituspenskar
Ehituspenskar
Postitusi: 6155
Liitunud: 28 Jaan 2016, 10:35
On tänanud: 113 korda
On tänatud: 295 korda

Re: Abi saunamaja vundamendi lahendamisel pehmel pinnasel.

Lugemata postitus Postitas ping »

voolik kirjutas: 20 Aug 2023, 22:18 ... Eks ma selle pärast foorumisse kirjutasingi, et uurida maad, ehk on veel variante mille peale ise ei ole taibanud tulla.

Nüüd uurin mis võimalused ning hinnad nendel rammvaiadel on ja eks ma jätan siis foorumisse ka jälje maha, et kollektiivsete teadmiste pagas siin foorumis suureneks!

:hello:
Võtad rendist elektrilise torukeermestaja. Lased metallimehel teha sobiva adapteri ja kiirusega 58 pööret minutis keerad vaiad maasse.
https://www.google.com/search?q=aku+tor ... X_enEE1028
Näiteks selline riist:
https://www.youtube.com/results?search_ ... THENBERGER
Või võrguvoolu pealt:
https://www.google.com/search?q=elektri ... X_enEE1028
:hello:
Õppefilosoofia paradoks - õpetamine on tühi töö ja vaimu närimine, sest lollile ei jää nagunii midagi külge, andekas õpilane saab aga kõik ise selgeks, kui on loodud tingimused arenemiseks.
xxx111
külaline

Re: Abi saunamaja vundamendi lahendamisel pehmel pinnasel.

Lugemata postitus Postitas xxx111 »

Tegelikult on asi suht lihtne...
"Sitt" pinnas tuleb hoone alt eemaldada ja tagasitäide teha "normaalse" materjaliga
Või siis panna sellise pikkusega vaiad mis ulatuvad kandvasse kihti
Ja mitte ainult selle kandva kihi peale vaid ca 1m selle kandva kihi sisse
Kruvivaiad pole siin hea lahendus - liiga pikad
Tuleks leida alternatiiv - nt mikrovaiad
Ja kena oleks teha ka vaia proovikoormamine

Aga see mida kirjutab kasutaja Yrch on igati õige
Tuleb eristada vaia enda kandevõimet ja pinnase kandevõimet selle vaia all
Ja määravaks saab neist väikseim
Vasta