Eelprojekti järgi ehitamine
-
apartemente
- Uus kasutaja

- Postitusi: 48
- Liitunud: 06 Dets 2017, 11:25
- On tänatud: 2 korda
Eelprojekti järgi ehitamine
Lugemata postitus Postitas apartemente »
Uuriks siis siinsete ehitusfoorumlaste käest, et kui palju maju ehitatakse eelprojekti järgi?
Näiteks ühepereelamu, ühe kordne, ehitusealune pind 180m2, plaatvundament küttekontuuridega, bauroc seinad soojustatud villaga, sarikad/fermid ja kivikatus. Peaks olema levinud lahendus.
Kui nüüd netist on leitud sobiv ruumide planeering ja majast näidiseks pilt, siis esmakordselt projekteerijat otsides pakutakse väga erinevas staadiumis projekti koostamist. Aga mida oleks siis vaja?
Näiteks: Plaatvundamendi ehitamine, mis andmeid vajab ehitaja? Ilmselt on vaja eriosana kütte/ventilatsiooni projekti? Kas vee/kanali projekti? Kas elektri projekti? Need eriosad tehakse eelprojektile juurde eks?
Mis andmeid vajab ühekordse bauroc (200-375mm) maja ladumiseks müürimees? Eelprojektil mõõdud peal, läbilõige olemas. Kas on müürimehel vaja konstruktsioonide projekti või põhiprojekti vms?
Ma olen saanud aru, et fermid/sarikad arvutab/projekteerib fermitootja niikuinii. Kas õige? Mis andmeid ta vajab? Eelprojekt? Laotud müüride mõõdud? Või projekteerija koostatud põhiprojekt, konstruktsioonide projekt?
Kas ehituse alustamiseks piisab eelprojektist ja vajalikest eriosadest, et küsida hinnapakkumisi ehitamiseks?
Samuti võivad kogenud ja sõbralikud projekteerijad ennast üles anda, kes oleks valmis selle töö ära tegema.
Tervitades!
-
ifffff
- Ehitusveteran

- Postitusi: 1867
- Liitunud: 31 Okt 2006, 00:18
- On tänanud: 17 korda
- On tänatud: 62 korda
Re: Eelprojekti järgi ehitamine
Lugemata postitus Postitas ifffff »
-
Küülaline
- Ehituspenskar

- Postitusi: 6774
- Liitunud: 02 Veebr 2009, 22:46
- On tänanud: 124 korda
- On tänatud: 154 korda
Re: Eelprojekti järgi ehitamine
Lugemata postitus Postitas Küülaline »
-
RaJy
- Ehituspenskar

- Postitusi: 2049
- Liitunud: 17 Juun 2018, 09:31
- On tänanud: 67 korda
- On tänatud: 85 korda
Re: Eelprojekti järgi ehitamine
Lugemata postitus Postitas RaJy »
Inimeste arusaamine majandamisest ja silmailust võivad olla väga erinevad: minu projekteerija tegi ikka väga suured silmad kui soovisin uude majja puupliiti - ega ometi kogu maja puuküttel ei tule? Sai siis rahustatud teda, et tegu lisaküttega ja põhiküte õvsp. Kuigi täna võib olukord vastupidi minna. Linnainimestel on rahast vahel kummaline arusaam - samas eks nemad mõtlevad meist maainimestest umbes samamoodi.Küülaline kirjutas: 11 Okt 2022, 22:24 Seda plaani vaadates - kui majas on juba kamin (parem teha ahi), siis võiks keris olla puuküttega ja tänast olukorda vaadates teeks ka puupliidi.
-
ping
- Ehituspenskar

- Postitusi: 6640
- Liitunud: 28 Jaan 2016, 10:35
- On tänanud: 120 korda
- On tänatud: 309 korda
Re: Eelprojekti järgi ehitamine
Lugemata postitus Postitas ping »
Näha on, et see toorikprojekt on võetud kuskilt talumaja projektikatalogi näidisest ja need tavaliselt kohendatakse projekteerimise protsessi käigus elamisväärseks.Küülaline kirjutas: 11 Okt 2022, 22:24 Seda plaani vaadates - kui majas on juba kamin (parem teha ahi), siis võiks keris olla puuküttega ja tänast olukorda vaadates teeks ka puupliidi.
-
apartemente
- Uus kasutaja

- Postitusi: 48
- Liitunud: 06 Dets 2017, 11:25
- On tänatud: 2 korda
Re: Eelprojekti järgi ehitamine
Lugemata postitus Postitas apartemente »
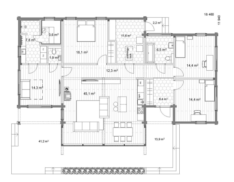
Kuid siiski, äkki proovid vastata mõnele mu postituse küsimusele? Näiteks kas eelprojekt on piisav plaadi ehitajale? Kas küte/vent lisa tuleks juurde tellida? Katuse fermid/sarikad arvutab fermitootja niivõinaa? Või on projekteerijalt vaja seda?ifffff kirjutas: 11 Okt 2022, 21:11 Mida vähem ehitamisest jagad, seda põhjalikum projekt telli. Muidu on pärast järjekordselt mingid sassid objektil miskit oma aruga ratsimas.
Plaanis on maaküte (krunt mahutab). Saunas elektrikeris ei hirmuta mind (kuigi vahel meeldib ka puudega sauna kütta- protsess iseenesest). Ütleme 6kw keris x 1h kütab kuumaks = 6kwh x üldteenus 0,2eur= 1,2eur (igapäev ei küta).Küülaline kirjutas: 11 Okt 2022, 22:24 Seda plaani vaadates - kui majas on juba kamin (parem teha ahi), siis võiks keris olla puuküttega ja tänast olukorda vaadates teeks ka puupliidi.
Jah tegemist on palkamaja tootjaga, ma hetkel eelistaks bauroc+vill aga selles osas võib soovitusi jagada. Plaani tuleb veidi kohendada, puudu on tehnoruum, ülejäänud sobib meie krundile nagu valatult arvestades ilmakaari ja naabermaju.ping kirjutas: 11 Okt 2022, 23:16 Näha on, et see toorikprojekt on võetud kuskilt talumaja projektikatalogi näidisest ja need tavaliselt kohendatakse projekteerimise protsessi käigus elamisväärseks.
![]()
Siiski mis te soovitate: kas eelprojekt + lisadena küte/vent ja vesi/kanal ja elekter? Kas sellest piisaks ehitajatele hinnapakkumise koostamiseks ja ehitamiseks?
-
Prill
- Ehitusveteran

- Postitusi: 1740
- Liitunud: 27 Veebr 2017, 10:36
- On tänanud: 7 korda
- On tänatud: 96 korda
Re: Eelprojekti järgi ehitamine
Lugemata postitus Postitas Prill »
Praktikas arvatavalt on kokkuleppe küsimus, kas lähed ehitajat otsima projektiga, mis on iseenesest hea mõte, sest projekt kirjeldab ühtlasi ära ka materjalide mahud ja vajalikud tööd, mille pealt ehitajal on hea hinnapakkumist teha.
Samas on firmasid, eriti eriosade elekter/vent/küte, kus osatakse projekteerida, seadmeid vahendada-müüa ja ka ehitada. Nii võib elektri puhul vabalt olla, kus lähed oma pistikupesade skeemiga elektrifirma jutule, joonistatakse projekt, tehakse hind ja kui hind sobib ehitatakse ära ka.
Tellijale annab projekti olemasolu mingi kindluse, et teatud teemad on spetsialisti poolt vaadatud/mõeldud/arvutatud ja tõenäoliselt suurelt puusse ei pane. Aga nagu elus tavaliselt, mingeid garantiisid ei ole et iga projekt on 100% pädev, ja 100% kvaliteetselt ehitatakse oskaja poolt projekti järgi.
-
ifffff
- Ehitusveteran

- Postitusi: 1867
- Liitunud: 31 Okt 2006, 00:18
- On tänanud: 17 korda
- On tänatud: 62 korda
Re: Eelprojekti järgi ehitamine
Lugemata postitus Postitas ifffff »
Loe korra veel mida ma kirjutasin. Mõttega.apartemente kirjutas: 12 Okt 2022, 10:39Kuid siiski, äkki proovid vastata mõnele mu postituse küsimusele? Näiteks kas eelprojekt on piisav plaadi ehitajale? Kas küte/vent lisa tuleks juurde tellida? Katuse fermid/sarikad arvutab fermitootja niivõinaa? Või on projekteerijalt vaja seda?ifffff kirjutas: 11 Okt 2022, 21:11 Mida vähem ehitamisest jagad, seda põhjalikum projekt telli. Muidu on pärast järjekordselt mingid sassid objektil miskit oma aruga ratsimas.
Vundamendiplaadi ehitab ehitaja sulle tükitööga. Kui konkreetseid tööjooniseid ees pole, läheb pahatihti kuskilt optimeerimiseks, et saada rohkem kazummi. Fermide tootjaga sama lugu. Pärast mingi käki üle vaidlemine on mõttetu, sest sinupoolt polnud ju ees konkreetseid jooniseid kuidas on vaja teha.
Projekteerija teeb projekti sellisena, kuidas on parim lahendus. Temal puudub motiivaator teha mingeid ratse ehituskulude kokkuhoiuks. Mõtlen ise lahenduse ja ehitan selle valmis tüüpidel on selline motivaator olemas.
Projekt maksab maja hinnast olematu protsendi. See pole koht kust kokku hoida.
-
aero
- Ehituspenskar

- Postitusi: 2112
- Liitunud: 27 Mai 2010, 10:40
- On tänanud: 86 korda
- On tänatud: 86 korda
Re: Eelprojekti järgi ehitamine
Lugemata postitus Postitas aero »
kivipõrandaga 11,6 m2, kust pööningule pääseb - mis seal tehnoruumist puudu jääb sinu jaoks? Liiga suur?
-
apartemente
- Uus kasutaja

- Postitusi: 48
- Liitunud: 06 Dets 2017, 11:25
- On tänatud: 2 korda
Re: Eelprojekti järgi ehitamine
Lugemata postitus Postitas apartemente »
Jah tänan, lugesin mõttega, et sa kirjutasid "põhjalikumast" projektist ja mingitest sassidest. Äkki täpsustad mida see "põhjalikum" projekt siis kujutab? Arh. projekt, põhiprojekt, tööprojekt, konstruktiivne?ifffff kirjutas: 12 Okt 2022, 11:27Loe korra veel mida ma kirjutasin. Mõttega.apartemente kirjutas: 12 Okt 2022, 10:39ifffff kirjutas: 11 Okt 2022, 21:11 Mida vähem ehitamisest jagad, seda põhjalikum projekt telli. Muidu on pärast järjekordselt mingid sassid objektil miskit oma aruga ratsimas.
Vundamendiplaadi ehitab ehitaja sulle tükitööga. Kui konkreetseid tööjooniseid ees pole, läheb pahatihti kuskilt optimeerimiseks, et saada rohkem kazummi. Fermide tootjaga sama lugu. Pärast mingi käki üle vaidlemine on mõttetu, sest sinupoolt polnud ju ees konkreetseid jooniseid kuidas on vaja teha.
Projekteerija teeb projekti sellisena, kuidas on parim lahendus. Temal puudub motiivaator teha mingeid ratse ehituskulude kokkuhoiuks. Mõtlen ise lahenduse ja ehitan selle valmis tüüpidel on selline motivaator olemas.
Projekt maksab maja hinnast olematu protsendi. See pole koht kust kokku hoida.
"Konkreetsed" tööjoonised vundamendi ehituseks? Palun täpsusta, mis staadiumis vundam. projekti oleks vaja?
Fermitootjad kes projekteerivad enne fermide tootmist, teevad mingi käki? Ja projekteerija ei projekteeri käkki?
Sorry jätsin täpsustamata, et sealtpoolt oleks vaja sissekäik teha ja tehnoruum mujale juurde teha, või seda ruumi poolitada. Seda arutaks projekteerijaga kuidas on mõistlik.aero kirjutas: 12 Okt 2022, 11:39kivipõrandaga 11,6 m2, kust pööningule pääseb - mis seal tehnoruumist puudu jääb sinu jaoks? Liiga suur?.
-
Küülaline
- Ehituspenskar

- Postitusi: 6774
- Liitunud: 02 Veebr 2009, 22:46
- On tänanud: 124 korda
- On tänatud: 154 korda
Re: Eelprojekti järgi ehitamine
Lugemata postitus Postitas Küülaline »
Standardi järgi on hinnapakkumiseks vaja vähemalt põhiprojekti. Eks see oleneb suuresti ehitajast, aga enamasti tänapäeval nii ehitataksegi.apartemente kirjutas: 12 Okt 2022, 10:39eelprojekt + lisadena küte/vent ja vesi/kanal ja elekter? Kas sellest piisaks ehitajatele hinnapakkumise koostamiseks ja ehitamiseks
-
apartemente
- Uus kasutaja

- Postitusi: 48
- Liitunud: 06 Dets 2017, 11:25
- On tänatud: 2 korda
Re: Eelprojekti järgi ehitamine
Lugemata postitus Postitas apartemente »
Tänan.Küülaline kirjutas: 12 Okt 2022, 12:35 Standardi järgi on hinnapakkumiseks vaja vähemalt põhiprojekti. Eks see oleneb suuresti ehitajast, aga enamasti tänapäeval nii ehitataksegi.
-
vuuk
- Ehituspenskar

- Postitusi: 2591
- Liitunud: 15 Jaan 2008, 09:34
- On tänanud: 73 korda
- On tänatud: 136 korda
Re: Eelprojekti järgi ehitamine
Lugemata postitus Postitas vuuk »
Palju. Üldine valdav seisukoht on, et projekt olgu nii õhuke kui võimalik ja nii paks kui vajalik. Eramuehituse tüüpilise tellija mätta otsast vaatav kodanik leiab, et selliseks paraja paksusega projektiks võib lugeda eelprojekti, kuna sellest piisab ehitusloa saamiseks....kui palju maju ehitatakse eelprojekti järgi?
Samas, näiteks minule kui ehitajale meeldivad töö tegemisel head tööriistad. Ehitusprojekt on minu vaatenurgast samuti üks vajalik tööriist või vahend, milles on ehitamise informatsioon. Paraku projektid, eriti eelprojektid ei ole tehtud sellisest vaatenurgast, et oleksid võimalikult head tööriistad ehitajale ega ka ehitise tellijale.
Eelprojektis puudub väga tihti vundamendi joonis üldse, detailsetest sõlmejoonistest rääkimata. Eelprojekid koostavad arhitektid, kes pole insenerid ja nende teadmiste pagas ei võimaldagi üldjuhul vundamentide tugevusarvutusi teostada. Ehituskonstruktori eriteadmisi omamata ja ilma vastavaid tugevusarvutusi tegemata, tänapäevaseid norme, nõudeid, standardeid, sh elustandardit arvestavat elamut ehitades ilma vundamendi projektita tähendab sisuliselt "mütsiga löömist". Ehitajad ilmselt seda teevad, eriti kui ei hooma seda ülisuurt riski ja mõttetut lisatööd ning vastutust, mida lisaks endale sellega võtavad. Muidugi välja arvatud juhul kui pole tegemist vundamentide ehitamisele spetsialiseerunud firmaga, kus vastavaid pädevusi ja arvutusoskusi valdav insener ettevõttes olemas ja kes ise eelprojekti järgi vundamendiprojekti koostab.... Näiteks: Plaatvundamendi ehitamine, mis andmeid vajab ehitaja? Ilmselt on vaja eriosana kütte/ventilatsiooni projekti? Kas vee/kanali projekti? Kas elektri projekti? Need eriosad tehakse eelprojektile juurde eks?
Vundamendi, eriti plaatvundamendi ehitamine koosneb valdavalt kaetavatest töödest.
See tähendab, et pärast igat töölõiku ja enne järgnevat töölõiku on kohustuslik koostada Kaetud Tööde Akt (KTA).
Tänase Ehitusseadustiku kohustusliku määruse kohaselt peab KTA-s olema põhjendatud hinnang, et töö ja paigaldatud materjalid vastavad projektile ja nõuetele. Aga kui projektis vastavad joonised koos konstruktiivsete materjalide või nende oluliste omaduste loetelude osas üldse puuduvad, siis kas keegi oskaks mulle öelda, kuidas saab anda põhjendatud hinnangut projektile ja kõigile nõuetele vastavuse osas? Või teisiti öelduna, kui tõsiselt võetav on sel juhul ehitusdokument ja selles olev põhjendatud hinnang? Eriti, kui ehitajaks on suvaline eriteadmisteta töömees, kuigi muidu igati tubli ja isegi natuke ehituskogemustega.
Hea küsimus. Eelprojekt on pakkumise koostajale üldjuhul väga vilets ebaefektiivne tööriist. Selle sees peab pakkumise koostaja tohutult "kaevama" lisaarvutusi tegema, kui eelduseks on detailne peenarvutustel põhinev pakkumus. "Puusalt tulistajatele" ärimees tüüpi ehitajale ilmselt pole vahet. Lajatatakse mingi hind peale vaadates ja korrutatakse näitaks kolmega.Kas ehituse alustamiseks piisab eelprojektist ja vajalikest eriosadest, et küsida hinnapakkumisi ehitamiseks?
-
xxx111
- külaline
Re: Eelprojekti järgi ehitamine
Lugemata postitus Postitas xxx111 »
Punkt
-
kaimagk
- Ehitusveteran

- Postitusi: 1508
- Liitunud: 02 Juun 2010, 17:53
- On tänanud: 122 korda
- On tänatud: 49 korda
Re: Eelprojekti järgi ehitamine
Lugemata postitus Postitas kaimagk »
…..ise ehitasin oma kuudi ep alusel, paar sõlme vajas nati inelseneri abi, muus osas sain hakkama. Kui need ehitamise projektid oleks mõistlikuma hinnaga siis ehk oleks ka lasknud teha need. Minu maja eelarvest oleks need olnud liiga suur % kogu maksumusest.
-
xxx111
- külaline
Re: Eelprojekti järgi ehitamine
Lugemata postitus Postitas xxx111 »
Küsin siis otse - kas tead millised on nõutavad vahekaugused arvestades jõudude suunda...Samas kogemustega ehitaja ei vaja iga neala ja toru paigaldamiseks paberit….
-
kaimagk
- Ehitusveteran

- Postitusi: 1508
- Liitunud: 02 Juun 2010, 17:53
- On tänanud: 122 korda
- On tänatud: 49 korda
Re: Eelprojekti järgi ehitamine
Lugemata postitus Postitas kaimagk »
Sa ka ju ei arvuta identseid maju uuest ja uuesti.
-
vuuk
- Ehituspenskar

- Postitusi: 2591
- Liitunud: 15 Jaan 2008, 09:34
- On tänanud: 73 korda
- On tänatud: 136 korda
Re: Eelprojekti järgi ehitamine
Lugemata postitus Postitas vuuk »
Selle seisukohaga võiks nõustuda siis, kui üks ehitaja on ehitanud ilma projektimuudatusteta palju identseid tüüpprojekti alusel maju, millel on identne aluspinnas. Identne aluspinnas ei pruugi olla tegelikult isegi mitte sama kinnistu piires.
Isegi siis kui ollakse omandanud palju kogemusi analoogsete (mitteidentsete) majade ehitamisel ja projektis olevad tüüpsed detailjoonised on ehitajale vägagi tuttavad, ei tee need paha. Projektiinseneril pole raske neid copi-paste meetodil lisada. Ehitajal (või ka omanikul-omanikujärelevalve teostajal) võib olla midagi vahepeal meelest läinud ja kunagi pole paha olulist infot üle kontrollida.
Internetist või oma kaustadest tuhnimine ja vajaliku leidmine võib olla mõnikord nagu nõela otsimine heinakuhjast. Projektist vajaliku leidmine võtaks ehk mõne minuti. Aga aeg pidavat olema raha. Ka ehitajale võib aeg olla kallis.
Projekt pole tööriistaks mitte üksnes ehitajale vaid ka materjalide, tööde mahtude arvutajale, materjalidega objekti varustajale. Olulised materjalid ja sõlmed peaks määrama ikka insener. Mitte nii, et küsitakse ehitajalt või sõbralt. Kusjuures tavaliselt juhtub viimasel juhul nii, et üks ehitaja soovitab nii, teine naa ja sõber kolmandat moodi.
- pikk88
- Ehituspenskar

- Postitusi: 2366
- Liitunud: 15 Juun 2009, 21:11
- On tänanud: 50 korda
- On tänatud: 49 korda
Re: Eelprojekti järgi ehitamine
Lugemata postitus Postitas pikk88 »
Küll aga ei näe ma mingit põhjust selle paberile vormistamiseks, sest mul ei ole hiljem tarvis kellegagi vaielda kas soojustus sai ikka selline nagu projektis ning kas plokid said ikka seest armeeritud ning betoneeritud või ei saanud. Tean seda ise, sest ei telli neid töid võõralt firmalt. Samuti ei pea ma selgitama töövõtjale detailselt lahti mida ma temast saada tahan. Kui aga ise kujutad ette, et tahaks vaid kivist soklit majale teha ja otsid selleks ehitajat siis on targem tellida endale ka korralik projekt.
-
Küülaline
- Ehituspenskar

- Postitusi: 6774
- Liitunud: 02 Veebr 2009, 22:46
- On tänanud: 124 korda
- On tänatud: 154 korda
Re: Eelprojekti järgi ehitamine
Lugemata postitus Postitas Küülaline »
Kas sa pead "põhjaliku" all silmas, et väljastpoolt, seestpoolt ja põhja, st taldmiku alt ka?
-
Urmas
- autodidakt
- Postitusi: 13813
- Liitunud: 17 Apr 2009, 23:51
- On tänanud: 426 korda
- On tänatud: 460 korda
Re: Eelprojekti järgi ehitamine
Lugemata postitus Postitas Urmas »
Ehitaja seisukohalt, kes teeb tööd tunnitasu alusel, siis nii ja naa. Kui liiga kiiresti vajaliku projektist üles leiab, siis saab ta vähem raha, aga kui paneb töötundidena kirja ka mõttetöö eelprojekti põhjal ehitades, siis ta saab rohkem raha.vuuk kirjutas: 10 Mai 2023, 07:36 Projektist vajaliku leidmine võtaks ehk mõne minuti. Aga aeg pidavat olema raha. Ka ehitajale võib aeg olla kallis.
- pikk88
- Ehituspenskar

- Postitusi: 2366
- Liitunud: 15 Juun 2009, 21:11
- On tänanud: 50 korda
- On tänatud: 49 korda
Re: Eelprojekti järgi ehitamine
Lugemata postitus Postitas pikk88 »
Jah, taldmik jääb küll hüdroisolatasioonist välja, hüdro tuleb teha ikka vundamendimüüri ja taldmiku vahele ning müür tuleb katta seestpoolt ja väljastpoolt, muidu tekib maa sisse ju asi mida siin foorumis kutsutakse ilma tallata kummikuks.
-
Prill
- Ehitusveteran

- Postitusi: 1740
- Liitunud: 27 Veebr 2017, 10:36
- On tänanud: 7 korda
- On tänatud: 96 korda
Re: Eelprojekti järgi ehitamine
Lugemata postitus Postitas Prill »
Sama ka elumajade kohta, kus minu vana-vanaema kunagises talumajas elab vist juba julgelt 4-5 põlvkond, iga põlvkond on remontinud-kõpitsenud oma aja võimaluste kohaselt, ei ole kokku kukkunud, julge 100 aastat inimestele kodu pakkunud..
Siit foorumist aga loed, et kui x materjalil sertifikaati pole ja tuhandete eurode eest inseneri sõlmi ja järelvalvet, ekspertiise ei osta, siis 50 aastat maja ei püsi..
Samamoodi vaatan kuidas USA-s ja Kanadas seal Alaska kandis need uusasunikud ehitavad samamoodi nagu minevikus, vaja oskajat töömeest, materjal saetakse kohapealt metsast ja oma/talgu jõududega aetake maja püsti ilma inseneride vahet tunglemiseta - ja raisad elavad, põlvkondade kaupa.
Või kasvõi meie enda nõuka aegsed magalad, kus aegajalt mõni teadja paiskab meediasse, kuidas tegu olevat 50 aastase elueaga hoonetega, mis nõukaaja defitsiidiaja kasina kvaliteediga tehtud, ammu moraalselt vananenud jne ning suur häda ootab ees kui tuhanded inimesed koduta jäävad ja neid maju tuleb massiliselt lammutama hakata.
Aga näe kümnendid muudkui lähevad ja ei taha need paneelikad kuskile kukkuda, püsivad, hoiavad hinda ja kõpitsetakse aina energiasäästlikumaks.
Kui vaadata veel linnade nn vanalinnu on olukord veel veidram, kus hoonetel ei leidu mingeid projekte arvutusi ja isegi renoveerimisel tuleb üllatusi, näiteks mõnel hoonel puudub tänapäevases mõistes vundament, hunnik lahtiseid kive seina all - hoone ehitaja/meister sajandeid juba surnud, pole kedagi isegi vastutusele võtta.
-
vuuk
- Ehituspenskar

- Postitusi: 2591
- Liitunud: 15 Jaan 2008, 09:34
- On tänanud: 73 korda
- On tänatud: 136 korda
Re: Eelprojekti järgi ehitamine
Lugemata postitus Postitas vuuk »
Paistab, et Urmast on rahateema hästi kõnetanud... .Urmas kirjutas: 11 Mai 2023, 06:18 ...
Kui liiga kiiresti vajaliku projektist üles leiab, siis saab ta vähem raha, aga kui paneb töötundidena kirja ka mõttetöö eelprojekti põhjal ehitades, siis ta saab rohkem raha.![]()
Paluks mitte üldistada, et kõik ehitajad oleksid ühtviisi suhtumisega ja mõtteviisiga.
Suurem osa ajutööst või mõttetöö on minu arvates pigem mõistlik ära teha arvutis suure ekraani taga, mitte näiteks vundamendikraavis tuule ja vihma käes moblat näppides - igal üldehituse objektil pole ju isegi soojakuvõimalust, silmas pidades eramu või selle juurde kuuluva hoone, rajatise ehitust.
Mina olengi sedasorti ehitaja olnud, kes püüabki olulise info enne tööle asumist enesele 100% selgeks teha ja objektil püüan täie tootlikkusega tegelda näiteks müüritööga, mitte informatsioonis kaevamisega.
Paraku väljaspool objektil oleku aega seonduva töö tegemist on ettevõtjal raske või võimatu Tellijalt sisse kasseerida. Üldjuhul eeldab tellija ikkagi, et töö aeg algab ja lõpeb ehitajal objektil. Mida ettevõtja enne või pärast lisaks teeb, see kipub jääma ehitusettevõtja kuluartikliks. Või ehk ärimees Urmas õpetab, kuidas ka nende paljude lisatundide eest raha küsida. Võib-olla saaks siis nii mõnigi väikeettevõtjast ehitaja lisanduva tulu abil ka endale mingisuguse väikese uue energiatõhusa kodukese ehitamist lubada.
PS. Kui enne ehitamise alustamist on vajalik info lünklik, siis kipub veel ka see häda olema, et kõiki vajalike samme pole olnud võimalik korralikult ette näha ja midagi võib minna kergemini vussi (mõni ukse, akna ava vales kohas või vales mõõdus, mõni sein vales kohas või mis iganes...) ja peab ümber tegema, või näiteks võib ootamatult ilmneda vajadus mingite materjalide, töövahendite, -riistade järele, mille peale pole aegsasti tulnud. Vastavalt Murphy seadusele kipub see viimane juhtuma sedavõrd suurema tõenäosusega, mida kaugemal asub ehitusobjekt. Võib jääda ilus päev poolikuks, suurenevad sõidukulud... .
Ja muuseas, juba ammusel ajal mõeldi välja spetsialiseerumise süsteem, kus olulise mõtlemise, aju töö ning selle tulemuse must-valgel (projekti kujul) kirja panek on pandud selleks spetsiaalselt koolitatud inimestele. Ei pea olema nii, et iga "labidamees" teeb objektil targa näoga insenertehnilisi arvutusi labidaliigutamise asemel.
-
vuuk
- Ehituspenskar

- Postitusi: 2591
- Liitunud: 15 Jaan 2008, 09:34
- On tänanud: 73 korda
- On tänatud: 136 korda
Re: Eelprojekti järgi ehitamine
Lugemata postitus Postitas vuuk »
Lähiminevikku vaadates, aastal 2015 jõustus uus Ehitusseadustik, milles § 12 kehtestab, et ehitamine peab toimuma ehitusprojekti järgi.
Väidetavalt ikka selleks, et kaitsta Tellijat lolli (kogenud lolli) ehitaja eest. Ühelegi ehitajale pole midagi otsaette kirjutatud, vähemalt mina ei ole seda märganud.
Igasugune protsessi juhtimine (sealhulgas ehitusprotsessi juhtimine) saab toimuda erineval meetodil.
Projekt on ühe projektijuhtimise meetodi oluline tööriist.
Et erineva meetodiga ja erinevate tööriistadega võib jõuda sama tulemuseni, see võib paista eemalt vaadates.
Minevikus liiguti ühest punktist teise põhiliselt hobustega ja käidi jala. Tänapäeval sõidetakse autodega, kuna tahetakse kiiremini ja lihtsamini saada kaugemale. Mõeldi välja liiklusreeglid... .
Võrdlusparalleeli võib tuua minevikumajade ja tänaste energiatõhusate, vahepeal kasvanud ehitusnõuete järgi ehitatavate majade ja elustandardite vahele.
Mine “Projekteerimine, projektid”
- Ehitusfoorum
- ↳ Üldfoorum
- ↳ Ahjud, kaminad, korstnad
- ↳ Aiad, väravad
- ↳ Aknad, uksed
- ↳ Betoon ja betoonitooted
- ↳ Ehitustööriistad
- ↳ Ehitusmaterjalid
- ↳ Elekter, elektriseadmed
- ↳ Energiamärgis ja energiaaudit
- ↳ Fassaadide arutelu
- ↳ Katused, laed
- ↳ Hüdroisolatsioon
- ↳ Kaevud
- ↳ Konstruktsioonid, seinad
- ↳ Küttesüsteemid
- ↳ Palkmajad
- ↳ Projekteerimine, projektid
- ↳ Põrandad
- ↳ Puit ja puidutooted
- ↳ Restaureerimine
- ↳ Seadusandlus
- ↳ Soojustus, isolatsioon
- ↳ Saunad, dussiruumid, vannitoad, sanitaartehnika
- ↳ Siseviimistlus, värvid, plaatimistööd
- ↳ Ventilatsioon
- ↳ Veevarustus, kanalisatsioon, käimlad
- ↳ Vundamendid
- ↳ Naljanurk
- ↳ Arhiiv
- Ärifoorumid
- ↳ Otsin tööd
- ↳ Pakun tööd
- ↳ Ostu-müügifoorum
- ↳ Annan/võtan rendile
- ↳ Hinnapäring