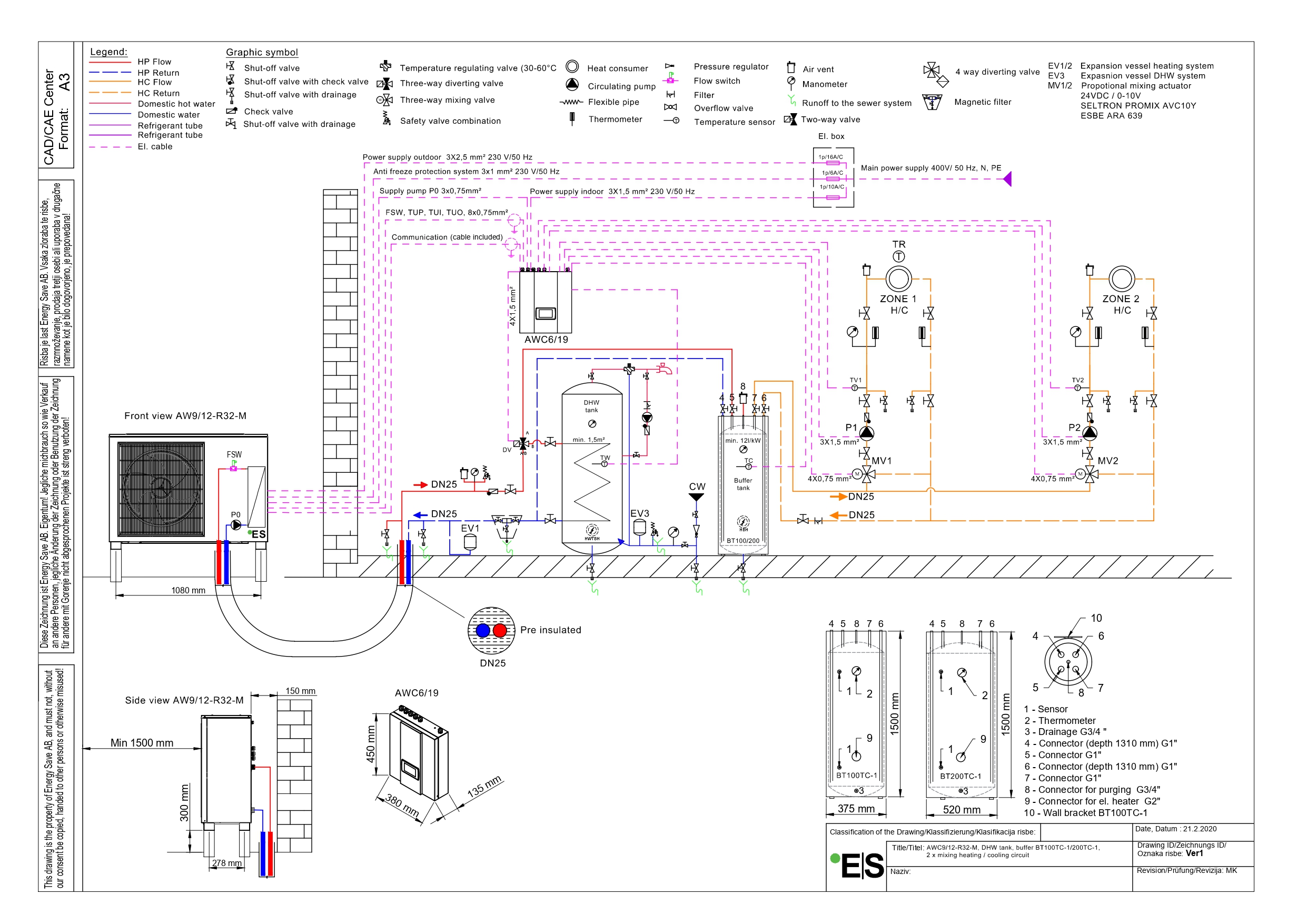
Õ/V pumba ühendused akupaagi ja tarbevee boileriga
küttesüsteemid, millega ja kuidas kütta
-
Kalvis
- Ehituspenskar

- Postitusi: 11638
- Liitunud: 03 Veebr 2008, 14:02
- On tänanud: 4 korda
- On tänatud: 336 korda
Re: Õ/V pumba ühendused akupaagi ja tarbevee boileriga
Puhverpaak on SP müüjate mõttetu lisavidin, mille ainus mõte oleks kasutada päeva ja öö elektrihindade erinevust.
Olen ehitanud ja võin kinnitada - kõik SP-d töötavad väga hästi ilma puhverpaagita, eriti hästi põrandaküttega, mis täidab puhverpaagi rolli pareminigi (põrandal on just suur soojusinerts) Kuid only radikad töötab kenasti - radikates on tegelikult ikka piisavalt palju vett, et sulatuse ajaks on temp.langus vaid mõni kraad ilma puhverpaagita.
Ilma DHW väljundita kasutatakse ümberlülitatavat klappi ja siis on tarbijaks ainult boiler. Ära sellistele lahendustele plaanigi radikaid lisada, see ei ole nii ette nähtud (eespool akf selgitas miks). Sel juhul on kõige parem SP väljund peale klappi otse radikatesse siis põrandaküttesse ja saad toimiva lahendusega.
Olen ehitanud ja võin kinnitada - kõik SP-d töötavad väga hästi ilma puhverpaagita, eriti hästi põrandaküttega, mis täidab puhverpaagi rolli pareminigi (põrandal on just suur soojusinerts) Kuid only radikad töötab kenasti - radikates on tegelikult ikka piisavalt palju vett, et sulatuse ajaks on temp.langus vaid mõni kraad ilma puhverpaagita.
Ilma DHW väljundita kasutatakse ümberlülitatavat klappi ja siis on tarbijaks ainult boiler. Ära sellistele lahendustele plaanigi radikaid lisada, see ei ole nii ette nähtud (eespool akf selgitas miks). Sel juhul on kõige parem SP väljund peale klappi otse radikatesse siis põrandaküttesse ja saad toimiva lahendusega.
-
rye
- Ehitusspets

- Postitusi: 471
- Liitunud: 15 Juul 2019, 22:54
- On tänanud: 15 korda
- On tänatud: 7 korda
Re: Õ/V pumba ühendused akupaagi ja tarbevee boileriga
Aga radikad lisaks boilerile DHW väljundisse oleks siis OK ?
PS! väldime foorumis vastuseid stiilis "telli projekt", "mine esindusse", "kutsu professionaal" vms.
-
Coolhouse
- Ehitusveteran

- Postitusi: 1085
- Liitunud: 12 Sept 2008, 14:19
- On tänanud: 1 korda
- On tänatud: 32 korda
Re: Õ/V pumba ühendused akupaagi ja tarbevee boileriga
Ostad soojuspumba.
Soojuspumbaga on kaasas paigaldusjuhend. Nii nagu juhendis näidatud on selliselt ka torustiku skeem ühendatakse.
Ei pea midagi ise välja mõtlema.
Kuidas see siis toimiks kui esmalt läheb vesi radikatesse ja seejärel põrandaküttesse? Kui radiaatorite termostaadid sulguvad siis veeringlus lakkab või ka väheneb. Soojuspump seiskub.
Esmalt vesi tarbevee boilerisse ja siis radikatesse. Ka nii ei tehta.
Soojus majja viiakse suurema veehulga abil.
Automaatika seisukohalt peab süsteem olema juhitav st radiaatorid on eraldi süsteem ja põrandaküte eraldi süsteem. Kummalgi on eraldi juhtimine. Kui üks sõltuks teisest (nt radikad võtavad külmaga kogu soojuse ära ja põrandaküttele ei jätkugi) siis ei ole süsteem juhitav.
Sellised soojuspumbad kus on eraldi võimalik seadistada veetemp radiaatoritele, põrandaküttele ja tarbeveele on ammu olemas.
Soojuspumbaga on kaasas paigaldusjuhend. Nii nagu juhendis näidatud on selliselt ka torustiku skeem ühendatakse.
Ei pea midagi ise välja mõtlema.
Kuidas see siis toimiks kui esmalt läheb vesi radikatesse ja seejärel põrandaküttesse? Kui radiaatorite termostaadid sulguvad siis veeringlus lakkab või ka väheneb. Soojuspump seiskub.
Esmalt vesi tarbevee boilerisse ja siis radikatesse. Ka nii ei tehta.
Soojus majja viiakse suurema veehulga abil.
Automaatika seisukohalt peab süsteem olema juhitav st radiaatorid on eraldi süsteem ja põrandaküte eraldi süsteem. Kummalgi on eraldi juhtimine. Kui üks sõltuks teisest (nt radikad võtavad külmaga kogu soojuse ära ja põrandaküttele ei jätkugi) siis ei ole süsteem juhitav.
Sellised soojuspumbad kus on eraldi võimalik seadistada veetemp radiaatoritele, põrandaküttele ja tarbeveele on ammu olemas.
Õhk-vesi soojuspumbad, külmseadmed .
Müük, hooldus. info@coolhouse.ee
Müük, hooldus. info@coolhouse.ee
-
netmaster
- Ehitusspets

- Postitusi: 493
- Liitunud: 07 Dets 2013, 11:36
- On tänanud: 6 korda
- On tänatud: 32 korda
Re: Õ/V pumba ühendused akupaagi ja tarbevee boileriga
sellest kogu jutt alguse sai, et sellised süsteemid toodavad kehva COPiga kõrge temperatuuriga vett ja siis segavad seda õigete kraadide saamiseks. Või tead sa mõnda pumpa, mis toodab kordamööda kolme erineva temperatuuriga (otstarbega) vett.Sellised soojuspumbad kus on eraldi võimalik seadistada veetemp radiaatoritele, põrandaküttele ja tarbeveele on ammu olemas.
oskad sa põhjendada, miks ei tehta? Kuidas teeb pump vahet, kas mul on soojavee kraan lahti, või aetakse boileris olevat küttevett parasjagu läbi radikate? Boiler jahtub mõlemal juhul täpselt ühtemoodi.Esmalt vesi tarbevee boilerisse ja siis radikatesse. Ka nii ei tehta.
-
Kalvis
- Ehituspenskar

- Postitusi: 11638
- Liitunud: 03 Veebr 2008, 14:02
- On tänanud: 4 korda
- On tänatud: 336 korda
Re: Õ/V pumba ühendused akupaagi ja tarbevee boileriga
Soojuspumpade juhendid on viletsad või vigased.Coolhouse kirjutas: 26 Mai 2025, 19:55 Kuidas see siis toimiks kui esmalt läheb vesi radikatesse ja seejärel põrandaküttesse? Kui radiaatorite termostaadid sulguvad siis veeringlus lakkab või ka väheneb. Soojuspump seiskub.
Esmalt vesi tarbevee boilerisse ja siis radikatesse. Ka nii ei tehta.
Soojus majja viiakse suurema veehulga abil.
Automaatika seisukohalt peab süsteem olema juhitav st radiaatorid on eraldi süsteem ja põrandaküte eraldi süsteem. Kummalgi on eraldi juhtimine. Kui üks sõltuks teisest (nt radikad võtavad külmaga kogu soojuse ära ja põrandaküttele ei jätkugi) siis ei ole süsteem juhitav.
Sellised soojuspumbad kus on eraldi võimalik seadistada veetemp radiaatoritele, põrandaküttele ja tarbeveele on ammu olemas.
Ennist ütlesin radiaatoritel ei panda mitte kõik termostaatide alla. See ruum kus asub juhtpaneel, selle ruumi oma on otse (ei ole termostaati)
Põrandaküttele on soovitav ette panna tavaline segamiskraan, kuid eelkõige kaitseks kui radikatest peaks tagastuv olema üle 35 C kuid sobib ideaalselt ka põrandakütte juhtimiseks. Kui SP on selle toetus olemas siis loomulikult võib kasutada SP oma.
Otse loomulikult on radikatel oma kollektor ja põrandaküttel oma.
Segasüsteemi miinuseks on vajalik parem eelnev projekteerimine. SP peab teadma kas ta oskab põrandakütte kollektorit juhtida muutuva pealetuleva vee järgi. Tavasüsteemid saavad kenasti hakkama.
Viletsa COP rääkis jub akf netmaster ära.
-
Coolhouse
- Ehitusveteran

- Postitusi: 1085
- Liitunud: 12 Sept 2008, 14:19
- On tänanud: 1 korda
- On tänatud: 32 korda
Re: Õ/V pumba ühendused akupaagi ja tarbevee boileriga
Võtke lahti soojuspumpade andmed ja vaadake. Mida kõrgem on soojuspumbast väljuva vee temp seda madalam on kasutegur ehk COP.netmaster kirjutas: 26 Mai 2025, 20:10sellest kogu jutt alguse sai, et sellised süsteemid toodavad kehva COPiga kõrge temperatuuriga vett ja siis segavad seda õigete kraadide saamiseks. Või tead sa mõnda pumpa, mis toodab kordamööda kolme erineva temperatuuriga (otstarbega) vett.Sellised soojuspumbad kus on eraldi võimalik seadistada veetemp radiaatoritele, põrandaküttele ja tarbeveele on ammu olemas.
oskad sa põhjendada, miks ei tehta? Kuidas teeb pump vahet, kas mul on soojavee kraan lahti, või aetakse boileris olevat küttevett parasjagu läbi radikate? Boiler jahtub mõlemal juhul täpselt ühtemoodi.Esmalt vesi tarbevee boilerisse ja siis radikatesse. Ka nii ei tehta.
Seega pole kasulik paigaldada kõrgema temperatuuriga väiksemaid radikaid.
Sooja tarbevett tehakse küll nii soojaks kui vaja või siis võimalik. Sellel ajal ei ole COP hea.
Kolme erineva temp väljundiga soojuspump:
Nt kõik ES kodumajapidamise soojuspumbad.
1. Soe tarbevesi - 3-tee ventiil lülitub sellesse asendisse (ümberlülitav ventiil) soojuspumbast väljuval veetorul. Mõnel tootjal on selle asukoht ka tagastuval torul.
Ja soojuspumba oma ringluspump surub vee tarbevee paagi soojusvahetisse.
2. Soojuspump teeb küttevee puhverpaaki. Nt on puhverpaagis 45 C vesi.
a. Radiaatorite ringluspump võtab vee puhverpaagist.
( Soovi korral on selles ringis ka segusõlm mida juhib ES soojuspump. See on eraldi automaatika kontuur).
b. Puhverpaagist võtab vee põrandakütte ringluspump. Ees on segusõlm mida juhib ES soojuspump.
Puhverpaagi temp saab muuta välisõhust sõltuva küttekõvera alusel kui soovi on.
Saab ka rakendada kellaajalist taimerit puhverpaagi temp tõstmiseks või langetamiseks.
Või välist börsihinna jälgimise programmi.
Paraku on õhk-vesi soojuspumbad oluliselt edasi arenenud sellest mida nad 10..15 a tagasi olid kui kasutusvõimalusi ja ka piiravaid (kaitsvaid) andureid oli vähem.
Ja keegi vastutab ka seadme eest. Garantiikohustus katab tootja või ka paigaldaja vead. Kuid kindlustus katab seadme remondi kulud teatud aastate jooksul kui viga pole tekkinud kulumisest.
Samuti ei taha kindlustus kuulda et viga tekkis paigaldaja süül.
Ehk ainuke mida peate tegema oma hoone kindlustuslepingusse - peate märkima kindlustatuks ka seadmed.
Kui nüüd avarii korral peaks selguma et avarii tekkis mingi kummalise paigaldusskeemi tõttu mida tootja ette ei näe siis võite ise arvata mis juhtuda võib.
Saage aru et tootjate tootearendus on väga kiire. Nt asus üks põhjanaaber kunagi soojuspumbale andmesidet välja mõtlema. Ta sai selle valmis aga siis oli tehas juba kolm mudeli põlvkonda edasi liikunud.
Tootjad pole rumalad ja vastutavad oma toodete ning ka paigaldusskeemide eest.
Õhk-vesi soojuspumbad, külmseadmed .
Müük, hooldus. info@coolhouse.ee
Müük, hooldus. info@coolhouse.ee
-
Kalvis
- Ehituspenskar

- Postitusi: 11638
- Liitunud: 03 Veebr 2008, 14:02
- On tänanud: 4 korda
- On tänatud: 336 korda
Re: Õ/V pumba ühendused akupaagi ja tarbevee boileriga
See jutt on just see kuidas teha ei tohiks. Nii saabki viletsa COPi.
absoluutselt parima COP, odavaima ehitusmaksumusega ja isegi parima toimivusega saab kui SP on põrandaküte on taga otse ilma igasuguste lisavidinatega. Ongi vaid põranakütte kollektor. SP juhib ruumõhu termostaadi järgi.
Sellele süsteemile võib lisada DHW kas klapiga või ilma (kui SP on väljund).
Identne on sama lahendus ainult radikatega. Siin tuleb paraku viletsam COP mängu.
Kõige raskem, vigaderohkem on segasüsteem. Nüüd tulevad mängu 3tee segamisventiilid (vaid põrandaküttele) sest vahepeal on üks muutuv osa radikate näol.
absoluutselt parima COP, odavaima ehitusmaksumusega ja isegi parima toimivusega saab kui SP on põrandaküte on taga otse ilma igasuguste lisavidinatega. Ongi vaid põranakütte kollektor. SP juhib ruumõhu termostaadi järgi.
Sellele süsteemile võib lisada DHW kas klapiga või ilma (kui SP on väljund).
Identne on sama lahendus ainult radikatega. Siin tuleb paraku viletsam COP mängu.
Kõige raskem, vigaderohkem on segasüsteem. Nüüd tulevad mängu 3tee segamisventiilid (vaid põrandaküttele) sest vahepeal on üks muutuv osa radikate näol.
-
rye
- Ehitusspets

- Postitusi: 471
- Liitunud: 15 Juul 2019, 22:54
- On tänanud: 15 korda
- On tänatud: 7 korda
Re: Õ/V pumba ühendused akupaagi ja tarbevee boileriga
Igaks juhuks küsin kontrollküsimuse kahe viimase postituse peale.
Me räägime erinevate temperatuuridega vee tootmisest kordamööda, mitte samaegselt, eksju?
Me räägime erinevate temperatuuridega vee tootmisest kordamööda, mitte samaegselt, eksju?
PS! väldime foorumis vastuseid stiilis "telli projekt", "mine esindusse", "kutsu professionaal" vms.
-
Kalvis
- Ehituspenskar

- Postitusi: 11638
- Liitunud: 03 Veebr 2008, 14:02
- On tänanud: 4 korda
- On tänatud: 336 korda
Re: Õ/V pumba ühendused akupaagi ja tarbevee boileriga
Jutt käib vaid DHW tootmisest juhul kui kasutatakse 3 tee ventiili. See on jah kordamööda mistahes muu kütteveega. Siis on jah küttevee asemel köetakse pump tüüpselt 55 C väljundisse. SP pump vaatab - DHW boiler tahab kütmist, annab 3 tee klapile ümberlülitamiskäsu ja edvsi kütab niikaua kuni DHW boileri andur kinnitab - nütud temp (55 C) on saavutatud. Siis lülitab klapi tagasi küttevee valitud reziimile (neid on mitmeid)
Veel mõnda aega sisseehitatud SP boilerlahendustes oli eraldi DHW väljund kus anti koguaeg 55 C välja ja oli ka teine väljund kütteveele mis on nagu tänaseni. Neis andis SP pidevalt mõlemasse väljundisse paraleelselt.
DHW väljundil on oma väline temp. andur boileris.
Veel mõnda aega sisseehitatud SP boilerlahendustes oli eraldi DHW väljund kus anti koguaeg 55 C välja ja oli ka teine väljund kütteveele mis on nagu tänaseni. Neis andis SP pidevalt mõlemasse väljundisse paraleelselt.
DHW väljundil on oma väline temp. andur boileris.
-
Coolhouse
- Ehitusveteran

- Postitusi: 1085
- Liitunud: 12 Sept 2008, 14:19
- On tänanud: 1 korda
- On tänatud: 32 korda
Re: Õ/V pumba ühendused akupaagi ja tarbevee boileriga
Skeem on lisatud postitusse. See pole nii et vahepeal köetakse radiaatoreid ja vahepeal mitte.rye kirjutas: 28 Mai 2025, 06:33 Igaks juhuks küsin kontrollküsimuse kahe viimase postituse peale.
Me räägime erinevate temperatuuridega vee tootmisest kordamööda, mitte samaegselt, eksju?
Radiaatorites ringleb pidevalt soe vesi. Siis see vesi ei pea olema nii kuum.
Energiat kannab edasi veevoog.
Esimene ring on soojuspumbast puhverpaagini. Teine ringluspump lööb radiaatoritesse ja kolmas põrandasse.
(Kui soov on konkreetsel juhul 15 kW soojusvõimsust välisõhul -15C ja väljuva küttevee temperatuuril 35C??? 55C ? siis on soojuspumbast väljuv toru suurusjärgus 32 mm ja masin ise mehe kõrgune. Seda veeringlust ei saa suruda soojuspumbast otse läbi radiaatorite. Kuid 15 kW -15 C ja 200 m2 maja siis see maja eriti sooja ei pea või on võimsusega liialdatud.)
Õhk-vesi soojuspumbad, külmseadmed .
Müük, hooldus. info@coolhouse.ee
Müük, hooldus. info@coolhouse.ee
-
Kalvis
- Ehituspenskar

- Postitusi: 11638
- Liitunud: 03 Veebr 2008, 14:02
- On tänanud: 4 korda
- On tänatud: 336 korda
Re: Õ/V pumba ühendused akupaagi ja tarbevee boileriga
Siin on erinevad küsimused ja kahjuks pole küsimus selgelt sõnastatud mida küsija mõtleb.Coolhouse kirjutas: 28 Mai 2025, 14:10 Skeem on lisatud postitusse. See pole nii et vahepeal köetakse radiaatoreid ja vahepeal mitte...
.. siis on soojuspumbast väljuv toru suurusjärgus 32 mm ja masin ise mehe kõrgune. Seda veeringlust ei saa suruda soojuspumbast otse läbi radiaatorite. Kuid 15 kW -15 C ja 200 m2 maja siis see maja eriti sooja ei pea või on võimsusega liialdatud.)
DHW ei ole mõeldud kütmiseks.
SP on kütte väljund mõeldud kütmiseks (nii radikatele kui põrandaküttele...).
Pange paika kõigepealt lõplikult millisest SP liigist üldse jutt käib. Neid on erinevaid ja eriliigilistel on täiesti erinev kasutamine.
Kõige levinumatel SP-del ei ole DHW väljundit. On 3 tee klapp mida lülitatakse ringi küttevee väljundis DHW-ks. Veelkord see ümberlülitus on mõeldud ainult DHW-le ja sinna ei ole mõtet radikaid toppida, täielik nonsens.
Saab. Tegin katse - 20 mm alupex toru 40 C ja küttis -20 C juures maja ära. Põhjus oli lihtne - mul oli vaja vedada küttetoru ülikeeruka paljude S käänakutega. 20 mm toru oli viimane, mida saab painutada Tobe oli 1" väljund viia 20 mm alupexi. Plaan oli kui ei vea välja panna paraleeltoru aga näe vedas välja. Peatoru pikkus oli 20 m. (edasi tagasi 40 m)
-
rye
- Ehitusspets

- Postitusi: 471
- Liitunud: 15 Juul 2019, 22:54
- On tänanud: 15 korda
- On tänatud: 7 korda
Re: Õ/V pumba ühendused akupaagi ja tarbevee boileriga
Võimsusega on liialdatud, kuna nopin välja odavad tunnid ja salvestan põrandasse/konstruktsiooni (raudbetoon vahelagi + aeroc sein)Coolhouse kirjutas: 28 Mai 2025, 14:10 Kuid 15 kW -15 C ja 200 m2 maja siis see maja eriti sooja ei pea või on võimsusega liialdatud.)
PS! väldime foorumis vastuseid stiilis "telli projekt", "mine esindusse", "kutsu professionaal" vms.
-
ping
- Ehituspenskar

- Postitusi: 6602
- Liitunud: 28 Jaan 2016, 10:35
- On tänanud: 120 korda
- On tänatud: 307 korda
Re: Õ/V pumba ühendused akupaagi ja tarbevee boileriga
Enne usu alusel tegutsemist on kasulik uurida erinevate materjalide erisoojusi, millest on selgelt näha, et kui palju need materjalid üldse mõnekraadise temperatuurivahega salvestada suudavad ja kuidas on saadud arvu suhe läbi hoone seinte lahkuva soojuse hulgaga.rye kirjutas: 29 Mai 2025, 23:38 ... salvestan põrandasse/konstruktsiooni (raudbetoon vahelagi + aeroc sein)
Kui paljud on nõus sellise säästu nimel harjutud mugavusest loobuma?
Ega see 10cm paksune betoonplaat ei ole suurem asi salvestaja, kui ei taha eluruumide temperatuurikõikumist üle 3C saada.
Ja kui suur on aeroci erisoojus, mis tegelikult peab töötama soojusisolaatorina?
Kui kütta betoonpõrandat ainult öösiti, siis sellises ruumis on päeval päris ebamugav viibida.
Õppefilosoofia paradoks - õpetamine on tühi töö ja vaimu närimine, sest lollile ei jää nagunii midagi külge, andekas õpilane saab aga kõik ise selgeks, kui on loodud tingimused arenemiseks.
-
netmaster
- Ehitusspets

- Postitusi: 493
- Liitunud: 07 Dets 2013, 11:36
- On tänanud: 6 korda
- On tänatud: 32 korda
Re: Õ/V pumba ühendused akupaagi ja tarbevee boileriga
Mis sa ajad. Praktikas suudab 20 tonni (10cm plaat 100m2 majal) betooni ikka üksjagu sooja salvestada. Kindlasti rohkem, kui mistahes muu variant tavalises elumajas.Ega see 10cm paksune betoonplaat ei ole suurem asi salvestaja
mina tunnen palja jalaga kuskil teise päeva õhtul, et puitparketiga kaetud põrand on jahedam. Sõltub muidugi välistemperatuurist, kuid ebamugavaks läheb siis, kui pump pole 3 ööpäeva kütnud. Selleks ajaks on toatemperatuur langenud võibolla 3-4 kraadi.Kui kütta betoonpõrandat ainult öösiti, siis sellises ruumis on päeval päris ebamugav viibida.
-
rst
- Ehitusspets

- Postitusi: 444
- Liitunud: 30 Okt 2013, 17:18
- On tänanud: 20 korda
- On tänatud: 19 korda
Re: Õ/V pumba ühendused akupaagi ja tarbevee boileriga
Kui nopid välja 4-6h kõige kallimat tundi ööpäevas, siis saavutad juba enamuse säästu börsihinnaga elektrit ostes. Sealt edasi läheb säästmise mõtekus kahtluse alla, lisaks pead eelnevalt soetama tunduvalt võimsama soojuspumba.
Ei tasu vaadata elektrihinna puhul ainult seda 1-4 ülisoodsat tundi. Kui lisada elektrihinnale ka võrgutasu juurde, siis tegelikult on näiteks 2s ja 7s elektri hinna vahe suht olematu võrreldes mõne tiputunni näiteks 15+s hinnaga.
Kõige lihtsam antud hoonel oleks ikkagi minu arvates paigadada madala temperauurilised radikad (suuremad lihtsalt) koos termostaatidega ning põrandaküte lahendada ajamite ja termostaatidega.
Igale poole sama temperatuur lasta. Mul endal on selline süsteem ning -20 läheb 40 kraadi põradnasse aga kuna põrandakütte termostaadid reageerivad suht kiirelt, siis ei tunne, et põrand oleks kuum või põrandakattega oleks midagi juhtunud viimase 5a jooksul. Enamus ajast on meil nagunii kehv suusailm talvel ning pealevoolu temperatuur on minu süsteemil ca 32C, +/-1..2C .Vaja ainult ühte segamissõlme ja kõik. Ärge ajaga süsteeme liiga keeruliseks.
Ei tasu vaadata elektrihinna puhul ainult seda 1-4 ülisoodsat tundi. Kui lisada elektrihinnale ka võrgutasu juurde, siis tegelikult on näiteks 2s ja 7s elektri hinna vahe suht olematu võrreldes mõne tiputunni näiteks 15+s hinnaga.
Kõige lihtsam antud hoonel oleks ikkagi minu arvates paigadada madala temperauurilised radikad (suuremad lihtsalt) koos termostaatidega ning põrandaküte lahendada ajamite ja termostaatidega.
Igale poole sama temperatuur lasta. Mul endal on selline süsteem ning -20 läheb 40 kraadi põradnasse aga kuna põrandakütte termostaadid reageerivad suht kiirelt, siis ei tunne, et põrand oleks kuum või põrandakattega oleks midagi juhtunud viimase 5a jooksul. Enamus ajast on meil nagunii kehv suusailm talvel ning pealevoolu temperatuur on minu süsteemil ca 32C, +/-1..2C .Vaja ainult ühte segamissõlme ja kõik. Ärge ajaga süsteeme liiga keeruliseks.
-
ping
- Ehituspenskar

- Postitusi: 6602
- Liitunud: 28 Jaan 2016, 10:35
- On tänanud: 120 korda
- On tänatud: 307 korda
Re: Õ/V pumba ühendused akupaagi ja tarbevee boileriga
SI süsteemis ei ole sellist ühikut nagu "üksjagu sooja" ja kasuta ikka arve.netmaster kirjutas: 30 Mai 2025, 09:09Mis sa ajad. Praktikas suudab 20 tonni (10cm plaat 100m2 majal) betooni ikka üksjagu sooja salvestada. Kindlasti rohkem, kui mistahes muu variant tavalises elumajas. ...Ega see 10cm paksune betoonplaat ei ole suurem asi salvestaja
Võta näiteks delta 3C ja kui palju oleks sellisel juhul 10m3 betooni soojamahtuvus?
Kui suurt võimsust on vaja, et väheste soodsate tundidega, lisaks tavapärasele kütmisele ülejäänud ööpäevaks vajalik energia salvestada?
(Eriti kui tulevikus tekib vajadus e-autot samadel odavatel tundidel laadida.)
Ja kuidas see suhtub betoonpõranda kasutusjuhenditesse, milles lubatakse põranda temperatuuri muutumise kiiruseks 1C/24h jooksul?
Analoogset energeetilist arvestust koos hinnaga on juba 13 aastat tagasi siin samas ilusti tehtud aga kus muidugi tasub arvestada aastatega tõusnud elektri- ja võrgutasusid:
viewtopic.php?t=37596
Õppefilosoofia paradoks - õpetamine on tühi töö ja vaimu närimine, sest lollile ei jää nagunii midagi külge, andekas õpilane saab aga kõik ise selgeks, kui on loodud tingimused arenemiseks.
-
netmaster
- Ehitusspets

- Postitusi: 493
- Liitunud: 07 Dets 2013, 11:36
- On tänanud: 6 korda
- On tänatud: 32 korda
Re: Õ/V pumba ühendused akupaagi ja tarbevee boileriga
seda saad sa arvutada teoreetiliselt ja sedagi teatud piirini. Elumaja ei ole kosmoserakett, kus iga gramm ja kraad arvel on. Palju olulisem on see, kuidas seal elada on. Lisaks on raske betoonpõrandale alternatiivi leida. Sa võid ju arvutada palju tahes, kuid keegi ei pane endale viietonnist tinakamakat elutoa nurka, sest arvutuslikult salvestab see palju soojust. Mul on teisel korrusel 5cm kipsivalu igas toas ja isegi see salvestab piisavalt soojust, et päeva jooksul ei tunne märkimisväärset temperatuuri alanemist. See, kas see alanemine on 0,225C või 1,579C ei oma mingit tähtsust.Võta näiteks delta 3C ja kui palju oleks sellisel juhul 10m3 betooni soojamahtuvus?
Viimane pool aastat olen keelanud pumbal kütta 8 kõige kallima tunni jooskul ööpäevas. Enne seda 6h jooksul. Ei tunne toas erilisi temperatuurikõikumisi. Mingi kokkuhoiu see kindlasti annab, iseasi kui palju. Olen arvamusel, et niikaua kui see ebamugavusi ei põhjusta ja midagi ei maksa, on selline klõpsimine rahaliselt kasulik. Ainuke potensiaalne probleem on, et kui need kallid tunnid on kõik järjest ja maja on külalisi täis, siis võib soe vesi otsa saada. Seda pole seni siiski juhtunud.
-
rye
- Ehitusspets

- Postitusi: 471
- Liitunud: 15 Juul 2019, 22:54
- On tänanud: 15 korda
- On tänatud: 7 korda
Re: Õ/V pumba ühendused akupaagi ja tarbevee boileriga
Tegelikult tean mida räägin, kuna netmasterile sarnaselt on mul ka päris enda kogemus teises kohas kus see odavate tundide välja noppimine on 3 talve väga hästi toiminud. Olgu, -20-ga peab ikka 12 tundi kütma, mitte 6, aga siis on elekter kogu aeg nagunii hirmkallis. Halupuudega harjunule sobib ka 3 kraadine kõikumine.ping kirjutas: 30 Mai 2025, 02:36 Enne usu alusel tegutsemist on kasulik uurida erinevate materjalide erisoojusi, millest on selgelt näha, et kui palju need materjalid üldse mõnekraadise temperatuurivahega salvestada suudavad ja kuidas on saadud arvu suhe läbi hoone seinte lahkuva soojuse hulgaga.
Kui paljud on nõus sellise säästu nimel harjutud mugavusest loobuma?
Ega see 10cm paksune betoonplaat ei ole suurem asi salvestaja, kui ei taha eluruumide temperatuurikõikumist üle 3C saada.
Ja kui suur on aeroci erisoojus, mis tegelikult peab töötama soojusisolaatorina?
Kui kütta betoonpõrandat ainult öösiti, siis sellises ruumis on päeval päris ebamugav viibida.
![]()
Kuigi saan termodünaamika arvutustega hakkama, ei viitsi sellesse süübida ja usun pigem enda kogemust.
Minu rusikareegel on selline, et selliselt optimeeritud õhk-vesi teeb aasta jooksul sama välja mis optimeerimata maasoojuspump.
PS! väldime foorumis vastuseid stiilis "telli projekt", "mine esindusse", "kutsu professionaal" vms.
-
ping
- Ehituspenskar

- Postitusi: 6602
- Liitunud: 28 Jaan 2016, 10:35
- On tänanud: 120 korda
- On tänatud: 307 korda
Re: Õ/V pumba ühendused akupaagi ja tarbevee boileriga
Omast külma talve kogemustest ahiküttega elamus, olen kogenud kuni 13C ööpäevaseid temperatuurikõikumisi.rye kirjutas: 30 Mai 2025, 13:35 ... Halupuudega harjunule sobib ka 3 kraadine kõikumine.
Kuigi saan termodünaamika arvutustega hakkama, ei viitsi sellesse süübida ja usun pigem enda kogemust. ...
(Koolivend, kes ei viitsinud ahju kütta ja ega üleliigset rahagi puude jaoks õieti ei olnud, korraldas igal õhtul koroonamänge suurema seltskonnaga, et soojas hommikuni magada.)
Õppefilosoofia paradoks - õpetamine on tühi töö ja vaimu närimine, sest lollile ei jää nagunii midagi külge, andekas õpilane saab aga kõik ise selgeks, kui on loodud tingimused arenemiseks.
-
Küülaline
- Ehituspenskar

- Postitusi: 6765
- Liitunud: 02 Veebr 2009, 22:46
- On tänanud: 120 korda
- On tänatud: 153 korda
Re: Õ/V pumba ühendused akupaagi ja tarbevee boileriga
No kui koolivennal puid ei ole, siis võib ka 23 kraadiseid kõikumisi olla. Jutt on ikka tavalisest elumajast. Mul on ka põhiliselt ahjuküte ja ei ole midagi erakordset, kui talvel on õhtul 24 ja hommikul 19. Panen tule ahju.
-
rye
- Ehitusspets

- Postitusi: 471
- Liitunud: 15 Juul 2019, 22:54
- On tänanud: 15 korda
- On tänatud: 7 korda
Re: Õ/V pumba ühendused akupaagi ja tarbevee boileriga
Kuna talv läheneb siis äratan teema üles.
Plaan osta Panasonic 12kW R32 Split mudel. R32 split kuna ei taha tegeleda õues vee külmumise muredega kui parajasti ei küta (elekter kallis) ja ei viitsi jurada antifriisiga.
Valitud pumba service manual on näiteks siin:
https://www.lämpöpumppuhuolto.com/image ... rja-en.pdf
Ühenduse plaaniks selliselt, et soojuspump kütab 3T klapiga kordamööda 60 (DHW) ja 35 kraadist vett
60 kraadises ringis kasutaks kahe spiraaliga tarbevee boilerit, boileris endas oleks joogivesi.
Nii nagu alloleval pildil (service manual lk 102), kuid päikesepaneeli asemel oleks teise korruse radikate ring, mida köetakse siis 60 kraadisest tarbeveest saadud soojaga.
Boiler võiks olla suurem, umbes 300l, et kohe maha ei jahtuks, kuid mitte liiga suur, kuna suvel liiga suurt kogust tarbevett soojas hoida ka ei tahaks.
Soojuspump võimaldab seadistada timereid ja kraade nii DHW kui ka põranda ringidele. Tsiteerides netmasterit - pump arvab, et sooja vett kulub lihtsalt jube palju.
Ennetavalt Kalvisele, et radikate ja põranda jadaühendus ei sobi mulle seetõttu, et üles radikatesse läheb liiga peenike toru ja põrandakütte kollektorit sellega jadasse panna ei saa.
Kiitke palun heaks või laitke maha.
Miks sellist lahendust ühegi soojuspumba manualis ei ole? Igal pool on segusõlmega = kõrge temp, alati kehva COP.
Plaan osta Panasonic 12kW R32 Split mudel. R32 split kuna ei taha tegeleda õues vee külmumise muredega kui parajasti ei küta (elekter kallis) ja ei viitsi jurada antifriisiga.
Valitud pumba service manual on näiteks siin:
https://www.lämpöpumppuhuolto.com/image ... rja-en.pdf
Ühenduse plaaniks selliselt, et soojuspump kütab 3T klapiga kordamööda 60 (DHW) ja 35 kraadist vett
60 kraadises ringis kasutaks kahe spiraaliga tarbevee boilerit, boileris endas oleks joogivesi.
Nii nagu alloleval pildil (service manual lk 102), kuid päikesepaneeli asemel oleks teise korruse radikate ring, mida köetakse siis 60 kraadisest tarbeveest saadud soojaga.
Boiler võiks olla suurem, umbes 300l, et kohe maha ei jahtuks, kuid mitte liiga suur, kuna suvel liiga suurt kogust tarbevett soojas hoida ka ei tahaks.
Soojuspump võimaldab seadistada timereid ja kraade nii DHW kui ka põranda ringidele. Tsiteerides netmasterit - pump arvab, et sooja vett kulub lihtsalt jube palju.
Ennetavalt Kalvisele, et radikate ja põranda jadaühendus ei sobi mulle seetõttu, et üles radikatesse läheb liiga peenike toru ja põrandakütte kollektorit sellega jadasse panna ei saa.
Kiitke palun heaks või laitke maha.
Miks sellist lahendust ühegi soojuspumba manualis ei ole? Igal pool on segusõlmega = kõrge temp, alati kehva COP.
PS! väldime foorumis vastuseid stiilis "telli projekt", "mine esindusse", "kutsu professionaal" vms.
-
Urmas
- autodidakt
- Postitusi: 13760
- Liitunud: 17 Apr 2009, 23:51
- On tänanud: 423 korda
- On tänatud: 460 korda
Re: Õ/V pumba ühendused akupaagi ja tarbevee boileriga
II korrusele paar radikat juurde ei kannata panna? Mu idee sellest, et nähtud ja uuritud/küsitud ja seletatud, et lisaradika ülesanne põrandas lisaks põrandaküttele on pikast ja kõrgest aknast tuleva külma kompenseerimiseks. Olid põrandasse süvistatud madalad radikad.
NB! Ei võta materiaalset vastutust oma kommentaarides soovitatu kasutamise eest! 
-
rye
- Ehitusspets

- Postitusi: 471
- Liitunud: 15 Juul 2019, 22:54
- On tänanud: 15 korda
- On tänatud: 7 korda
Re: Õ/V pumba ühendused akupaagi ja tarbevee boileriga
ei kannata radikaid juurde panna
PS! väldime foorumis vastuseid stiilis "telli projekt", "mine esindusse", "kutsu professionaal" vms.
-
Cass
- Korralik postitaja

- Postitusi: 101
- Liitunud: 23 Okt 2007, 09:58
- Asukoht: Tallinn
- On tänanud: 3 korda
- On tänatud: 6 korda
Re: Õ/V pumba ühendused akupaagi ja tarbevee boileriga
Lisan juurde, et vahetasin 3T klapi pööratava vastu ja mure lahenes. Tarbevesi hoiab kenasti sooja. Kindlama vastuse saab küll jahedamate ilmadega aga seni on graafikud paremad olnud.ping kirjutas: 26 Jaan 2025, 20:07Nende klappide tüüpviga vananedes, et ei saa enam ümber lülituda ja ajami plast ülekanne puruneb.Cass kirjutas: 26 Jaan 2025, 19:23 Võibolla nimetatakse seda ventiili kuidagi teisiti aga see ei ole pööratav 3T vaid klapiga vms.
https://esbe.eu/group/products/diverting-valves/vzc-vzd ....
Tuleb vahetada klapp ja ajam.
Mutrid ja sõrmused jäta samad ning tõmba torud eemale.
![]()
-
rye
- Ehitusspets

- Postitusi: 471
- Liitunud: 15 Juul 2019, 22:54
- On tänanud: 15 korda
- On tänatud: 7 korda
Re: Õ/V pumba ühendused akupaagi ja tarbevee boileriga
Tekkis küsimus, et kas võiks äkki ülal joonisel tarbevee boileris teise spiraali ära jäta ja tarbevee otse läbi radikate lasta?
Radikad panen nagunii uued ja soojusvahetus paraneks.
Kas on mingi põhjus miks ei võiks läbi uute radikate käinud vette juua?
Radikad panen nagunii uued ja soojusvahetus paraneks.
Kas on mingi põhjus miks ei võiks läbi uute radikate käinud vette juua?
PS! väldime foorumis vastuseid stiilis "telli projekt", "mine esindusse", "kutsu professionaal" vms.
Hüppa
- Ehitusfoorum
- ↳ Üldfoorum
- ↳ Ahjud, kaminad, korstnad
- ↳ Aiad, väravad
- ↳ Aknad, uksed
- ↳ Betoon ja betoonitooted
- ↳ Ehitustööriistad
- ↳ Ehitusmaterjalid
- ↳ Elekter, elektriseadmed
- ↳ Energiamärgis ja energiaaudit
- ↳ Fassaadide arutelu
- ↳ Katused, laed
- ↳ Hüdroisolatsioon
- ↳ Kaevud
- ↳ Konstruktsioonid, seinad
- ↳ Küttesüsteemid
- ↳ Palkmajad
- ↳ Projekteerimine, projektid
- ↳ Põrandad
- ↳ Puit ja puidutooted
- ↳ Restaureerimine
- ↳ Seadusandlus
- ↳ Soojustus, isolatsioon
- ↳ Saunad, dussiruumid, vannitoad, sanitaartehnika
- ↳ Siseviimistlus, värvid, plaatimistööd
- ↳ Ventilatsioon
- ↳ Veevarustus, kanalisatsioon, käimlad
- ↳ Vundamendid
- ↳ Naljanurk
- ↳ Arhiiv
- Ärifoorumid
- ↳ Otsin tööd
- ↳ Pakun tööd
- ↳ Ostu-müügifoorum
- ↳ Annan/võtan rendile
- ↳ Hinnapäring