Asendan ülemisel korrusel radiaatorid põrandaküttega kuna gaasikatel sai asendatud vesi-õhksoojuspumbaga ja tahtsin targematelt nõu küsida, kuidas põrandaküte planeerida. Katel on Daikin Altherma 3 6-8kw.
Variante, mida kaalun, on 2. Esitan mõlemad joonisel, et oleks lihtsam aru saada ja sooviks teilt küsida, kas kahel variandil on oluline vahe kütte efektiivsuse suhtes (st palju energiat kulub toa soojendamiseks). Saan aru, et variandi 2 puhul on ehk kulu veidi suurem, aga kui see pole oluline, siis eelistan seda varianti.
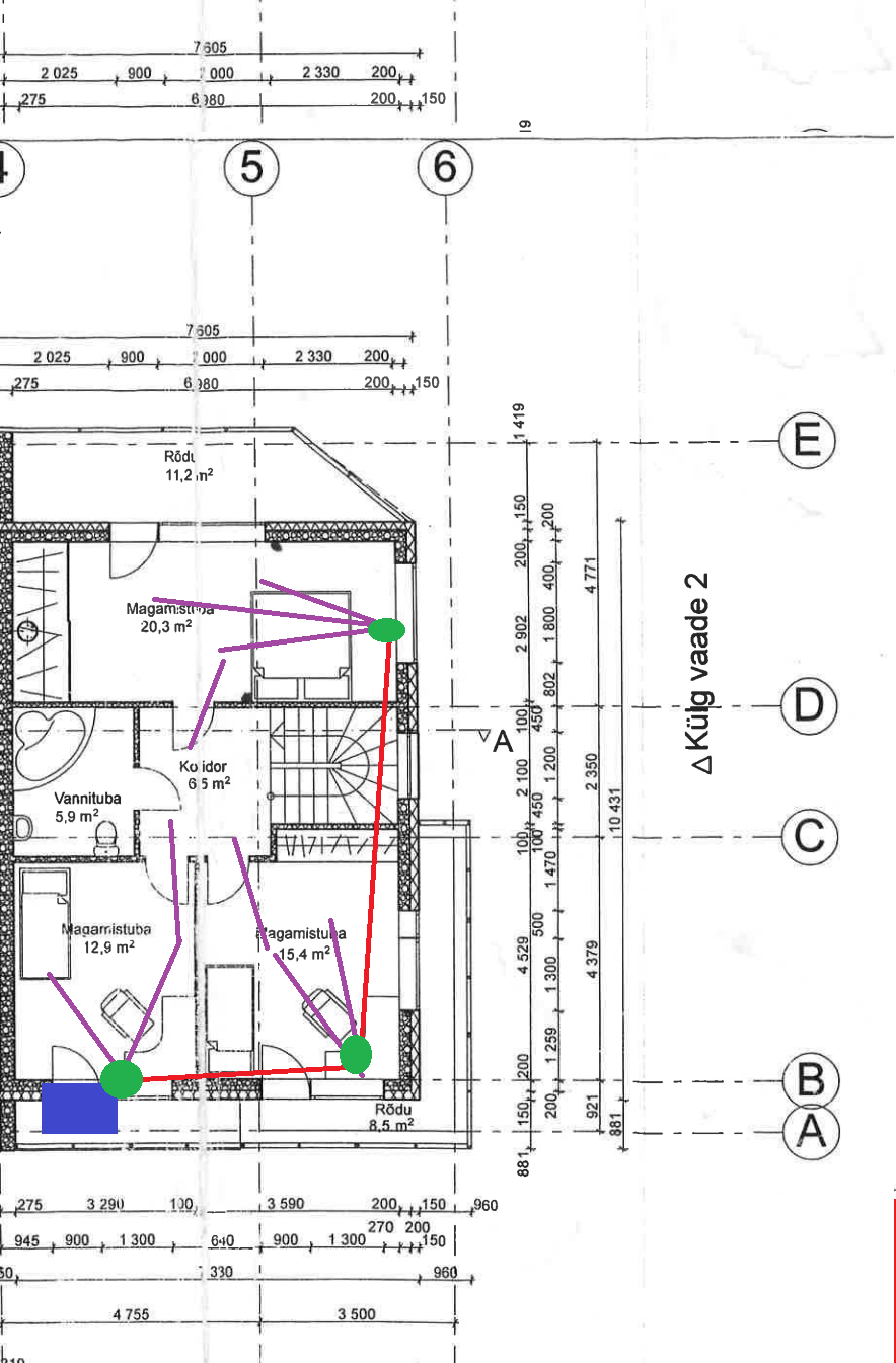
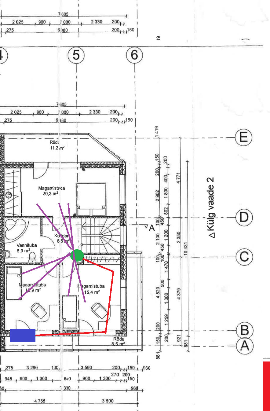
Esmalt praegune olukord. Sinine ruut on katel, punased ringid on kohad, kus radikate ühendused on.
Variant 1: sulgen kõik radikate punktid ja jaotan pea küttetoru keskel erinevate tubade vahel laiali 7-ks liiniks ühe 7-se kollektoriga (roheline ring)
Variant 2: jätan tänase radikate torud paika ja jaotan teatud punktide juures eraldi toapõhiste kollektoritega laiali
Tänan!
Põrandakütte kollektor kas keskel või radiaatorikohtade asemel
küttesüsteemid, millega ja kuidas kütta
-
Prill
- Ehitusveteran

- Postitusi: 1711
- Liitunud: 27 Veebr 2017, 10:36
- On tänanud: 7 korda
- On tänatud: 94 korda
Re: Põrandakütte kollektor kas keskel või radiaatorikohtade asemel
Lugemata postitus Postitas Prill »
Variantide osas ei oska parimat arvata, aga..
väidaks, et antud arutluskäik ei päde, energiakulu toa soojendamiseks ei sõltu niivõrd küttekehade paigutusest ruumis või põrandas, vaid rohkem ruumi soojakaost. Ruumi kütmine ei ole olemuselt muud kui läbi tarindite, piirete, avade, jm lekkinud-lahkunud soojuse kompenseerimine.castro14 kirjutas: 21 Sept 2023, 22:36.., kas kahel variandil on oluline vahe kütte efektiivsuse suhtes (st palju energiat kulub toa soojendamiseks). Saan aru, et variandi 2 puhul on ehk kulu veidi suurem, aga kui see pole oluline, siis eelistan seda varianti.
- nexus4
- Korralik postitaja

- Postitusi: 198
- Liitunud: 06 Jaan 2023, 11:23
- On tänanud: 3 korda
- On tänatud: 15 korda
Re: Põrandakütte kollektor kas keskel või radiaatorikohtade asemel
Lugemata postitus Postitas nexus4 »
+1Prill kirjutas: 22 Sept 2023, 08:22 Variantide osas ei oska parimat arvata, aga..väidaks, et antud arutluskäik ei päde, energiakulu toa soojendamiseks ei sõltu niivõrd küttekehade paigutusest ruumis või põrandas, vaid rohkem ruumi soojakaost. Ruumi kütmine ei ole olemuselt muud kui läbi tarindite, piirete, avade, jm lekkinud-lahkunud soojuse kompenseerimine.castro14 kirjutas: 21 Sept 2023, 22:36.., kas kahel variandil on oluline vahe kütte efektiivsuse suhtes (st palju energiat kulub toa soojendamiseks). Saan aru, et variandi 2 puhul on ehk kulu veidi suurem, aga kui see pole oluline, siis eelistan seda varianti.
Kuivõrd, esimese variandi puhul võib juhtuda, et saab ehku peale talupoja loogikaga hakkama - siis teise puhul ma ilma hüdraulika arvutusteta ei julgeks endale teha.
Re: Põrandakütte kollektor kas keskel või radiaatorikohtade asemel
Lugemata postitus Postitas xil »
Teise variandi puhul on vajalik 1 kapp ja üks elektriühendus, esimese puhul hulk pisikesi kapikesi, igasse jookseb torupaar ja elektrikaabel .. või on plaanis täiturid nähtavale jätta? Arvutada pole kummagi variandi puhul midagi vaja.
Re: Põrandakütte kollektor kas keskel või radiaatorikohtade asemel
Lugemata postitus Postitas castro14 »
Tänan mõtete eest! Läksin ühe kollektori peale ja jaotan mööda tube sealt laiali.
Hüppa
- Ehitusfoorum
- ↳ Üldfoorum
- ↳ Ahjud, kaminad, korstnad
- ↳ Aiad, väravad
- ↳ Aknad, uksed
- ↳ Betoon ja betoonitooted
- ↳ Ehitustööriistad
- ↳ Ehitusmaterjalid
- ↳ Elekter, elektriseadmed
- ↳ Energiamärgis ja energiaaudit
- ↳ Fassaadide arutelu
- ↳ Katused, laed
- ↳ Hüdroisolatsioon
- ↳ Kaevud
- ↳ Konstruktsioonid, seinad
- ↳ Küttesüsteemid
- ↳ Palkmajad
- ↳ Projekteerimine, projektid
- ↳ Põrandad
- ↳ Puit ja puidutooted
- ↳ Restaureerimine
- ↳ Seadusandlus
- ↳ Soojustus, isolatsioon
- ↳ Saunad, dussiruumid, vannitoad, sanitaartehnika
- ↳ Siseviimistlus, värvid, plaatimistööd
- ↳ Ventilatsioon
- ↳ Veevarustus, kanalisatsioon, käimlad
- ↳ Vundamendid
- ↳ Naljanurk
- ↳ Arhiiv
- Ärifoorumid
- ↳ Otsin tööd
- ↳ Pakun tööd
- ↳ Ostu-müügifoorum
- ↳ Annan/võtan rendile
- ↳ Hinnapäring

