Suur vundament ja väikene maja

siia käivad üldised teemad, mis teistesse foorumitesse ei sobi
Tanelvv
Uus kasutaja
Uus kasutaja
Postitusi: 11
Liitunud: 08 Veebr 2020, 09:05

Suur vundament ja väikene maja

Lugemata postitus Postitas Tanelvv »

Kuidas lahendada olukord, kus 30 aastat tagasi on rajatud täiskeldriga vundament, perimeeter on valatud (sees suured kivid ja armatuur) seespool on kruus ja osaliselt ka vaheseinte taldmikud

Vundament asub künka otsas ja on maapinnast väljas 30 cm (taldmikust on kõrgus 2 m - 2,7m )
Vihamsemal perioodil on peale sadu vesi üsna koheselt kadunud. müürid silmaga vaadates vajunud 7 pragunenud pole

Kuna endal nii suurt maja (kogu perimmeeter umb 200M2 (10x21m) kindlasti tarvis pole.

Kui nüüd sinna peale paneelid panna ja maja kuni 60m2, siis kuidas seadus seda tõlgendab? kas maaalusetele ehitistele on ka piirangud?

head korralikku keldrit esimese hooga ei tahaks raha eest ostetava täitematerjaliga täitma ka hakata.
Tanelvv
Uus kasutaja
Uus kasutaja
Postitusi: 11
Liitunud: 08 Veebr 2020, 09:05

Re: Suur vundament ja väikene maja

Lugemata postitus Postitas Tanelvv »

Ma arvan, et kui isegi kunagi midagi oli, siis on see aegunud - 20 aastat pole kindlasti selle kallale enam keegi midagi teinud. Küll on aga projekt (originaali kujul olemas). Seletuskirjas kirjas Aiamaja kasulik pind 43,2 m2

Seega eeldan, et ühtegi luba pole.
Tanelvv
Uus kasutaja
Uus kasutaja
Postitusi: 11
Liitunud: 08 Veebr 2020, 09:05

Re: Suur vundament ja väikene maja

Lugemata postitus Postitas Tanelvv »

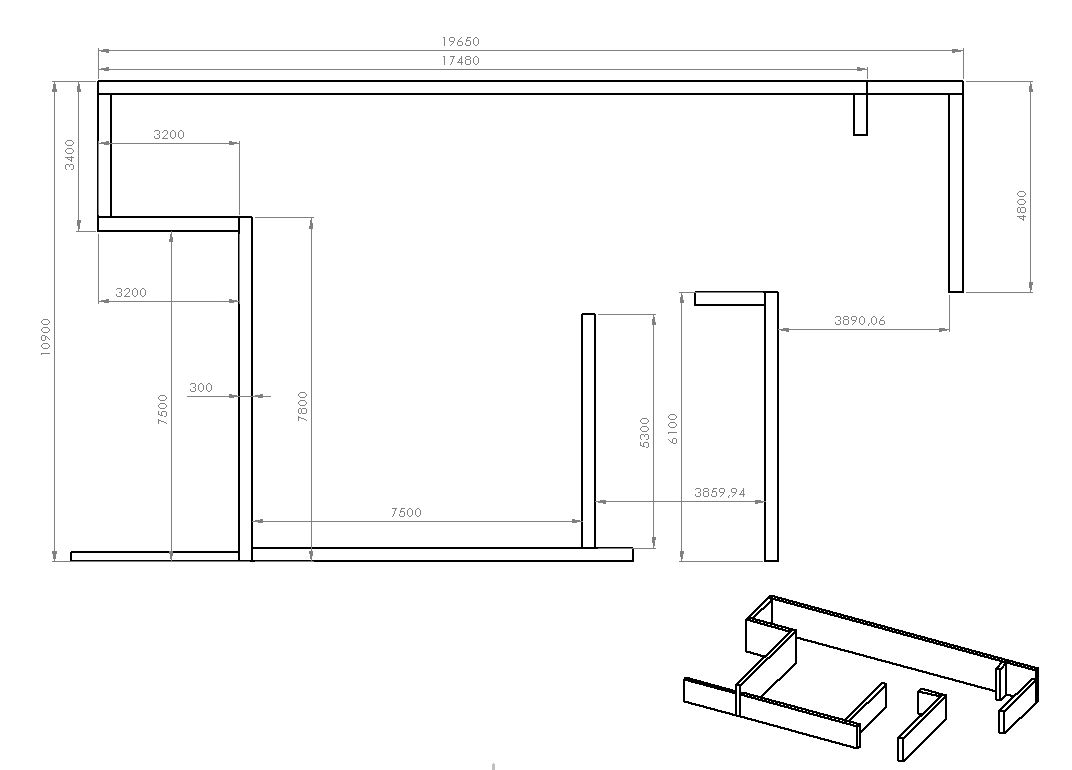
Kuna tegu peaks olema mingitsorti tüüplahendusega? peal on kirjas lihtsalt "projekt 6"

panen manusesse ka kaks pilti - üks olukorrast ja teine möödulindiga üles joonestatud möödud.

Ehk keegi tunneb või aimab ära, milline võiks olla sellisel vundamedil olev maja, siis oleks väga õnnelik mõne viite eest
Manused
koost 2.jpg
1 koost.JPG
xxx111
külaline

Re: Suur vundament ja väikene maja

Lugemata postitus Postitas xxx111 »

Aga miks on vana ehitusluba nii oluline? Saab ju uue taotluse sisse anda?
Ilmselgelt on tegemist pehmelt öeldes raiskamisega hakates sellele vundamendile peale "aretama"...
suvaline
Ehitusveteran
Ehitusveteran
Postitusi: 1024
Liitunud: 20 Jaan 2019, 18:17
On tänanud: 13 korda
On tänatud: 29 korda

Re: Suur vundament ja väikene maja

Lugemata postitus Postitas suvaline »

xxx111 kirjutas: 04 Aug 2020, 18:05 Aga miks on vana ehitusluba nii oluline? Saab ju uue taotluse sisse anda?
Ilmselgelt on tegemist pehmelt öeldes raiskamisega hakates sellele vundamendile peale "aretama"...
Kuidas siiski ehitada erinevates keeluvööndites? Tundub, et Te ei peagi teadma ...
xxx111
külaline

Re: Suur vundament ja väikene maja

Lugemata postitus Postitas xxx111 »

Kuidas siiski ehitada erinevates keeluvööndites? Tundub, et Te ei peagi teadma ..
Ma ei tea kas midagi jäi kahe silma vahele kuid ma ei näe ühtegi viidet keeluvööndile...
Viimati muutis xxx111, 04 Aug 2020, 20:19, muudetud 1 kord kokku.
T25
Ehitusveteran
Ehitusveteran
Postitusi: 1288
Liitunud: 14 Mai 2007, 13:15
On tänanud: 5 korda
On tänatud: 16 korda

Re: Suur vundament ja väikene maja

Lugemata postitus Postitas T25 »

Tuleb nõustuda xxx111-ga, et seda vundamenti pole mõtet edasi putitada.
Tanelvv
Uus kasutaja
Uus kasutaja
Postitusi: 11
Liitunud: 08 Veebr 2020, 09:05

Re: Suur vundament ja väikene maja

Lugemata postitus Postitas Tanelvv »

Kuna lähima 5-10 aasta jooksul pole plaani sinna midagi suuremahulist ehitama hakata (praeguse seisu järgi)

Siis ongi kahepidiseid arvamusi.
Miinusteks on see, et vundament on osaliselt erineva kõrgusega ja soojustamata.
Plussideks on see, et see on juba olemas, ja on valdavalt enamuse aja kuiv

Kui ehitama hakkaks, siis sinna keskmise ruudu peale (esialgne hinnang oli (15 000 €) valada uus võõ ja paneelid peale. - sinna, kas siis juba moodulmaja või elementmaja peale

Täiskelder, koos suure ukse ja ligipääsuga mulle iseeensest meeldiks, jääks ära garaazi ja töökoja vajadus hoovi peal.

Seni, aga kas konserveeriks kuidagi, kasutaks seinu ära varjualuse osalise konstruktsioonina.

Kas oleks mõistlik kuidagi väikesed katuseharjade moodi asjad vundamendile peale teha?

Seni kuni veel päris kindel pole, tasub elada selle natukene silma riivava pooliku vundamendiga ja kasutada selle olemasolu ära - kinni jõuan seda ajama hakata ka ennem ehitust?
xxx111
külaline

Re: Suur vundament ja väikene maja

Lugemata postitus Postitas xxx111 »

Infot pole krundi suuruse / vaba pinna jms kohta, kuid: miks peaks ehitama olemasoleva peale?

Kui Sa loodad hinnavõitu paneelidega katmisel ja sinna peale ehitamisel siis mina kahtlen sügavalt
Lisaks piirab olemasolev vundament planeeringut
Ning lisaks oleks tehnilised lahendused mõttetult keerukamad / kallimad
Digipealkiri
Uus kasutaja
Uus kasutaja
Postitusi: 3
Liitunud: 05 Aug 2020, 18:19

Re: Suur vundament ja väikene maja

Lugemata postitus Postitas Digipealkiri »

Vaatake igaks juhuks ehitusregistrist järgi, vanade asjade puhul võib igasuguseid üllatusi ette tulla...
Mu nö peamaja vundament on ehitusregistri järgi abihoone, millel isegi kasutusluba olemas :)
Mõtlen et peaks sinna saun/kuuri ehitama, sest registri järgi see oleks ok :lol:
Tanelvv kirjutas: 04 Aug 2020, 16:18 Seega eeldan, et ühtegi luba pole.
Vasta