Lintvundament Ecoterm 375 majale
Lintvundament Ecoterm 375 majale
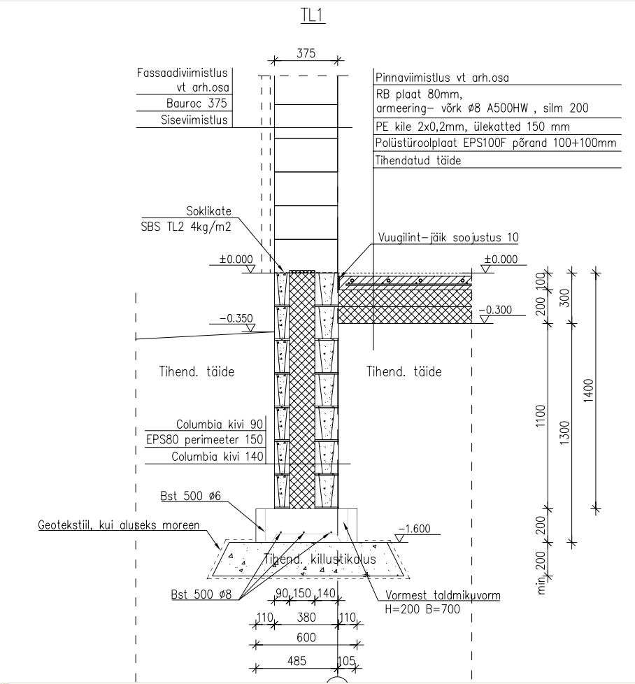
Lugemata postitus Postitas aikapoiss »
PS. Vormesti taldmiku laiuseks on kirjeldatud B=700mm, aga see on trükiviga ja õige on 600mm.
Kuidas nn. maast algava akna alumine sõlm lahendada? Hetkel on puidust prussi peale toetades.
Ootaks kommentaare ja ettepanekuid, mida saaks paremini teha.
-
- külaline
Re: Lintvundament Ecoterm 375 majale
Lugemata postitus Postitas Külaline »
Joonise järgselt 1200 talla alla on külmumis tsoonis, ja järelikult tuleks riskide maandamiseks paigaldada horisontaalne eps ümber perimeetri.aikapoiss kirjutas: 17 Mär 2018, 03:16 Sooviks asjatundjate hinnanguid ühekordsele Aeroc Ecoterm 375 maja vundamendile. Kas oleks vaja horisontaalset perimeetri soojustust ja mis mõõtudega? Kas oleks vaja vertikaalset hürdoisolatsiooni?
Vertikaalsel vund. soojustusel ei ole mingit vajadust.
Aknaid prussi peale kivimajas mujal skandinaavias ei toetata, selleks on vastavad metal/ tarvikud millega tuuakse avatäide selleks ette nähtud positsioonile näit. soojustuse sisse.
-
- külaline
Re: Lintvundament Ecoterm 375 majale
Lugemata postitus Postitas Külaline »
Elumaja akende alla on normaalne 70 ... 90 cm põrandast, ei pea olema nagu paviljon.
-
- külaline
-
- külaline
Re: Lintvundament Ecoterm 375 majale
Lugemata postitus Postitas külaline 5 »
See vundament on ilmselgelt üledimensioneeritud, nagu enamikel juhtudel. Arhitektil oli vist kohe käepärast võtta 4 korruselise kortermaja vundamenti joonis ja istutas ühekordse maja sellele selga.
Kuna jah, taldmik külmumistsoonis, siis horisontaalsoojustus peerimeetri ulatuses vajalik. (600mm laiune 50 mm EPS perim.Norrakate poolt välja arvestatud ja toimib nende kliimas.)Materjlimüüjad tahavad alati sulle rohkem müüa.
Re: Lintvundament Ecoterm 375 majale
Lugemata postitus Postitas aikapoiss »
Mulle tundub vundamendi seinalahendus päris töömahukas, kas oleks alternatiive?
-
- külaline
Re: Lintvundament Ecoterm 375 majale
Lugemata postitus Postitas Külaline »
Sisuliselt kannab kogu maja 140 vaheseina ploki peal?
Loogiline oleks 240 columbia 50 eps, 90 columbia.
50 eps on piisav külmasilla läbilõikamiseks, 150 oleks üledimenseeritud.
-
- külaline
Re: Lintvundament Ecoterm 375 majale
Lugemata postitus Postitas onuremus »

-
- külaline
Re: Lintvundament Ecoterm 375 majale
Lugemata postitus Postitas Külaline »
Re: Lintvundament Ecoterm 375 majale
Lugemata postitus Postitas aikapoiss »
Mis oleks 80mm vs 100mm poolt- ja vastuargumendid?
-
- külaline
Re: Lintvundament Ecoterm 375 majale
Lugemata postitus Postitas Külaline »
Millisest õppeasutusest on sinu tõsiseltvõetavad tarkused pärit?
-
- külaline
Re: Lintvundament Ecoterm 375 majale
Lugemata postitus Postitas Külaline »
80mm on odavam.aikapoiss kirjutas: 31 Mär 2018, 23:51 Veel küsiks, kas 80mm põrandaplaadiks on ok või peaks ikka panema 100mm? Kütteprojekteerija soovitas 100mm. Tuleb maasoojuspump ja põrandaküte.
Mis oleks 80mm vs 100mm poolt- ja vastuargumendid?
100mm on parem. Muidugi juhul kui odavus pole peaprioriteet.
-
- külaline
Re: Lintvundament Ecoterm 375 majale
Lugemata postitus Postitas 100-80 »
100mm on parem? millest, kuidas see väljendub?
Eramajale 80mm on levinud põranda paksus, 100mm kuulub tööstushoonete ja kaubanduskeskuste valdkonda.
Seda enam, et projekteerija soovitas, siis ei ole enam vajadus ammutada kuskilt foorumist lisateavet mis tihti osutub vastutustundetuks juraks.
80mm sisse mahub ilusti armeering ja kommunikatsioonid. Samas 150 ruudusel majal tuleb erinevus 3kanti betooni.
Vaba valik.
-
- külaline
Re: Lintvundament Ecoterm 375 majale
Lugemata postitus Postitas reinywater »
No ei ole heatahtlik nõu, pigem pahatahtlik.
-
- külaline
Re: Lintvundament Ecoterm 375 majale
Lugemata postitus Postitas reinywater »
Kogu postitus on teemast välja, see, et keegi kunn24 avastas kuskil perifeerias ilma vundamendita elamu, see ei ole norm! See ei tähenda, et nii saama ja nii peab, seda lollust ei propageerita!kunn24 kirjutas: 28 Mär 2018, 22:58 Üldiselt viisakas inimene kirjutaks kasvõi paari sõnaga, miks TEMA arvates on jama. Hetkel ma su "argumentatsiooniga" ei arvesta. Saan rahulikult magada. Majad miskipärast veel püsivad.
Ei saa aru nendest niisama heietajatest, neil jätkub mula igas teemas, iga päev ja igal ajal, tohutus mahus.
Kui teemaalgatajale on projekt ette antud, raha selle eest makstud, siis ehita, sest foorum on viimane koht kust nõu saada.
-
- külaline
Re: Lintvundament Ecoterm 375 majale
Lugemata postitus Postitas reinywater »
Sulle sobivad ainult meelepärased küsimused, mida hea kohandada oma Nõmme vundamendi kogemusega?kunn24 kirjutas: 01 Apr 2018, 16:38 Inimene küsis, sai vastatud. Kas sobilikud on vaid sulle meelepärased vastused? Argumenteeri arvude, valemite, näidete ja PN-i keeles, mis on valesti.
Tavainimesel ei ole sinu toodud linkide ja projekteerimisnormidega midagi teha, ei oska lihtsalt, kui oskaks siis ei küsiks foorumist totakaid küsimusi.
Kumab läbi, et mõistad miks ei sobi üks vund.lahendus igasse Eesti nurka, aga miks on vaja siis heietada mingist Nõmme kogemusest, kui samas on teadmata teemaalgataja asukoht? Selge infomüra, mis ei aita kedagi.
Või üritad projekteerijast targem olla?
Ausalt ei saa aru mida sa üritad ja argumenteerid, inimesel on kalli raha eest soetatud projekt, ehitagu, sest igasugune amatöörlik infomüra süvendab otsustusvõimetust.
Ei ole vaja meeletult maailma parandada, vahel tuleb lihtsalt eemalt jälgida seda kaost.
-
- külaline
Re: Lintvundament Ecoterm 375 majale
Lugemata postitus Postitas Külaline »
Ei saa aru? Kas Nõmmel siis ei ole keldreid, või on kõik keldriga? Või kui ilma keldrita, siis maapeale ehitatud?kunn24 kirjutas: 01 Apr 2018, 16:38 Kui Nõmmel leiad ilma keldrita elamu, siis tõenäoliselt on ta kohe üli-madalvundamendiga.
Keegi võiks lahti seletada sellise vundamendi liigi nagu "üli-madalvundament".
-
- külaline
Re: Lintvundament Ecoterm 375 majale
Lugemata postitus Postitas Külaline »
Pealinlase jaoks ikka täitsa karu pees. https://www.google.ee/maps/place/N%C3%B ... 4513?hl=et
Tahaks ka teada, mis on üli-madal vundament. Millised on levinumad mõõdud? Kas nagu lapiti betoonist telefonipost?kunn24 kirjutas: 01 Apr 2018, 16:38 Kui Nõmmel leiad ilma keldrita elamu, siis tõenäoliselt on ta kohe üli-madalvundamendiga.
Urmas
-
- külaline
Re: Lintvundament Ecoterm 375 majale
Lugemata postitus Postitas onuremus »

-
- külaline
Re: Lintvundament Ecoterm 375 majale
Lugemata postitus Postitas reinywater »
Lugesin kuni sokli soojustuseni, siis ajas muigama, edasi sain teada, et kile on hüdroisolatsioon ja panin ristiga kinni.
Skandinaavias graniidile ainult madalaid vundamente eramajadele tehaksegi, meil siin konnatiigis erineb pinnas 10 km raadiuses kardinaalselt, savi vaheldub paega, sekka turvast, väheke liiva, laias laastus soo. Enamus inimesi ei saa rehvirõhu mõõtmisegagi hakkama, nüüd keegi tark foorumis soovitab projekteerijad kuu taha saata ja ise pinnase kandevõimet arvutama asuda, lingid puha olemas jne.
Kõige jaburam teema juures on see, et hädalisel on projekt olemas! Aga ei, meil on vaja oma tarkusel särada ja soovitada midagi veel targemat, enda arust.
-
- külaline
Re: Lintvundament Ecoterm 375 majale
Lugemata postitus Postitas reinywater »
Oma konto alt on siit foorumist ennegi igasugu rämpsu postitatud, "ega siis konto lolli targemaks tee".kunn24 kirjutas: 01 Apr 2018, 20:22 Milline erinevus on professionaalsel ja amatöörlikul infomüral? Kes te ise olete, kulla oponendid? Kas amatöörid või professionaalid? Palun tutvustused. Hetkel olete nii mitmedki mingid kyylalised. Ma vähemalt julgesin omale konto teha. Tehke järgi ja pange saavutused juurde.
Siiamaani on laual sinu ainukesed saavutused: Nõmme vundamendi lahtikaevamine.
Projekteerijate mahategemine:
Haltuura mentaliteedi soovitamine:kunn24 kirjutas: 27 Mär 2018, 22:48 Tihti arhitektid joonistavad vundamendi lambist, nad pole insenerid.
Jpm. segast seosetut lalinat.
-
- külaline
Re: Lintvundament Ecoterm 375 majale
Lugemata postitus Postitas reinywater »
So what, sinu respektist! Virkus on teoreetik, keda sinusugused nn.praktikud pimesi usuvad!kunn24 kirjutas: 01 Apr 2018, 21:13 Asjalikud argumendid. Kusjuures keegi kyylalistest suutis ka profesionaali mutta tampida. Ei ole selliste kisakõride suhtes respekti.
Vaata Virkuse joonist: madalvundamendi läbilõige, sisuliselt mõttetu sokli soojustus tõuseb kõrgemale kui esimese korruse põrand. Täiesti perfomens lähenemine meie tänapäevases kultuuriruumis, mis sa arvad kuidas lahendatakse välisuste kossid?
Teine jaburus mis eirab igasugust ehitusfüüsikat on kile nimetamine hüdroks.
Loe tähelepanelikult ja mõtle(kui oskad), enne kui barrikaadidele viskud.
-
- külaline
Re: Lintvundament Ecoterm 375 majale
Lugemata postitus Postitas reinywater »
See, et sa kile geomembraaniks tõlgendad jääb sinu soov unelmaks, tavainimene loeb sealt välja KILE, mis sujuvalt läheb üle hüdroisolatsiooniks?kunn24 kirjutas: 01 Apr 2018, 21:35 PVC geomembraan on sama PVC kile, ainult paksem ja Uv kindlaks modifitseeritud.
Ja see samune üpper-supper membraan, UV-kindel (pimedas põrandas), ei kvalifitseeru hüdrona.
See teema on siin juba 10 aastat tagasi selgeks vaieldud ja tõestatud, nüüd ilmus järjekordne lumehelbeke kes alustab otsast.

-
- külaline
Re: Lintvundament Ecoterm 375 majale
Lugemata postitus Postitas reinywater »
No ei saa kohe pidama?
Eestis võid kõlava nime taha mõelda ja voilaa, müüd pärismaalastele hüdroisolatsiooni pähe. Saksas naerdakse selline hüdro eps-i peal välja.
Tahaks näha eramu ehitajat, kes endale eps-i peale betooni alla tööstusliku geomembraani kavatseb paigaldada, m2 hind on kallim kui 200 eps-il.
Uskumatu, mingit olematu kallist hüdrot, reklaamib mees kes ei viitsinud oma maja vundamendile horisontaalset eps-i paigaldada?
-
- külaline
Re: Lintvundament Ecoterm 375 majale
Lugemata postitus Postitas reinywater »
Ma ei saa midagi aru? mis lapsed, mis kasvuhoone, mis seal sooja hoiab?kunn24 kirjutas: 01 Apr 2018, 22:12 Ju siis 10 a-ga on asi nii palju edasi arenenud, et lollus selles vallas on taandunud. Kui paned kasvuhoonele kile peale ja sealt läbi ei saja, mida see kile siis teeb? Lapsed laulavad nüüd kooris: Kile kaitseb vihma eest. Lal-lal- laa. Tänu kilele märjaks me ei saa. Lal-lal-laa. Kile hoiab sooja ka. Lal-lal-laa.
Deliiriumis oled ?
- Ehitusfoorum
- ↳ Üldfoorum
- ↳ Ahjud, kaminad, korstnad
- ↳ Aiad, väravad
- ↳ Aknad, uksed
- ↳ Betoon ja betoonitooted
- ↳ Ehitustööriistad
- ↳ Ehitusmaterjalid
- ↳ Elekter, elektriseadmed
- ↳ Energiamärgis ja energiaaudit
- ↳ Fassaadide arutelu
- ↳ Katused, laed
- ↳ Hüdroisolatsioon
- ↳ Kaevud
- ↳ Konstruktsioonid, seinad
- ↳ Küttesüsteemid
- ↳ Palkmajad
- ↳ Projekteerimine, projektid
- ↳ Põrandad
- ↳ Puit ja puidutooted
- ↳ Restaureerimine
- ↳ Seadusandlus
- ↳ Soojustus, isolatsioon
- ↳ Saunad, dussiruumid, vannitoad, sanitaartehnika
- ↳ Siseviimistlus, värvid, plaatimistööd
- ↳ Ventilatsioon
- ↳ Veevarustus, kanalisatsioon, käimlad
- ↳ Vundamendid
- ↳ Naljanurk
- ↳ Arhiiv
- Ärifoorumid
- ↳ Otsin tööd
- ↳ Pakun tööd
- ↳ Ostu-müügifoorum
- ↳ Annan/võtan rendile
- ↳ Hinnapäring