Projekti alusel automaatkaitsmete valimine
-
ÜritajaRene
- Uus kasutaja

- Postitusi: 1
- Liitunud: 13 Veebr 2025, 05:31
Projekti alusel automaatkaitsmete valimine
Lugemata postitus Postitas ÜritajaRene »
On aeg vaikselt sealmaal kus peaks ära ostma automaat kaitselülitid. Tahan ise tuttavatelt hinnapakkumised võtta kuna tundub, et elektrikud kes mul oleks muidu teinud küsivad liialt. Ja mingil põhjusel ei jaga ka nö ostukorvi sisu.
Sellest sõltuvalt tekkis mõni küsimus.
Saan aru millised tava kaitselülitid olema peavad (c20,c16,b16,b10).
Probleem tekkis hetkel rikkevoolu ja liigpingepiiriku valimisega. No aru ei saa millised need õiged oleks. Ehk kui oleks mõni pädev isik kes aitaks, oleksin tänulik!
Lisan siia pildi ka projektist
Re: Projekti alusel automaatkaitsmete valimine
Lugemata postitus Postitas systemre »
Lisaks siis kõik montaažimaterjal, mis sinna veel läheb. KE klemmid, N lattid, hülsid, montaažisooned, numbrid jne.
Re: Projekti alusel automaatkaitsmete valimine
Lugemata postitus Postitas SooSass »
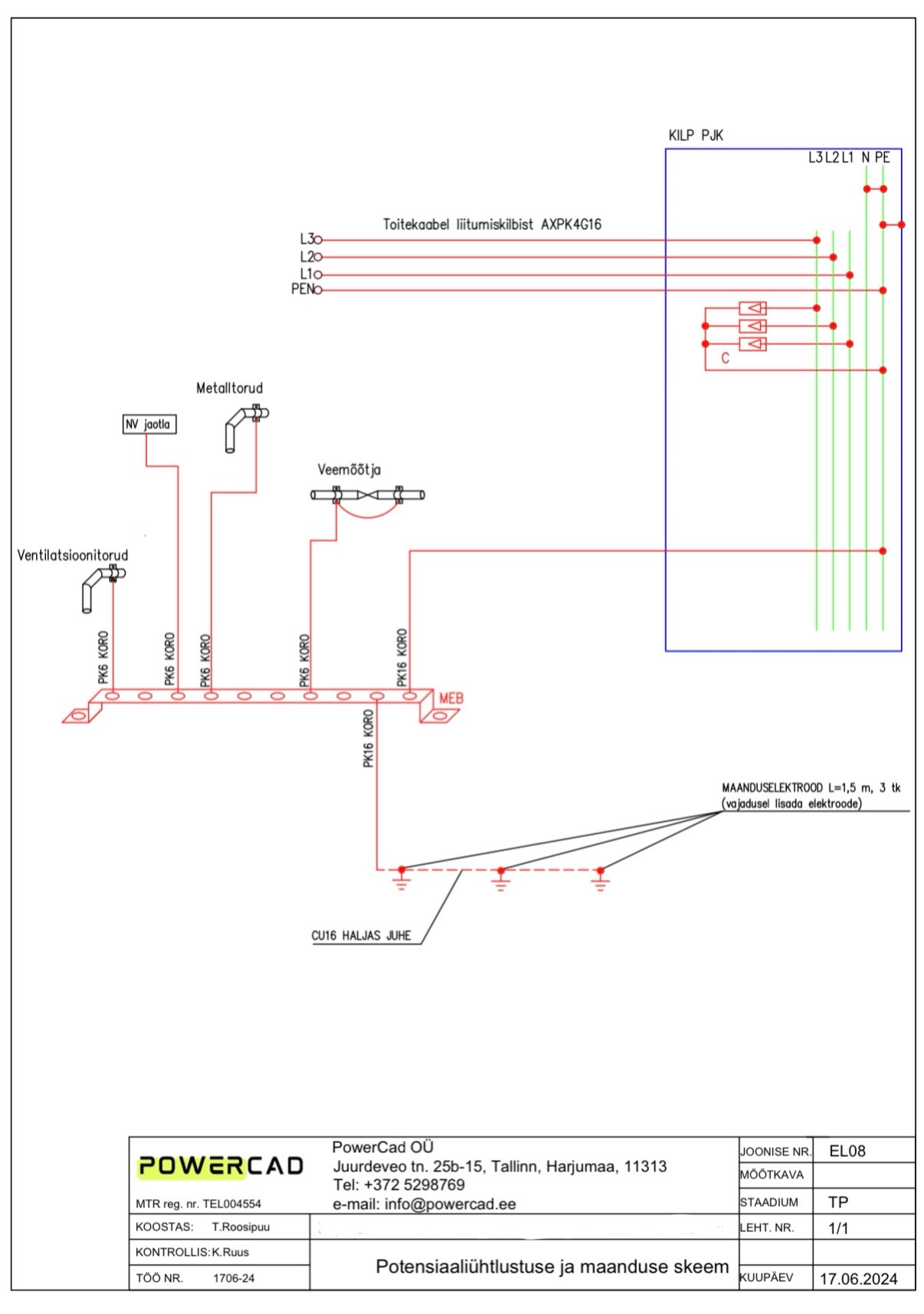
Teine vastuolu: Milline on peakaabli tüüp? Skeemitabelis on märgitud "Toitekaabel liitumiskilbist XPK-HF5G6", aga maanduse skeemil "Toitekaabel liitumiskilbist AXPK4G16".
Edasi on juba üpris tavaline standardne lahendus, millist skeemi näeb iga uusarenduse väikeelamu juures. Iga faasi taga omaette 1-faasiline RVK (L1 faasi taga 2tk) ja selle järel grupp tarbijaliine. Pliidid, kerised, külmikud, kütteseadmed, boilerid nagu ikka ilma RVK'ta. Pesad ja võimsamad tarbijad 2,5mm2 kaablitega ja 16A kaitselülititega. Valgustused, sideseadmed, põrandaküttekollektorid 1,5mm2 ja 10A. Mis siin üllatab, on lausaliselt valdav B-karakteristikuga kaitselülitite rohkus. Enamasti on projektides vähemalt köögi pistikupesadel C-karakteristikuga kaitselülitid. Samas külmik B16 on jällegi ülepingutatud. Isegi 2-3 külmikut korraga ei vaja nii suurt voolu. Selliseid väikesi nüansse on veel.
Liigpingepiirikuks on määratud 3-pooluseline Tüüp 2. Põhimõtteliselt õige valik, juhul kui maja toide on maakaabliga ja majal puudub piksekaitse. Need on tunduvalt odavamad kui Tüüp 1+2 liigpingepiirikud. Aga siiski ca 80 eurot maksab ka selline Tüüp 2, kui tavalisest elektripoest osta.
Rikkevoolukaitsed on kõik 1-faasilised ehk siis 2-pooluselised. Samas pole projektis kusagil märgitud, kas nad peaksid olema AC või A tüüpi. Kuna Eestis on lubatud ka AC, siis ilmselt on neid mõeldud eelkõige, kuigi keegi ei keela ka A tüüpe kasutada (täiuslikumad, aga ka kallimad ja Eestis vähem saadaval). 30mA on tüüpiline rikkevoolu kaitsmisväärtus, 40A on nende maksimaalselt lubatud läbiv summaarne voolutugevus. Nende parameetrite järgi tulebki valida - see 30mA peab olema täpselt selline, aga 40A asemel võib hankida ka 63A versiooni, mis on tugevam ja vastupidavam, aga samas ka kõrgema hinnaga.
Lühisetaluvus on märgitud 6kA, seega võib valida selliste kaitselülitite ja RVK'de hulgast (enamus Eestis müüdavatest ongi sellised), aga samas pole keelatud ka valida 10kA versioone, mis on tugevamad, aga ka ca 25% võrra kallima hinnaga.
Kui sa sooviksid konkreetsemaid tüüpe ja brände, võin ka neid soovitada ja viidata, aga see näeks välja liiga justkui mõne tootja promomine siin. Samas on muidugi rida brände mida võiks vältida, isegi kui nad on ahvatlevalt hästi odavad. Üldiselt öeldes on normaalsed hinnad (koos KM'iga) sellised (6kA lühisetaluvusega toodetel):
- 1pooluseline kaitselüliti 10A,16A - ca 3...4 EUR
- 3pooluseline kaitselüliti 10A,16A - ca 10...12 EUR
- 1pooluseline rikkevoolukaitse 30mA/40A/TüüpAC - ca 25...30 EUR
- 1pooluseline rikkevoolukaitse 30mA/40A/TüüpA - ca 30...40 EUR
- 3pooluseline liigpingepiirik Tüüp 2 - ca 75...85 EUR
Re: Projekti alusel automaatkaitsmete valimine
Lugemata postitus Postitas SooSass »
Liigpingepiiriku oled sa valinud 4-pooluselise Tüüp1+2. Projektis on 3-pooluseline Tüüp2. Seetõttu tohutu hinnaerinevus. 4-pooluselisel pole mingit mõtet, kui N-PE lahutuspunkt on sealsamas 20cm kaugusel.systemre kirjutas: 13 Veebr 2025, 09:41 https://postimg.cc/mtvLhbvx
Lisaks siis kõik montaažimaterjal, mis sinna veel läheb. KE klemmid, N lattid, hülsid, montaažisooned, numbrid jne.
Rikkevoolukaitseid 4-pooluselisi ei ole selle projekti järgi ka üldse vaja, kõik on projektis 2-pooluselised.
Soovitav on võrrelda ka teiste elektripoodide hindasid. Esvika on kõige kõrgema hinnatasemega. Effex on sellest -22% soodsam, ja võib leida veel mõne veelgi soodsama müüja (aga neil viimastel ei pruugi kogu valikut olla pakkuda).
-
Kalvis
- Ehituspenskar

- Postitusi: 11470
- Liitunud: 03 Veebr 2008, 14:02
- On tänanud: 4 korda
- On tänatud: 330 korda
Re: Projekti alusel automaatkaitsmete valimine
Lugemata postitus Postitas Kalvis »
Kõige suurem segadus on liigpinge piirik. soovitan projekteerijalt lasta see täpsustada - nimelt on tüüp 2 terve rida lisaparameetreid mis on olulised ja neid oskab just öelda projekteerija.
Re: Projekti alusel automaatkaitsmete valimine
Lugemata postitus Postitas SooSass »
Jah neid lisaparameetreid on, aga reaalselt müüakse Eesti peamistes elektripoodides ainult 2-3 mudelit 3-pooluselisi Tüüp 2 liigpingepiirikuid. Järelikult piisab sellisest valikust ja kõik paigaldavad just need, peamiselt ongi just need 2 esimest mudelit:Kalvis kirjutas: 13 Veebr 2025, 11:05 Kõige suurem segadus on liigpinge piirik. soovitan projekteerijalt lasta see täpsustada - nimelt on tüüp 2 terve rida lisaparameetreid mis on olulised ja neid oskab just öelda projekteerija.
- Müügilolevateks 3p Tüüp2 mudeliteks on:
EATON SPCT2-280/3 - In=20kA, Imax=40kA(8/20), Uc=280V, Up=1,5kV
OBO V20-3-280 - In=20kA, Imax=40kA(8/20), Uc=280V
NOARK 103353
- Rohkem otsides võib veel leida üksikuid eksemplare:
MERSEN STPT2-40K275V-3P - In=20kA, Imax=40kA(8/20), Uc=275V, Up=1,3kV
MICRO MATIC SEM3-40/440 IT IR MP - In=20kA, Imax=40kA(8/20), Uc=440V, Up=2kV
- Hetkel ei leidnud, aga on neid varem müüdud:
CPT (CIRPROTEC)
PHOENIX CONTACT
ALLEN-BRADLEY
Parameetrid on neil sarnased kõigil ja täiesti piisavad kodukasutaja jaoks. Suurim erinevus on hinnas, neist just OBO on oluliselt kõrgema hinnaga.
Re: Projekti alusel automaatkaitsmete valimine
Lugemata postitus Postitas SooSass »
Sedasi saab teha küll, aga sealt siis saadetud tulemusele peab oskama spetsialisti-kriitiliselt peale vaadata. Nimelt kahjuks on neist poodidest saadud ka diletantlikke valikuid (eriti kui projektis on otsad lahti jäetud, sealhulgas pole tooteid lõplikult ette määratud). Sageli on poe poolsest hooletusest-kiirustamisest tekkinud vead, aga esineb ka valedest arusaamadest, või siis pakutakse põhjendamatult kallima hinnaga toodet/brändi. Õnneks on aga sedalaadi pakkumistes võimalik valed valikud vaidlustada ka tagantjärgi ja poed siis üldiselt võtavad enda poolt eksitavalt antud tooted suurema kobisemiseta ka tagasi (vahetavad välja õigema vastu).Kalvis kirjutas: 13 Veebr 2025, 11:05 Piisav on - võta projekt kaasa või kui ostad meili teel saada müüjale ja las teeb hinnapakkumise. Projektis on küll piisav aga mitte korrektselt kõik.
-
võhik
- Ehitusspets

- Postitusi: 672
- Liitunud: 01 Jaan 2010, 11:54
- On tänanud: 2 korda
- On tänatud: 16 korda
Re: Projekti alusel automaatkaitsmete valimine
Lugemata postitus Postitas võhik »
Oluline on ka mõelda kuidas kilp üles ehitada.
Õuepesa peaks olema 3-faasiline - kus sa muidu elektriautot (ükskord ostad sa selle niikuinii!) laed?
See kilp on ilmselt 5-realine à 12 moodulit reas
Esimesse ritta pealüliti, piirikud ja näiteks 4p RVK (või rvk-ta kaitselülitid)
Teise kolmefaasilised automaadid, (või 4p RVK .. hakkabki juba nappima..)
edasi kolm rida, igaühe ees 1f RVK ja kolmandik 1-faasilisi.
Ongi 5 rida läinud...
Aga kuskil oleks hea omada veel ruumi boileri nullhinnaga lülitamise kontaktori jaoks ... või kerist üle neti lülitada ? ...
1-faasilised on grupeeritud 2p RVK+4 automaati =6 moodulit - seega kaks faasi läheb ühte ritta, igasuguse reservi jaoks jääb siis küll 1 rida vabaks aga siis see ka ainult 1 faasi tarvis?
Kuhu päikesepaneelide inverter ühendatakse ?
Mõne tarbija voolu oleks v-olla huvitav mõõta (autolaadimine? boiler? soojuspump ? )
Parem võtta juba kohe number või kaks suurem kilbikest... neid minumainitud asju ei pea kohe lisama ja sellepärast projekti muutma hakkama, aga pärast seina sisse suuremat kilbikesta uuristama hakata on palju hullem töö.
Ma ei saa aru, mis nende kaitselülitite lahutusvõime üle muretsetakse, kui tihtipeale on probleemiks hoopis see, et lühisvool ei saavuta peakaitsme rakendumisväärtust (antud juhul siis 200 A).
Re: Projekti alusel automaatkaitsmete valimine
Lugemata postitus Postitas SooSass »
1. Liitumiskilbist tuleva kaabli tüüp tuleb üheselt määrata (praegu on eri joonistel erinev).
2. 3tk 1,5-meetrisi maandusvardaid ei ole tavaliselt piisav, pigem vaja 2 varrast ülestikku igasse punkti.
3. Maandusvardaid ühendav juhe ei pea olema tingimata haljasjuhe, võib jätkata sedasama PK16 KORO mis kulgeb varrasteni.
4. Potentsiaaliühtlustuse üksikute objektide harujuhtmed võivad olla ka PK4 KORO
5. Peakaitsme C20A ja teisalt kastikestega tabelis olev 32A vastuolu vajab lahendamist.
6. Liigpingepiiriku ette ei ole vaja omaette 3-pooluselist kaitselülitit lisada, kui peakaitse on alla 160A (mis siinsel juhul on kindlasti täidetud tingimus).
7. Õhk-Vesi soojuspumba välisosa kaitselüliti nimivoolu ja karakteristiku valik oleneb selle välisosa konkreetsest mudelist-tüübist. Mõnel juhul on vajalik C20, mõnel juhul pole aga vaja rohkem kui C13. Siin valitud C16 on selline lambist võetud keskmine "ehk kärab kah". Samas mõni välisosa on hoopiski 3-faasiline, mis pöörab siinse skeemi hoopis peapeale. Ja siis eksisteerivad veel kombimudelid millel kõik toimub ainult välisosas.
8. Nõrkvooluseadmetele pandud B10 on ülepakutud. Piisab ka B6 või C4.
9. Külmiku B16 toidab ära 10 külmikut korraga. Tüüpiline kodukülmik on ca 150W, käivitusvooluga 3xIn. Võib muidugi arvestada 2...3 külmikuga, aga ka siis on rohkem kui piisav B10 või C6, võib olla vähemgi.
10. Valgustuse liinide B10 on siin ilmselt võetud vanade elektrike mõttesalvest, jah just nii pidi see olema hõõgpirnide ajastul. Tänasel LED ajastul on püsivoolud kordades väiksemad, aga käivitusvoolud samas üpris suured. Seetõttu C6 võib-olla parem valik, või siis C4 või D4 või mõnel juhul lausa D2. Oleneb ka kui suurt ruumide/lampide hulka üks liin toidab konkreetsel juhul.
11. Köögi pistikupesadele paneksin kaitselülitid C16. Aga kui peakaitse on C20, siis võivad need muidugi selektiivsuse osas liiga lähedale kokku sattuda.
12. Nõudepesumasinad ja pesumasinad (tänapäeva standard 2000...2200W) käivad edukalt ka C10 kaitselülititega ja 3G1,5 kaabliga. Aga no ega siin määratud B16 neile ka halba ei tee.
13. Pealüliti voolutaluvuse võib soovi korral valida ka järgu võrra suurema, 63A. Mis sest et siin valitud 40A on ka täiesti piisav ja peakaitsme nimivoolust juba suurem. Aga suurematel on suuremad kontaktid ja seetõttu kindlam lülitus/ühendus pikemas ajas.
14. See väikeste "checkbox"idega lehekülg on tobe projektilisand. Pooled asjad üldse märkimata ja märgitud asjad ka formaalsed pisinüansid üldse.
-
Vko
- Ehitusspets

- Postitusi: 531
- Liitunud: 20 Veebr 2024, 13:15
- On tänanud: 3 korda
- On tänatud: 15 korda
Re: Projekti alusel automaatkaitsmete valimine
Lugemata postitus Postitas Vko »
Siis pead absoluutselt KÕIK materjalid ise ära ostma ja "hoidku jumal" kui mingi pisike vidin puudu jääb või vale on. Niikuinii ka maksad töö eest rohkem (ja oluliselt langeb tõenäosus, et mõni teravam pliiats üldse soovib seda tööd tegema tulla) ja kokkuvõttes saadakse ikka enam-vähem selline raha kätte nagu soov oli.ÜritajaRene kirjutas: 13 Veebr 2025, 07:06 Tahan ise tuttavatelt hinnapakkumised võtta kuna tundub, et elektrikud kes mul oleks muidu teinud küsivad liialt. Ja mingil põhjusel ei jaga ka nö ostukorvi sisu.
Kui mõne lülitiga või muu detailiga garantiiteema tekib, siis sebid ise sellega ja töö teinud elektrik ei pea tulema seda vahetama.
Äkki kaaluksid siis juba ise elektrikuks õppimist ja teed töö ise ära?
Re: Projekti alusel automaatkaitsmete valimine
Lugemata postitus Postitas SooSass »
Kui on konkreetsele seadmele mõeldud liin, siis on kasulik arvestada ka seadme kaitsmise rolliga. Lisaks näiteks valgustitel/toiteplokkidel pole alati õiget kaitset enda sees. Vajadusel (näiteks uue seadme ilmumisel) saab ka hiljem kaitselüliteid kilbis muuta (välja vahetada) suurema vastuvõhik kirjutas: 13 Veebr 2025, 19:19 Kaitselüliti kaitseb kaablit, mitte seadet. Seade võib muutuda. Kaabel jääb paika.
Eelkõige see, kas voolu kulgemise loogika kilbi sees hakkab olema ülalt alla või alt üles. Sellest oleneb siis isegi kaitseaparatuuri brändi valik, kuna osadel brändidel ei ole kammlati ülaserva paneku võimalust ja sedasi mõnel juhul hakkaksid ühendusjuhtmed kulgema ebaratsioonaalselt risti-rästi.Oluline on ka mõelda kuidas kilp üles ehitada.
Nõus. Lisaks ka mõnel mehel kreissaag või mõni muu 3-faasiline tööriist. Miskipärast aga uusarenduste elektriprojektides (milline paistab ka siinse projekteerija poolt tehtud copy/paste lahendus) on alati üksainus 1-faasiline 16A õuepesa pandud. Ei teagi miks nii tehakse. Aga muidugi keegi ei keela 3-faasilist panna. Samas auto laadimiseks tuleb kalkuleerida ka, kas olemasolevate peakaitsme ampritega seda üldse mõttekas teha on. Muidugi ampreid saab alati juurde osta, suure raha eest.Õuepesa peaks olema 3-faasiline - kus sa muidu elektriautot (ükskord ostad sa selle niikuinii!) laed?
Lisaks on vaja veel ka hargnemisklemmide ja riviklemmide ja N ja PE ja P(potentsiaaliühtlustuse) klemmide jaoks ruumi (tavaliselt terve üks DIN liist).Esimesse ritta pealüliti, piirikud ja näiteks 4p RVK (või rvk-ta kaitselülitid)
Teise kolmefaasilised automaadid, (või 4p RVK .. hakkabki juba nappima..)
edasi kolm rida, igaühe ees 1f RVK ja kolmandik 1-faasilisi.
Ongi 5 rida läinud...
Sellised asjad ma paneksid juba eraldi teise kasti/kastidesse. Nende vajaduse ette väljamõtlemine (eriti arvestades veel tulevikus võimalikke lisanduvaid nutilahendusi) on mahu ja paigutuse osas võimatu.Aga kuskil oleks hea omada veel ruumi boileri börsihinnaga lülitamise kontaktori jaoks ... või kerist üle neti lülitada ? ...
Kust me seda teame, kas teemaalgatajal on üldse päikesepaneelide paigaldamise võimalust. Lisaks, mul tuttavad juba loobuvad sellest päikeseelektri buumi teemast, monteerivad asju maha (sest asi töötab siis kui elektrit vajadust tarbida eriti pole ja hind on nullilähedane).Kuhu päikesepaneelide inverter ühendatakse ?
Nõus. Aga see vajadus võib tekkida mingil etteteadamata hetkel ja siis on liiga keerukas hakata kilpi vastavat kohta aretama. Samas ette ka ei saa planeerida ju igale liinile arvesti koha võimalust. Lisaks 3-faasilised arvestid võtavad väga palju ruumi DIN liistul (4...7 moodulipositsiooni).Mõne tarbija voolu oleks v-olla huvitav mõõta (autolaadimine? boiler? soojuspump ? )
Mina ei dikteeriks siin teemaalgatajale kilbi suurust ja tüüpi üldsegi ette, seda saab ainult tema ise lõplikult arvestada ja valida. Oleneb veel ka paigalduskoha ruuminurga mõõtmetest, niiskustasemest ja paljust muust.Parem võtta juba kohe number või kaks suurem kilbikest...
Küsimus polegi üldse selles, kas reaalne lühisvool nii paljuks läheb (jah, see ei lähegi üle 2...3kA 99% klientidel). Asi on hoopis selles, et suuremale lahutusvoolule toodetud mudelitel on sees jämedamad kontaktid, mis ka tavalise tarbevooluga töötades/lülitades sedasi vähem kuluvad/sädelevad/põlevad. Ehk siis parem töökindlus üldiselt.Ma ei saa aru, mis nende kaitselülitite lahutusvõime üle muretsetakse, kui tihtipeale on probleemiks hoopis see, et lühisvool ei saavuta peakaitsme rakendumisväärtust (antud juhul siis 200 A).
Re: Projekti alusel automaatkaitsmete valimine
Lugemata postitus Postitas SooSass »
Jah see nimekiri on päris pikk tegelikult...Lisaks siis kõik montaažimaterjal, mis sinna veel läheb. KE klemmid, N lattid, hülsid, montaažisooned, numbrid jne.
- Kilbi multiläbiviiguplaadid
- Peakaabli sisendühenduse riviklemmid (Alu/Cu)
- Hargnemisklemmid faasidele
- N/PE lahutuse sild
- N klemmiliist peamine
- N klemmiliistud pärast RVK'sid olevatele neutraalidele
- PE klemmiliist/liistud
- P(pot.ühtlustus) klemmiliist
- Kammlatid, erinevad (L1, L1-L2-L3, L1-L2-L3-N, L1-N-L1-N-L1-N, L1-N-L2-N-L3-N)
- Kammlattide otsakorgid, erinevad
- Kammlattide vabade kahvlite katted
- Juhtmehülsid (pole vaja kui kasutada plank või üle 10mm2 jämekiud(7kiudu)juhtmeid)
- Montaazijuhtmed vähemalt 6mm2 vask (pruun, must, hall, sinine, kollaroheline)
- Kaablikingad kilbikesta ja ukse poltidele mineva kollarohelise juhtme otsa
- Kaablikõrid ja/või kaablitorud (vajadusel)
- Kaabliklambrid, nipukad, kaabliredelid (vajadusel)
- Isoleerpaelad eri värvilised
- Voolujuhtiv pasta
- Juhtmemärgid erinevad numbrid-tähed: peened (juhtmetele) ja jämedad (kaablitele)
- Skeemitasku kilbiukse siseküljele
- Momentkruvikeeraja erinevate otsikutega (ok, elektrik vast ise tuleb koos sellega)
- muud võimalikud lisajubinad, olenevalt kilpi minevatest seadmetest...
Ja veel lisaks maanduse ning potentsiaaliühtlustuse väljaehitamiseks:
- Maandusvardad
- Maandusvarda otsateravikud
- Juhtme varda külge ühendamise klambrid
- Maandusjuhe kilbist maandusvarrasteni (soovitavalt 16mm2)
- Maandusvarraste tamper-pea (kuvalda jaoks) või adapter (SDS Max trelli jaoks)
- Potentsiaaliühtlustuse lintklambrid torudele (vesi, gaas, küte)
-
Küülaline
- Ehituspenskar

- Postitusi: 6587
- Liitunud: 02 Veebr 2009, 22:46
- On tänanud: 108 korda
- On tänatud: 146 korda
Re: Projekti alusel automaatkaitsmete valimine
Lugemata postitus Postitas Küülaline »
Milleks ei ole piisav?
Pigem ikka haljas, see töötab ka maandusena.SooSass kirjutas: 13 Veebr 2025, 19:35 3. Maandusvardaid ühendav juhe ei pea olema tingimata haljasjuhe, võib jätkata sedasama PK16 KORO mis kulgeb varrasteni.
.SooSass kirjutas: 13 Veebr 2025, 19:35 5. Peakaitsme C20A ja teisalt kastikestega tabelis olev 32A vastuolu vajab lahendamist
Minuarust ei ole vastuolu - kilbi nimivooluks (ja pealüliti) on määratud 32 A, see C20 tähistab liitumiskilbi peakaitset.
Need moodulkaitsed ei ole nii kui nii selektiivsed, ka C20 ja C10 või C6 omavahel.SooSass kirjutas: 13 Veebr 2025, 19:35 11. Köögi pistikupesadele paneksin kaitselülitid C16. Aga kui peakaitse on C20, siis võivad need muidugi selektiivsuse osas liiga lähedale kokku sattuda.
Kodumajapidamises on need liinikaitsed, st peavad kaitsma kaablit ülekoormuse ja lühise eest, mitte vastama seadmete nimi- ja käivitusvooludele.
See väikeste "checkbox"idega lehekülg on kilbi tiitelleht valmistamiseks vajalike andmetega ja minu meelest on korrrektselt täidetud.SooSass kirjutas: 13 Veebr 2025, 19:35 14. See väikeste "checkbox"idega lehekülg on tobe projektilisand. Pooled asjad üldse märkimata ja märgitud asjad ka formaalsed pisinüansid üldse
Re: Projekti alusel automaatkaitsmete valimine
Lugemata postitus Postitas SooSass »
Tavaliselt on sedasi enamuse hooneid ümbritsevate pinnaste puhul, et pinnase ülemine kiht on sageli kuiv killustik või liiv või üldse maapinna tõstmise täiteprahti sisaldav. Alles ca meetri sügavuselt tuleb vastu märjem-tihkem pinnas. Aga loomulikult see pole alati nii, täpsem otsus tuleb teha kohapeal olukorda uurides.
Maitseasi, keelatud pole nii ega naa. Reaalselt see maandusühendusele palju juurde ei anna, kuna ühendusjuhe paikneb maapinna lähedases pealmises kuivas kihis ja ta ise on ka peenem kui varras. Isolatsioon võib-olla annab ka juhusliku (labidaga) vigastamise vastu veidi parema kaitse, aga oleneb muidugi...Pigem ikka haljas, see töötab ka maandusena.3. Maandusvardaid ühendav juhe ei pea olema tingimata haljasjuhe, võib jätkata sedasama PK16 KORO mis kulgeb varrasteni.
Pealülitiks on skeemil näha määratud hoopiski kolmas suurus 40A..5. Peakaitsme C20A ja teisalt kastikestega tabelis olev 32A vastuolu vajab lahendamist
Minuarust ei ole vastuolu - kilbi nimivooluks (ja pealüliti) on määratud 32 A, see C20 tähistab liitumiskilbi peakaitset.
Selektiivsuse osas jah, ei saa alati garanteerida, sest korralik lühis saab välja lüüa ka kogu ahela kaitsmed ühekorraga. Aga seadmete nimi- ja käivitusvooludega tuleb ikkagi arvestada ka kaitselülitite valikul. Muidu ju ei oleks valikus B, C, D jne versioone. Ükski kaabel ei tea nendest versioonidest midagi, see on ikkagi eelkõige seadmest olenev.Need moodulkaitsed ei ole nii kui nii selektiivsed, ka C20 ja C10 või C6 omavahel.11. Köögi pistikupesadele paneksin kaitselülitid C16. Aga kui peakaitse on C20, siis võivad need muidugi selektiivsuse osas liiga lähedale kokku sattuda.
Kodumajapidamises on need liinikaitsed, st peavad kaitsma kaablit ülekoormuse ja lühise eest, mitte vastama seadmete nimi- ja käivitusvooludele.
See mis täidetud, on jah üldiselt korrektne, aga samas paljud neist asjadest on mõttetud liht-formaalsused, mida enamasti näeb juba ka skeemilt (või mida poleks vaja üldse rõhutada, näiteks kaablite sisestus ülalt ja alt, no kust siis veel?). Ja et kuna samas pooled asjad on üldse märkimata jäetud, siis on see suures osas lihtsalt paberi raiskamine ja tühi müra.See väikeste "checkbox"idega lehekülg on kilbi tiitelleht valmistamiseks vajalike andmetega ja minu meelest on korrrektselt täidetud.14. See väikeste "checkbox"idega lehekülg on tobe projektilisand. Pooled asjad üldse märkimata ja märgitud asjad ka formaalsed pisinüansid üldse
-
trebla
- Ehituspenskar

- Postitusi: 3325
- Liitunud: 04 Aug 2009, 00:27
- On tänanud: 3 korda
- On tänatud: 66 korda
Re: Projekti alusel automaatkaitsmete valimine
Lugemata postitus Postitas trebla »
Miks peaks kasutama 40 A nimivooluga RVK-sid, kui liitumispunkti kaitse on 20 A ?..40A on nende [RVK] maksimaalselt lubatud läbiv summaarne voolutugevus. Nende parameetrite järgi tulebki valida - see 30mA peab olema täpselt selline, aga 40A asemel võib hankida ka 63A versiooni,..
See manab nüüd silme ette igapäevase elu, kus pidevalt toimuvad RVK rakendumised ja majas on kokku hoitud valgustuse lülitite pealt, et käiaksegi kõike kilbist sisse ja välja lülitamas......Asi on hoopis selles, et suuremale lahutusvoolule toodetud mudelitel on sees jämedamad kontaktid, mis ka tavalise tarbevooluga töötades/lülitades sedasi vähem kuluvad/sädelevad/põlevad. Ehk siis parem töökindlus üldiselt...
Need eelmainitud kaitseaparaadid võiks põhimõtteliseslt kõik olemata olla, kui ülejäänud paigaldis on ehitatud ja kasutatakse korrektselt..
Välja arvatud liigpingepiirikud - need töötavad pidevalt - iga enda ja ka naabrite lülituse puhul - ainult omanik ei märka seda..
Ja T1 piirikute kasutamine eramajas - no see on religiooni küsimus - kes käib katoliku ja kes luteri kirikus või palub Allahi, et välk lähikonda ei lööks... mõned on Buddha, teised (mina nende hulgas) jälle Faraday usku...
Need moodulkaitsed ei ole nii kui nii selektiivsed, ka C20 ja C10 või C6 omavahel.
Kodumajapidamises on need liinikaitsed, st peavad kaitsma kaablit ülekoormuse ja lühise eest, mitte vastama seadmete nimi- ja käivitusvooludele.
Just, need B, C, ja D karakteristikud ongi kirjeldatud ainult kodumajapidamiseks ja sarnaseks kasutuseks mõeldud kaitselülitite standardis ja mujal pole nendega midagi peale hakata. Seadme vooludele peavad nad selles mõttes vastama, et väiksemate väärtuste korral lihtsalt ei saa seda seadet kasutada, aga seadet kaitsta nad kuidagi ei saa.... kaitsta saavad ainult kaablit... peamiselt..ja mõnel juhul ka pistikusse ühendatud pikendusjuhet, kui see kaitse on piisavalt/võimalikult tundlik valitud. Kui ikka seadmes eneses on rike, siis ma arvan, et pole suurt vahet, kas toiteliini ees oli B cõi C. Seade on ju rikkis niikuinii. Küll aga ei pea seinast välja kiskuma ja vahetama hakkama pistikupesa liini kaablit (ja ka pikendusjuhe on sel juhul tõenäolisemalt ehk kasutuskõlblik, kui automaat piisavalt tundlik oli valitud - kui ei olnud, no siis läheb see pikendusjuhe ise samuti järgmisel kasutamisel suitsema, aga selle väljavahetamine pole keeruline ) Kas praktikas kontrollitakse paigaldise valmimisel, et lühis pistikupesas kutsub esile hetkvabasti rakendumise - see on minuarust ainus kriteerium, mille järgi liinikaitse tuleb valida - tundlikuma kaitselülitiga saab lihtsalt pikemaid liine teha...
kas on ? ..miks peaks? ..pigem ehk on rohkem kaarekustutuskambri lamelle..kui on..?..et suuremale lahutusvoolule toodetud mudelitel on sees jämedamad kontaktid,..
Ma pakuks et näiteks 0,25 A - 40 A on jõukontaktid täiesti identsed... milleks hoida tootja laos erinevaid detaile.. ? ma muidugi lihtsalt arvan.... ega ma ei tea..
(kui mõnikord mõni maaletooja teid tehasesse kaasa kutsub, siis küsige/vaadake järgi.. need reisid ongi harimiseks mõeldud... )
Minumeelest kah, ja ma huviga otsisin sealt arvutuslikku lühisvoolu, mida aga ei olnud... nii, et klient võiks projekteerijalt nõuda.....See väikeste "checkbox"idega lehekülg on kilbi tiitelleht valmistamiseks vajalike andmetega ..
Jah - aga kasuliku nõu andmiseks see foorum ongi... ja nõuanne - Jäta kilpi ohtralt reservruumi.!Mina ei dikteeriks siin teemaalgatajale kilbi suurust ja tüüpi üldsegi ette, seda saab ainult tema ise lõplikult arvestada ja valida. Oleneb veel ka paigalduskoha ruuminurga mõõtmetest,
Juhtmeid ühendav elektrik on rahul ja sa ise paari aasta pärast samuti.
Nende autolaadimispesade ja päikesepaneelide jaoks võiks veel kui saab, vähemalt torud/kõrid ära vedada. Pluss ruum vajalike vidinate hilisemaks lisamiseks..
need ei pea tingimata kolmefaasilised olema - mul on 6 kW boileril ja autolaadimispesal 1-faasilised, näit tuleb lihtsalt kolmega korrutada.. ja üle 3 korra odavamad on kah..... Lisaks 3-faasilised arvestid võtavad väga palju ruumi DIN liistul (4...7 moodulipositsiooni)...
Minu nõudepesumasina remontija kirus just liigset pingelangu toiteliinil kui elektroonika tuksikeerajat ja soovitas igal juhul eraldi liini (ilmselt siis ka võimalikult jämedat kaablit) Automaat võib muidugi 10 A olla..Nõudepesumasinad ja pesumasinad (tänapäeva standard 2000...2200W) käivad edukalt ka C10 kaitselülititega ja 3G1,5 kaabliga.
Ikka raha pärast tehakse.Miskipärast aga uusarenduste elektriprojektides (milline paistab ka siinse projekteerija poolt tehtud copy/paste lahendus) on alati üksainus 1-faasiline 16A õuepesa pandud. Ei teagi miks nii tehakse.
Eesti esimese eramute arendusprojekti e. Tiskre esimese ehitusjärgu majade elektritöö olla saadud hinnaga 25 000 EEK/maja . Seda koos materjaliga.
Aga selle raha sees olla ka olnud igas toas ainult üks pistikupesa ja seegi ukse juures. Kui tahtsid rohkem, siis oli see lisatöö ...
-
Küülaline
- Ehituspenskar

- Postitusi: 6587
- Liitunud: 02 Veebr 2009, 22:46
- On tänanud: 108 korda
- On tänatud: 146 korda
Re: Projekti alusel automaatkaitsmete valimine
Lugemata postitus Postitas Küülaline »
Lühisetaluvuse nime all oli ju 6 kA kirjas.trebla kirjutas: 13 Veebr 2025, 22:53huviga otsisin sealt arvutuslikku lühisvoolu, mida aga ei olnud...
-
trebla
- Ehituspenskar

- Postitusi: 3325
- Liitunud: 04 Aug 2009, 00:27
- On tänanud: 3 korda
- On tänatud: 66 korda
Re: Projekti alusel automaatkaitsmete valimine
Lugemata postitus Postitas trebla »
See on kilbi lühisetaluvus. Konkreetset paigaldist iseloomustab arvutuslik lühisvool selles kilbis...
Või pole seda projektis vaja näidata?
Samas ka juhistikutüüp ? - minuarust peaks seda antud juhul tähistama TNC-S -ga.
Seal ristikesega kasti taga olev loetelu võib tähistada nii TNS-i kui ka TT-d.
-
Küülaline
- Ehituspenskar

- Postitusi: 6587
- Liitunud: 02 Veebr 2009, 22:46
- On tänanud: 108 korda
- On tänatud: 146 korda
Re: Projekti alusel automaatkaitsmete valimine
Lugemata postitus Postitas Küülaline »
Re: Projekti alusel automaatkaitsmete valimine
Lugemata postitus Postitas SooSass »
Ei pea tingimata kasutama 40A, võib panna ka 25A variandi (millega säästab mõne euro). Aga samas pole kuidagi keelatud ka suuremaid kasutada. Mingis osas on (vähemalt peaks olema) suuremale voolule mõeldud variandid tugevamad ja kuna maja elektrikilpi ei ehitata omale mitte iga kuu ega iga aasta (pigem vast kord paarikümne aasta jooksul või veelgi harvem), siis korraks mõni euro (võileiva hind) lisaks maksta pole vast suur asi mille üle muretseda. Ma endale panin kõik ühtmoodi 63A versioonid, isegi kui koormuseks mõnel juhul vaid mõni amper... Teine teema on veel aga selles, et kui äkki tekib soov osta peakaitsmele ampreid juurde, näiteks tolle 20A asemel 32A või 40A, ja seejärel lisada ka mõnede väljundliinide ampreid (näiteks 22kW autolaadijale) siis võib-olla mõni 25A RVK enam ei sobigi ja tuleks ringi vahetada.Miks peaks kasutama 40 A nimivooluga RVK-sid, kui liitumispunkti kaitse on 20 A ?..40A on nende [RVK] maksimaalselt lubatud läbiv summaarne voolutugevus. Nende parameetrite järgi tulebki valida - see 30mA peab olema täpselt selline, aga 40A asemel võib hankida ka 63A versiooni,..
Ka pidevalt sisselülitatud (suletud kontaktidega) kaitselüliti töökindlus on oluline. Ma siin ühes teises teemas juba mainisin, et kogesin juhtumeid kus pidevalt kenasti sisselülitatud kaitselülitid (ilma vist kordagi rakendumata) ühel päeval katkesid ja siis lahtilammutades selgus, et õbluke kontakthoob oli otsast ära sulanud, kuna arvatavasti polnud piisavalt hästi vastu surutud ja seal vahemikus toimetanud väike säde aja jooksul sõi pinnad ära... Jah, kõige parem on kui neid kaitselüliteid üldse seal vahel poleks, mida vähem igasuguseid kontakte ja kruvi/vedru ühendusi, seda kindlam vooluahel, aga... isegi kui ülejäänud paigaldis on korrektne ja kasutatakse korrektselt, siis asjad mida me ei saa mõjutada, tekitavad ikkagi mõnikord lühiseid. Tuntud sellised asjad on näiteks (elektripliidi) huumlambid, mis kipuvad vahel seestpoolt lühistuma (väljaviigud klaasampulli sees liiga vastupuutuvalt tehases paigutunud), või kasvõi endistest hõõgpirnide ajastust, kus mõni uhiuus pirn esmakordsel lülitamisel lõhkes ja samas ka lühise tekitas siis. Nii et ega head lahendust polegi.See manab nüüd silme ette igapäevase elu, kus pidevalt toimuvad RVK rakendumised ja majas on kokku hoitud valgustuse lülitite pealt, et käiaksegi kõike kilbist sisse ja välja lülitamas......Asi on hoopis selles, et suuremale lahutusvoolule toodetud mudelitel on sees jämedamad kontaktid, mis ka tavalise tarbevooluga töötades/lülitades sedasi vähem kuluvad/sädelevad/põlevad. Ehk siis parem töökindlus üldiselt...
Need eelmainitud kaitseaparaadid võiks põhimõtteliseslt kõik olemata olla, kui ülejäänud paigaldis on ehitatud ja kasutatakse korrektselt..
Siin on üks oluline nüanss, asi pole selles kas on eramaja või muu maja, nimelt on olulisem kas see eramaja on kusagil tihedas suurlinnas või lagedamal maapiirkonnas. Ma väidaks, et näiteks Tallinnas kesklinnas pole T1 piirik oluline, sest elektrifiidrid on tänavate all ja samas tänavate kohal on lugematu hulk muid traate ja poste ja maste. Kui majal endal või selle läheduses pole ka piksevarrast, siis on vähe võimalusi lähedase äikeselöögi tekkeks, mis elektrisüsteemi võiks kahjustada. Ilmselt seetõttu ei nõua ka eeskirjad T1 olemasolu siis kui pole majale piksekaitsesüsteemi ehitatud. Aga see pole ka keelatud, tore on kui ta ikkagi on olemas. Mul endal on ka peajaotuskilbis T1+T2 piirik ja seejärel veel T3 piirikud pikemate grupiliinide lõpuosas. Aga tuleb arvestada, et T1+T2 piirik maksab (T2 võrreldes) 2 korda rohkem (150...250 EUR), kuigi tegemist on lihtsa põhimõttega lahendusega.Ja T1 piirikute kasutamine eramajas - no see on religiooni küsimus - kes käib katoliku ja kes luteri kirikus või palub Allahi, et välk lähikonda ei lööks... mõned on Buddha, teised (mina nende hulgas) jälle Faraday usku...
See on jah sul väga hea tähelepanek. Tõesti ma ka seni olen ikka näinud, et skeemitabelites on ka iga grupiliini jaoks arvutuslikud lühisvoolud ja pingelangud ära märgitud, mõnikord veel isegi kaabli temperatuurid. Aga siin pole mitte midagi nendest.ma huviga otsisin sealt arvutuslikku lühisvoolu, mida aga ei olnud... nii, et klient võiks projekteerijalt nõuda...
See on täitsa huvitav idee tegelikult. Saab muidugi kasutada ainult siis, kui tegemist on 3-faasilise sümmeetrilise koormusega. Kui sealsamas selle liini taga on veel riburada 1-faasilisi tarbijaid lisaks (või kui on tegemist 1-faasiliste tarbijate vahel laiali jagatud 3-faasilise pealiiniga), siis läheb arvestus muidugi sassi.need ei pea tingimata kolmefaasilised olema - mul on 6 kW boileril ja autolaadimispesal 1-faasilised, näit tuleb lihtsalt kolmega korrutada.. ja üle 3 korra odavamad on kah..... Lisaks 3-faasilised arvestid võtavad väga palju ruumi DIN liistul (4...7 moodulipositsiooni)...
Nojah, ihne arendaja tahab müüa võimalikult odavalt kokkuehitatud kinnisvara võimalikult suure kasumimarginaaliga. Seetõttu valitakse sageli ka kõige odavamad elektri(kilbi)seadmed, mis veel napilt normidele vastavad. Odavaimad Hiina brändid, kõige nõrgemad võimalikud parameetrid, kõige vähem komponente... Õuepesade teemal aga, tänapäeval oleks mõistlik individuaalelamule või ridaelamuboksile ette näha lausa vähemalt 2 õuepesa või õuepesade komplekti erinevates kohtades, üks maja ees, teine tagaküljel. Ja see ei hõlma veel mitte autolaadimise pesa/pesasid, mis peaksid olema omaette ja võimalikult suurema võimsusega, soovitavalt 3x32A (aga 3x20A peakaitsmega seda lõbu muidugi ei saavuta, samas aga reaalsus on selline, et enamus tänaseid uusarendusi on lausa kõigest 3x16A peakaitsmega).Ikka raha pärast tehakse.Miskipärast aga uusarenduste elektriprojektides (milline paistab ka siinse projekteerija poolt tehtud copy/paste lahendus) on alati üksainus 1-faasiline 16A õuepesa pandud. Ei teagi miks nii tehakse.
Eesti esimese eramute arendusprojekti e. Tiskre esimese ehitusjärgu majade elektritöö olla saadud hinnaga 25 000 EEK/maja . Seda koos materjaliga.
Aga selle raha sees olla ka olnud igas toas ainult üks pistikupesa ja seegi ukse juures. Kui tahtsid rohkem, siis oli see lisatöö ...
-
kunn24
- Ehituspenskar

- Postitusi: 4004
- Liitunud: 11 Veebr 2018, 14:45
- On tänanud: 44 korda
- On tänatud: 136 korda
Re: Projekti alusel automaatkaitsmete valimine
Lugemata postitus Postitas kunn24 »
Juurde täiendus: metalltorude puhul.- Potentsiaaliühtlustuse lintklambrid torudele (vesi, gaas, küte)
Mine “Elekter, elektriseadmed”
- Ehitusfoorum
- ↳ Üldfoorum
- ↳ Ahjud, kaminad, korstnad
- ↳ Aiad, väravad
- ↳ Aknad, uksed
- ↳ Betoon ja betoonitooted
- ↳ Ehitustööriistad
- ↳ Ehitusmaterjalid
- ↳ Elekter, elektriseadmed
- ↳ Energiamärgis ja energiaaudit
- ↳ Fassaadide arutelu
- ↳ Katused, laed
- ↳ Hüdroisolatsioon
- ↳ Kaevud
- ↳ Konstruktsioonid, seinad
- ↳ Küttesüsteemid
- ↳ Palkmajad
- ↳ Projekteerimine, projektid
- ↳ Põrandad
- ↳ Puit ja puidutooted
- ↳ Restaureerimine
- ↳ Seadusandlus
- ↳ Soojustus, isolatsioon
- ↳ Saunad, dussiruumid, vannitoad, sanitaartehnika
- ↳ Siseviimistlus, värvid, plaatimistööd
- ↳ Ventilatsioon
- ↳ Veevarustus, kanalisatsioon, käimlad
- ↳ Vundamendid
- ↳ Naljanurk
- ↳ Arhiiv
- Ärifoorumid
- ↳ Otsin tööd
- ↳ Pakun tööd
- ↳ Ostu-müügifoorum
- ↳ Annan/võtan rendile
- ↳ Hinnapäring

