1. leht 1-st
Terrassi ehitus
Postitatud: 23 Apr 2013, 10:53
Postitas laurit
Soov terrassi ehituseks.
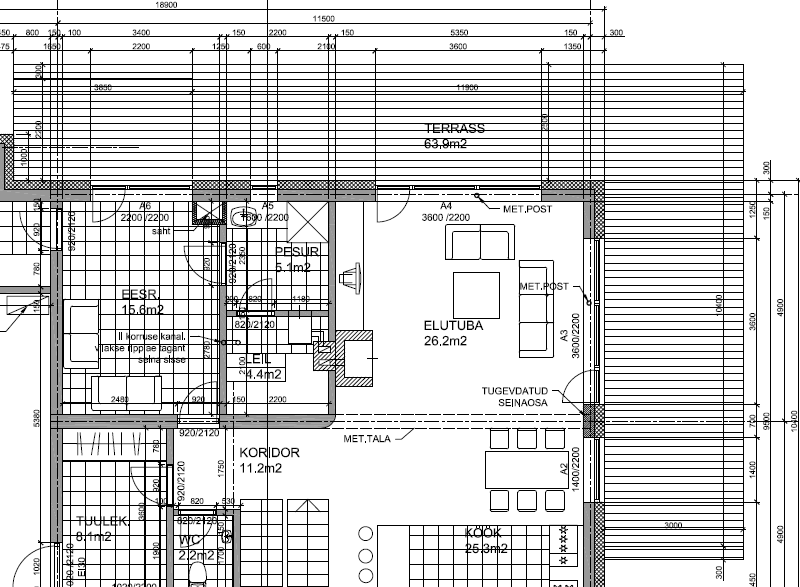
Asukoht Harjumaal, Kiili vallas.
Terrassilaud peab olema 120x28mm.
56 669 369
laurit <at> outlook.com

- terrass.png (87.48 KiB) Vaadatud 3886 korda
Re: Terrassi ehitus
Postitatud: 24 Apr 2013, 01:02
Postitas turuliider
Tere
ruutmeetri hind 15.70€
hinnale lisandub käibemaks.
Tegemist on teostamise maksumusega.
Hinnale lisandub materjalide maksumus.
Teostatud töid näeb kodulehelt.
Lugupidamisega
Urmas Kask
Re: Terrassi ehitus
Postitatud: 24 Apr 2013, 08:27
Postitas laurit
turuliider kirjutas:Tere
ruutmeetri hind 15.70€
hinnale lisandub käibemaks.
Teostatud töid näeb kodulehelt.
Kas see on heategevus või hind ei sisalda materjale?
Re: Terrassi ehitus
Postitatud: 24 Apr 2013, 08:58
Postitas ei ole liider
turuliider kirjutas:
ruutmeetri hind 15.70€
hinnale lisandub käibemaks.
Proovisin mõista antud postituse sisu, aga ei suutnud.
Pakkumine oli vaja teha 80m2 terassile koos materjalidega. Teadmata on pinnase liik kuhu kavatsetakse rajada terass, kõrgused jne.
Turuliidri pakkumine kattab nibin-nabin kulud tööjõule, muidugi kui ei kavatseta arveldada mustalt.
On äärmiselt kahetsusväärne, et ettevõtte kes valdab hästi marketingi, reklaami, turundust... ei suuda hoomata reaalseid mahte ja laksib puusalt hindasi reklaamides end turuliidrina.
Re: Terrassi ehitus
Postitatud: 24 Apr 2013, 10:22
Postitas vaaderman
ei ole liider kirjutas:turuliider kirjutas:
ruutmeetri hind 15.70€
hinnale lisandub käibemaks.
Proovisin mõista antud postituse sisu, aga ei suutnud.
Pakkumine oli vaja teha 80m2 terassile koos materjalidega. Teadmata on pinnase liik kuhu kavatsetakse rajada terass, kõrgused jne.
Turuliidri pakkumine kattab nibin-nabin kulud tööjõule, muidugi kui ei kavatseta arveldada mustalt.
On äärmiselt kahetsusväärne, et ettevõtte kes valdab hästi marketingi, reklaami, turundust... ei suuda hoomata reaalseid mahte ja laksib puusalt hindasi reklaamides end turuliidrina.
hind on igal juhul märkimisväärne ja ligitõmbav, ju siis kaubeldakse hiljem juurde. olen kah m2 hinda jälginud
oma töödel ja 30 euri on kusagil selline keskmine ruudu hind
Re: Terrassi ehitus
Postitatud: 24 Apr 2013, 15:45
Postitas turuliider
laurit kirjutas:turuliider kirjutas:Tere
ruutmeetri hind 15.70€
hinnale lisandub käibemaks.
Teostatud töid näeb kodulehelt.
Kas see on heategevus või hind ei sisalda materjale?
Tänan tähelepaneliku kommentaari eest. Täpsustasin enda vastust.
Tegemist paigalduse hinnaga.
Re: Terrassi ehitus
Postitatud: 24 Apr 2013, 15:59
Postitas turuliider
ei ole liider kirjutas:turuliider kirjutas:
ruutmeetri hind 15.70€
hinnale lisandub käibemaks.
Proovisin mõista antud postituse sisu, aga ei suutnud.
Pakkumine oli vaja teha 80m2 terassile koos materjalidega. Teadmata on pinnase liik kuhu kavatsetakse rajada terass, kõrgused jne.
Turuliidri pakkumine kattab nibin-nabin kulud tööjõule, muidugi kui ei kavatseta arveldada mustalt.
On äärmiselt kahetsusväärne, et ettevõtte kes valdab hästi marketingi, reklaami, turundust... ei suuda hoomata reaalseid mahte ja laksib puusalt hindasi reklaamides end turuliidrina.
Jah pakkumises oli viga. Märkimata oli, et tegemist on tööjõu kuludega. Meie enda ettevõttes ei pea liigkasu poole pürgimist ainukeseks elatusvõimaluseks Eestis ning antud hind teostamisele on täiesti mõistlik.
Ennem kui anonüümselt seljatagant salvata, peaks ikka mõtlema. Kuna enamus meie tööjõudu on koguaegselt hõivatud suurte objektidega, siis ei pea me normaalseks hakata nii väikese asjaga püüdma saavutada meeletut kasumit. Ehitusbuum on möödas kallid inimesed ja tegijatel on koguaeg tööd. Vahepeal lisaks võtta väikeseid otsi, et endale nime veelgi edasi teha, on väga mõistlik. Aga eks jätkub neidki kes enda vabasid päevi siin foorumis kaagutades ning kindlasti ka kuskil Delfi avarustes mööda saadavad.
Kõige lihtsam on ju näpuga näidata ja kaagutada, et näe huvitav kuidas see või teine sellise hinnaga teeb või suudab kvaliteeti pakkuda. Oleme ennegi sinu suguste ( ANONÜÜMSETE FOORUMIS KISENDAJATE ) tööd käinud üle ja ümber tegemas.
Ei mõistagi ausalt, miks raiskan siin enda aega hetkel mingisuguste laimavate kommentaaride peale.
Eks ole ju vaba valik... Kes teeb endale nime tööga, kes teiste laimamisega. aga eks vanasõnadel ole ju tõetera sees ka. " Suuga teeb suure linna, Käega ei kärbse ....."
Edukat Kevadet foorumlased!
Re: Terrassi ehitus
Postitatud: 03 Mai 2013, 16:04
Postitas laurit
Ehitaja leitud. Tänud kõigile, kes pakkusid.