1. leht 1-st
NSVL aegse magala korteri tüüpprojekt
Postitatud: 30 Dets 2011, 15:59
Postitas jagaja
Tere,
Kas kellelgi on või kust võiks saada tüüpilise NSVL aegse 5-korruselise maja 2 või 3 toalise korteri projekti (ülaltvaade seinte mõõtudega)?
Tahaks saada enne korteri ostmist mingi ülevaate, et osata sisustust planeerida.
Ka kõik tuttavad kes sellistes elavad, ütlevad et projekti pole alles või on see kuskil "majavalitsuse" arhiivis.
Ei aja millimeetreid taga, piisaks kasvõi skännitud jpg pildist.
jagaja[ät]speedcms.net
Re: NSVL aegse magala korteri tüüpprojekt
Postitatud: 30 Dets 2011, 16:44
Postitas Urmas
Re: NSVL aegse magala korteri tüüpprojekt
Postitatud: 30 Dets 2011, 16:50
Postitas rokikas
Hinnad on küll karmid
"Nõuetekohase projekti hind Eesti Projektis (sõltuvalt töö mahust) ... 10002000 kr
Ehitusjärelevalve inseneri töötund ... 200 kr
Vaheseina avade saagimine või nende eemaldamine ilma ehitusloata ... trahv 4604600 kr"
Re: NSVL aegse magala korteri tüüpprojekt
Postitatud: 30 Dets 2011, 16:56
Postitas Külaline
rokikas kirjutas:Hinnad on küll karmid
"Nõuetekohase projekti hind Eesti Projektis (sõltuvalt töö mahust) ... 10002000 kr
Ehitusjärelevalve inseneri töötund ... 200 kr
Vaheseina avade saagimine või nende eemaldamine ilma ehitusloata ... trahv 4604600 kr"
Sa oled korrutamisega natuke hoogu sattunud.

Tol ajahetkel oli 1 trahviühiku hinnaks 46 eeku ja kui ma ei eksi, siis enne eurot oli vist 60 eeku.
Re: NSVL aegse magala korteri tüüpprojekt
Postitatud: 30 Dets 2011, 17:07
Postitas rokikas
Mina pole midagi korrutanud. Puhas kopeeri/kleebi viidatud lehelt.
Re: NSVL aegse magala korteri tüüpprojekt
Postitatud: 30 Dets 2011, 17:13
Postitas Külaline
Seal sulgudes olev arv on juba 1 trahviühiku summa korrutis.
Urmas
Re: NSVL aegse magala korteri tüüpprojekt
Postitatud: 30 Dets 2011, 17:34
Postitas rokikas

Seda ma usun et projekt päris 10002000 krooni ei maksnud aga sellisena ma seda näen.
Kas asi selles et "Google chrome"t kasutan või mis?
Pakun et projekt 1000 - 2000 krooni ning trahv 460 - 4600 krooni.
Lähen ruttu pangaarvet vaatama. Äkki seal sama "jama" juhtunud.

Re: NSVL aegse magala korteri tüüpprojekt
Postitatud: 30 Dets 2011, 18:03
Postitas Külaline
rokikas kirjutas:...Pakun et projekt 1000 - 2000 krooni ning trahv 460 - 4600 krooni...
On jah seal päris all mingid imelikud numbrid juhtunud, ju vist trükikurat on sidekriipsud ära jätnud, aga ega teemaalgatajal neid vast polegi vaja teada kui kõik jonksu ajab nagu peab. tema jaoks oluline info on artikli keskel.
Urmas
Re: NSVL aegse magala korteri tüüpprojekt
Postitatud: 30 Dets 2011, 18:08
Postitas jagaja
Vabandust, aga kuidas see artikkel peaks nüüd abiks olema?
Kas see oli vihje, et telliks projekti (Eesti Projekti enam ei ole?) või külastaks linnaplaneerimise arhiivi?
Ma ei soovi seinu ümber teha, ma tahaks lihtsalt enamvähem ruumide mõõtmeid, et sisustust planeerida. Ja mul ei ole veel sellist korterit ka ostetud (kuigi plaanis 2-3 toaline).
Aitäh!
Re: NSVL aegse magala korteri tüüpprojekt
Postitatud: 30 Dets 2011, 19:17
Postitas rokikas
jagaja kirjutas:.... tuttavad kes sellistes elavad...
Mõõdulint, paber, pliiats, vein ning midagi näksimist ja külla neile. Pealekauba saab seal ka selgema tunde mida see paberil olev 4 * 2.5 tuba tähendab reaalsuses.
Re: NSVL aegse magala korteri tüüpprojekt
Postitatud: 30 Dets 2011, 20:01
Postitas paneelikas
Millist magalaprojekti täpsemalt mõtled?
5k maja ilma rõdudeta variant ehk hrustsovka?
5k Mustamäe stiilis, kolm korterit per trepikoda/korrus
5k Mustamäe stiilis, neli korterit per trepikoda/korrus
5k maja Lasna stiilis?
Vahel võib planeeringuid leida kinnisvarakuulutustest.
Re: NSVL aegse magala korteri tüüpprojekt
Postitatud: 31 Dets 2011, 01:13
Postitas jagaja
paneelikas kirjutas:Millist magalaprojekti täpsemalt mõtled?
5k maja ilma rõdudeta variant ehk hrustsovka?
5k Mustamäe stiilis, kolm korterit per trepikoda/korrus
5k Mustamäe stiilis, neli korterit per trepikoda/korrus
5k maja Lasna stiilis?
Vahel võib planeeringuid leida kinnisvarakuulutustest.
Nagu aru saan, on variante siiski palju. Aga mõtlen rõdudega Tartu maju, aga nendest variantidest siis pigem Mustamäe stiilis, 3 korterit per korrus.
Kinnisvara kuulutustest olen uurinud, aga tõsi, planeeringud on uute korterite kohta, selliseid vanu ei ole kuskil kohanud. Eeltöö tegin ära, uurisin ka googlest:
http://www.google.ee/search?q=korteri+plaan&tbm=isch
Kui siit keegi aidata ei oska, siis ei jää tõesti muud üle, kui tuttavatele mõõdulindiga külla.
Re: NSVL aegse magala korteri tüüpprojekt
Postitatud: 31 Dets 2011, 05:55
Postitas Külaline
jagaja kirjutas:...Kas kellelgi on või kust võiks saada tüüpilise NSVL aegse 5-korruselise maja 2 või 3 toalise korteri projekti (ülaltvaade seinte mõõtudega)?
Tahaks saada enne korteri ostmist mingi ülevaate, et osata sisustust planeerida...
jagaja kirjutas:Vabandust, aga kuidas see artikkel peaks nüüd abiks olema?
Kas see oli vihje, et telliks projekti (Eesti Projekti enam ei ole?) või külastaks linnaplaneerimise arhiivi?...
Mis teha, minu laiskus, et sulle "puust ja punaseks" ei teinud, konkreetseid asutusi koos telefoninumbrite ja aadressidega kandikul ette ei kandnud. Selleks on mul tegelikult üks väike vabandus ka olemas, aga ma ei tea, kas see läheb arvesse. Nimelt ei kirjutanud sa oma esimeses postituses, kus linnas, alevis või millises EV adminitrtiivüksuses omale korterit osta kavatsed. Kahjuks andsin oma postituses ainult kaudse vihje, millest toon välja ühe tsiteeringu:
"Tallinna paneelmajad on Eesti Projektis projekteeritud ning seega on seal iga maja kohta materjalid olemas. Stalini-aegsete majade ning enne sõda ehitatud elamutega on olukord pisut keerulisem. Kui Eesti Projektis nende kohta materjale ja jooniseid ei ole,
tasub pöörduda kas maja haldavasse kinnisvarahooldusettevõttesse või Tallinna linnaplaneerimisameti arhiivi. "
Sa said vihjest aru nii ja naa. Mitte sa ei pea tellima EP-st projekti, vaid EP-s on/olid või vähemalt peaks olemas olema sulle vajalikud projektid, kuid kui EP-d enam ei ole, uuri, kes on tema õigusjärglane. Selline asutus ei saa kaduda jäljetult! Kui ei leidnud ka EP järglast, siis tõesti vist on lihtsam esialgu helistada või kirjutada e-posti kaudu tsiteeringus toodud ametitele enne sinna kõmpimist. Palgalised ehitusnõunikud ka väiksemates KOV-s olemas, kellelt abi saada.
Urmas
Re: NSVL aegse magala korteri tüüpprojekt
Postitatud: 31 Dets 2011, 13:49
Postitas jagaja
Külaline kirjutas:Mis teha, minu laiskus, et sulle "puust ja punaseks" ei teinud, konkreetseid asutusi koos telefoninumbrite ja aadressidega kandikul ette ei kandnud.
Lugupeetud Urmas, ma ei tulnud siia tüli norima. Kui ma sooviksin aadresse ja telefoninumbreid, siis saaksin need ise kätte. Lihtsalt mul on ebamugav mingite asutustega asju ajama hakata, eriti aastavahetusel. Foorumisse tulin lootusega, et ehk keegi oskab kohe pildi saata, kasvõi väikse tasu eest. Taolisi kortereid on ju kümnetes tuhandetes ja võiks levinud olla, et ehk kellelgi on arvutis olemas.
Kena aastavahetust!
Re: NSVL aegse magala korteri tüüpprojekt
Postitatud: 31 Dets 2011, 13:51
Postitas paneelikas
jagaja kirjutas:paneelikas kirjutas:Millist magalaprojekti täpsemalt mõtled?
5k maja ilma rõdudeta variant ehk hrustsovka?
5k Mustamäe stiilis, kolm korterit per trepikoda/korrus
5k Mustamäe stiilis, neli korterit per trepikoda/korrus
5k maja Lasna stiilis?
Vahel võib planeeringuid leida kinnisvarakuulutustest.
Nagu aru saan, on variante siiski palju. Aga mõtlen rõdudega Tartu maju, aga nendest variantidest siis pigem Mustamäe stiilis, 3 korterit per korrus.
Kinnisvara kuulutustest olen uurinud, aga tõsi, planeeringud on uute korterite kohta, selliseid vanu ei ole kuskil kohanud. Eeltöö tegin ära, uurisin ka googlest:
http://www.google.ee/search?q=korteri+plaan&tbm=isch
Kui siit keegi aidata ei oska, siis ei jää tõesti muud üle, kui tuttavatele mõõdulindiga külla.
Siis jäävad veel variandid
kahesed 43m2, aknad ühelepoole maja
kahesed, ka midagi 43m2, läbi maja
kahesed 47 läbi maja
kolmesed 47m2 nurgapealsed
kolmesed midagi 60,5m2 suure koridoriga, läbi maja
neljased 60m2, peaks olema modifikatsioon 47m2 kolmesest
Aga üldiselt ei ole eriti vahet, paneelid on standardmõõtudega laiema toa laius on sees kuskil 3,06 m, kitsam 2,5, köögi laius 2,3 vent korstna tõttu, toa pikkus ca 5,5m
Vannitoa moodul peaks originaalis kõikjal ühesugune olema.
10 cm siia-sinna ei ole veneaegse ehituse kohta mingi näitaja

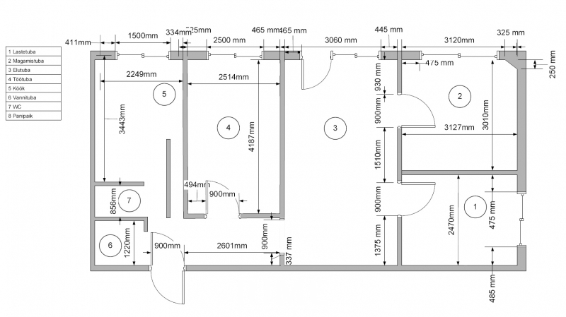
- 60m2 neljane.jpg (134.11 KiB) Vaadatud 20243 korda
Re: NSVL aegse magala korteri tüüpprojekt
Postitatud: 31 Dets 2011, 14:21
Postitas jagaja
paneelikas kirjutas:üldiselt ei ole eriti vahet, paneelid on standardmõõtudega laiema toa laius on sees kuskil 3,06 m, kitsam 2,5, köögi laius 2,3 vent korstna tõttu, toa pikkus ca 5,5m
Vannitoa moodul peaks originaalis kõikjal ühesugune olema.
10 cm siia-sinna ei ole veneaegse ehituse kohta mingi näitaja
Aitäh paneelikas! Täpselt seda vaja oligi!
Re: NSVL aegse magala korteri tüüpprojekt
Postitatud: 31 Dets 2011, 16:48
Postitas rokikas
Enne kui ostma lähed loe selle teema viited läbi -
viewtopic.php?f=11&t=31645 . Ehk saad ideid juurde mida jälgida või küsida.
Re: NSVL aegse magala korteri tüüpprojekt
Postitatud: 18 Mär 2012, 17:00
Postitas Külaline
Kas keegi oskab öelda, kuidas need seinte pikkused üldiselt hruštšovkal on?
kandev sein jookseb maja keskelt, tubade pikkused on siis umbes 5,5m sealgi?
3-toalise puhul on üks magamistuba umbes 2,2, teine 2m lai, läbikäidav elutuba 3m ja köök, vannituba 1,5m?