3. leht 4-st
Re: Garaazi lae soojustamine
Postitatud: 14 Juun 2024, 01:27
Postitas vuuk
Re: Garaazi lae soojustamine
Postitatud: 14 Juun 2024, 02:14
Postitas xxx111
@ vuuk
Ei taha eriti kritiseerida - ise nii ei teeks...
Sisuliselt võiks öelda, et tala on kinnitamata...
Re: Garaazi lae soojustamine
Postitatud: 14 Juun 2024, 02:54
Postitas vuuk
Tegemist inseneri joonisega.
PS: nende talade ülesanne ei olnud hoone stabiilsust tagada, st hoone laiali minek oli tagatud teisiti.
Selle eelpool toodud joonise alumine ots on mul meelega jäetud kopeerimata - ei taha teise autoritööd üleni netti riputada.
Täpsustuseks, et asi väga jama ei paistaks, need joonisel numbriga 350 tähistatud on fermid (fermide alumised vööd) sammuga 900...1000 mm ja talad on tegelikult lisatud nende vahele lisaks, et tagada vahelae kandevõime.
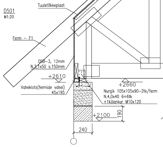
Fermide toe sõlm:

- fermi toesõlm.jpg (66.57 KiB) Vaadatud 5221 korda
Re: Garaazi lae soojustamine
Postitatud: 14 Juun 2024, 08:23
Postitas xxx111
Vbl on tegemist "inseneri" joonistega
Löö nimi kutseregistrisse / vt mis välja tuleb
Stabiilsuse tagamist ma polegi mõelnud / aga küsiks, et mis asi täpsemalt seda hoonet "laiali ajab"
Kas see on "inesneri" lause...
Tegemist siis nö poolkorrusega st ei fermide alumine vöö ega talad pole täies pikkuses kasuskoormusega koormatud
Sel juhul pole põhjendatud ristlõige 45x195
Toesõlm mulle ka "ei meeldi"
Lisaks on põhjendamatu või vähemalt küsitav sellisel sildel so 4,2+4,6=8,8 fermide kasutamine
Kokkuvõttes - isiklikult oleks asja lahendanud teisiti...
Re: Garaazi lae soojustamine
Postitatud: 15 Juun 2024, 05:19
Postitas vuuk
Eks projektide pealt püütakse säästa - nagu ikka need asjad siinmail käivad.
Kuidas hindate, kui palju %-des oleks võinud materjalidelt säästa oskuslikuma ja optimaalsema konstruktiivse lahenduse korral.
Mind kui ehitajat häiris selle lahenduse juures eelkõige see, et karkassi samm ei ühtinud villa mõõtudega - jubedasti mõttetut lõikamist ja tohutu jääkide hunnik. Kas insener ei peaks oma töös ka seda aspekti silmas pidama?
Mulle on silma jäänud, et projekteerijatel nagu igasugustel tegijatel on tugevamaid ja nõrgemaid külgi. Pannakse projektidesse enda jaoks teada ja läbi proovitud sõlmlahendusi ja materjale.
xxx111 kirjutas: 14 Juun 2024, 08:23
...
Toesõlm mulle ka "ei meeldi"
...
Mis täpsemalt toesõlmes pahasti näib olevat?
Re: Garaazi lae soojustamine
Postitatud: 15 Juun 2024, 08:00
Postitas xxx111
Mis täpsemalt toesõlmes pahasti näib olevat?
- kuidas tagatakse fermi stabiilsus tasapinnast välja
- kinnitusvahendid ei mahu ära - vaheklots, nurgik, ogaplaat
- tõmbele töötavas liites pole lubatud kasutada siledaid naelu / selline olukord tekib kindlasti
- M10 ankru süvistussügavus betooni
- müürilati / müürivöö ristlõige - täpsemalt kõrgus - sinna pole võimalik korralikku liidet teha
JNE...
Re: Garaazi lae soojustamine
Postitatud: 15 Juun 2024, 08:34
Postitas vuuk
Kas 120 mm pikkusega kiilankruid üldse on olemas?
Kui õigesti mäletan, siis ankur peab ulatuma betooni vähemalt 65 mm. Järelikult 5 mm jääb projektis määratud ankur lühikeseks. See hakkas mulle ka silma.
Kuidas Teie insenerina tõlgendate, kui on öeldud, et nurgik 2 tk / ferm, kuidas seda täpsemalt aru saada, kas mõlemale fermi küljele 1 ehk kokku 2 ja teise otsa samuti 2 ehk kokku fermile 4? Või ühele fermile ühes otsas 1 ja teises otsas 1, kokku 2. Minu arust võib erinevalt aru saada.
Re: Garaazi lae soojustamine
Postitatud: 15 Juun 2024, 09:10
Postitas xxx111
Esiteks - räägime ikka sina vormis, Teie-tada pole vaja...
Ankrud on M10x120 olemas
Kuid 50mm puidu kinnituseks pole nende süvistus piisav
Lisaks peaks viitama konkreetsele ankrule (a-la HILTTI... või analoog) ja lisada tugevusklass / keskkonnaklass
Lisada tuleks vähemalt märkus, et paigaldus vastavalt tootejuhendile - ankrut millel puudub toote kasutusjuhend või esitamata on kandevõime ei või kasutatada nt:
https://www.bauhof.ee/et/p/521992/kiila ... 20-zn-25tk
Samuti tuleb projekteerijal hinnata kas nõutavad äärekaugused / vahekaugused jms on ankrul tagatud
Mis puutub nurgikusse - kuna on kujutatud sõlm siis minu eeldus / tõlgendus on see, et sõlmes on 2 nurgikut
Kuid sõlmes on esitamata kõikide kinnitite paigutus jms
Samas pole mulle teada mis staadiumis see projekt on - esitatud info maht sõltub sellest
Siiski - isegi tegemist on PP-ga ning täpsemalt pole nt kinnitite paigutusele viidatud so pole nõutav siis peab ikkagi olema läbi mõeldud kuidas need kinnitid sinna nõuetekohaselt paika saaks
Aga minu hinnangul nii ei saa...
Re: Garaazi lae soojustamine
Postitatud: 15 Juun 2024, 10:52
Postitas vuuk
Siinkohal ma pean kinnitama, et meie seisukohad eelpostituses ühtivad täielikult.
Kas fermi kinnitamise nurgik ei peaks olema valitud selline, et selle ühel (vertikaalsel) poolel oleks näiteks 13 mm auk, läbi selle puuriks fermile augu ja lisaks M12 poldi? Näiteks Würth-il on selliste mõõtudega olemas. Ühel küljel 1 auk 13 mm, teisel küljel 3 auku, kõik 13 mm. Nurgikuid müüakse väga erinevaid, igaüks ei pruugi aukude poolest sobida.
Kas müürilatt peab olema immutatud, nagu näidatud? Immutatud saematerjalil on see probleem, et üldjuhul on see mitte kuiv ja mitte mõõdutäpne. Lisaks ajab tavalise tsingitud (ka kuumtsingitud) metalli korrodeeruma.
Kui keskel on kandev sein, kas selle ja fermi alumise vöö kinnitussõlmes ei peaks kinnitusnurgikud olema - kusjuures samuti mõlemal küljel?
Re: Garaazi lae soojustamine
Postitatud: 15 Juun 2024, 11:33
Postitas xxx111
@ vuuk
Lihtsustatult - kõik see mida küsid peab sisalduma projektis
Ehitaja ei pea selliseid asju "nuputama" - selleks ongi projekt
Aga selle mainin ära, et mina ei näe immutamise vajadust - jah, puit tuleb eraldada kivikonstruktsioonist kuid immutama küll ei pea
Ja ferm saab toetuda siseseinale vaid siis kui sinna suunduvad võrguvardad ja otse lookulikult peab seal olema ka vastav kinnitus
Lihtsalt alumine vöö siseseinale toetuda ei saa - vastupidi, kõik siseseinad tuleb lahendada nii, et sinna peale ferm ei toetuks / jääks fermi deformatsioone võimaldav vahe
SELLEKS, ET OLUKORD MUUTUKS PEAKS, NORMAALNE EHITSETTEVÕTJA TELLIJALT NÕUDMA KA VASTAVAT PROJEKTI JA MITTE MINEMA PAKKUMISELE KUS AINUS KRITEERIUM ON MADAL HIND
Re: Garaazi lae soojustamine
Postitatud: 15 Juun 2024, 12:03
Postitas vuuk
xxx111 kirjutas: 15 Juun 2024, 11:33
....
SELLEKS, ET OLUKORD MUUTUKS PEAKS, NORMAALNE EHITSETTEVÕTJA TELLIJALT NÕUDMA KA VASTAVAT PROJEKTI JA MITTE MINEMA PAKKUMISELE KUS AINUS KRITEERIUM ON MADAL HIND
Põhimõtteliselt nõus. Ja oi kui palju olen sellega muidu häid objekte kaotanud. Ära on need teinud muidugi keegi ikka. Näiteks mehed mujalt, kellel ei mingeid teadmisi kohalikest nõuetest jne. Panevad sillused tagurpidi jne, aga see selleks.... .
Tegelik elu on see, et eramuehituse kliendid suhtuvad projekteerijatesse ja inseneridesse suure möönduse ja eelarvamustega.
Kõike seda olulist ehitamise infot ootavad ja küsivad ehitajalt. Olenemata, kas ehitaja on valitud ülimadala hinnaga poe tagant või siis teisest äärmusest.
Re: Garaazi lae soojustamine
Postitatud: 15 Juun 2024, 12:20
Postitas xxx111
@ vuuk
Ma olen nõus, et väikeettevõtte seisab dilemma ees:
- saada töö / korralikku projekti pole / nuputada ise lahendusi / pakkuda madalam hind
- tahad teha "õigesti" aga tellija pole nõus selle eest maksma
Aga ikkagi - täpselt seni kuni tellija on sõna otseses mõttes ehituserialaselt rumal ja minu kogemuse baasilt on need enamik eramute tellijad ning töövõtja sellega nõus on mitte midagi ei muutu
Seepärast reeglina eramutega ei tegele - lisaks rumalusele on eramute tellijad ka nö "kõige pretensioonikamad" - nt miks nii / miks naa / aga mul sõber tegi nii / aga seal tehti naa jne...
Suuremate objektide ehitajad on ehituserialaselt pädevad ja saavad aru, et ehitamiseks on vaja TP
Ja kui lõpptellijal TP puudub siis tellib ehitaja selle ise - sh lisaülesandega optimeerida kõik eelnevad lahendused
Ja ei tule sealt projekteerijale nö "ettekirjutust", et peab tegema nii
Jah - üksikutel juhtudel jäävadki projekteerija / ehitaja seisukohad erinevaks
Sel juhul on minu poolt vastus lihte - palun väga - tehke nii nagu tahate - aga minuga siin igasugune seos puudub
So sellele lahendusele mina jooniseid oma allkirjaga ei anna
Re: Garaazi lae soojustamine
Postitatud: 17 Juun 2024, 09:10
Postitas Kalvis
Pole nõus esitatud väidetega. Ehitaja peab pädev olema ka ilma konstruktsiooni joonisteta esitatud projekti osas. Kui ei ole siis ära ehita või küsi tellijalt (minu soovitus).
See on Tellija ja ehitaja kokkuleppe küsimus - kes teeb vajadusel konstruktsiooni arvutused. Õigem on Tellija teha - tema käes on rahakott. Põhjus selles - kui tellija palkab spetsialisti siis saavad nad omavahel arutada niikaua kuniks on leidnud kompromissi tellija soovide ja rahakoti vahel. Tellija ei pea olema ehituses pädev, tema töö on leida spetsialistid kes on pädevad ja maksma tarkuse eest.
Kuid võib ka ehitaja. Siin tulebki Tellija osas usaldamatus - tavaliselt ehitaja esitabki talle rahaliselt sobiva kuid võibolla tellijale sobimatu lahenduse. Mul on tihti seda Tellijaga ette tulnud ning ehitaja ja Tellija vahelist arusaamatust lahendama pidanud.
Re: Garaazi lae soojustamine
Postitatud: 17 Juun 2024, 09:22
Postitas xxx111
Ehitaja peab olema pädev ehitama projekti järgi - KÕIK
Ehitaja ei pea olema pädev projekteerima lahendusi
Tellija ei pea olema ehituserialaselt pädev
Sel juhul peab tellija kaasama vastava pädevusega konsultandi
Kui tellija / ehitaja lepivad kokku milleski muus siis on see nende õigus / samas ka vastutus
PS
Viitan ka EVS 932-le kus see temaatika on kajastatud
Re: Garaazi lae soojustamine
Postitatud: 17 Juun 2024, 13:05
Postitas kunn24
Viita muule, kui antud EVS-ile või korista "peab" ära või tee oma teoreem ringi: Kui lepitakse kokku EVS-i järgi tegutsemises, siis peab...
Re: Garaazi lae soojustamine
Postitatud: 17 Juun 2024, 13:16
Postitas xxx111
kunn24 kirjutas: 17 Juun 2024, 13:05
Viita muule, kui antud EVS-ile või korista "peab" ära või tee oma teoreem ringi: Kui lepitakse kokku EVS-i järgi tegutsemises, siis peab...
Mida see siis ütleb...
Kui tellija / ehitaja lepivad kokku milleski muus siis on see nende õigus / samas ka vastutus
Re: Garaazi lae soojustamine
Postitatud: 17 Juun 2024, 13:32
Postitas kunn24
Kui su sõnadevaht olnuks arvuti tööprogramm, jooksnuks see kokku. Ehk su tingimus tuli jutuvada lõpus, kui juba oli sõnum välja paisatud. Hea veel, et ei olnud "delikaatselt" peenes kirjas.
Võiksid proovida selle nurga alt: ehitustöid juhib vastavat kutset omav isik ja teeb neid liigutusi, mida ta pädevus katab. Näiteks
https://www.kutseregister.ee/ctrl/et/St ... a/10718661
Siis saame sinna taha EhS-i alates tema § 7-st.
Sinu mõttelõngas(t) tekib lisaküsimus: kes on üldse sinu arvates ehitaja? Kutsetest lähtuvalt on erinevate tasemetega ja töid võib juhtida alates inseneri või ehituse (töö)juhi kutsest.
Kui ehitaja on ainult nn töömees, siis su jutt nagu klapiks.
Samas kõik see formaalne jura lõpeb, kui on tädi Maalil vaja renoveerida katust ja kohale tuleb isa koos pojaga. Edasi läheb lahti totaalne seaduserikkumine.

Re: Garaazi lae soojustamine
Postitatud: 17 Juun 2024, 14:07
Postitas Kalvis
Miks peaks Tädi Maali juures Isa ja Poeg rikkuma seadust? Kui Tellijale Tädi Maalile sobib nende tase siis on ju kõik OK. Isegi üks mees ja koer oskavad katust pakkudest jääda seaduse piiridesse. Tõsi teinekord oskavad tädi Maali nii hästi paljaks teha, et pole katust ja tädi Maali pensioniraha läks kah minema.
Re: Garaazi lae soojustamine
Postitatud: 17 Juun 2024, 14:23
Postitas xxx111
@ kunn
Ehitaja on töövõtja kelle on vastav pädevus ja kes vastutab vastavalt pädevusele ehitustööde eest
Kes jms on tema alltöövõtjad on tema mure
Samuti on tellija otsus kes osutub töövõtjaks
Kui isa / poeg siis see on tellija otsus ja nii on
Samuti on see tellija vastutus
Sama põhimõte projekteerimisel
Ma tõsiselt ei mõista milles probleem...
Tahad ehitada ilma projektita (või AR EP alusel) - töövõtjaks isa / poeg / koer - kes krt takistab - lase käia...
Re: Garaazi lae soojustamine
Postitatud: 17 Juun 2024, 17:47
Postitas kunn24
Kalvis kirjutas: 17 Juun 2024, 14:07
Miks peaks Tädi Maali juures Isa ja Poeg rikkuma seadust? Kui Tellijale Tädi Maalile sobib nende tase siis on ju kõik OK. Isegi üks mees ja koer oskavad katust pakkudest jääda seaduse piiridesse. Tõsi teinekord oskavad tädi Maali nii hästi paljaks teha, et pole katust ja tädi Maali pensioniraha läks kah minema.
Jutt ei ole tädikese paljakstegemisest, vaid sellest, et kui tulevad isa ja poeg (kuskil külas tavaline), siis neil tõenäoliselt puudub igasugune formaalne õigus teenust pakkuda. Ja keegi ei hakka ka ennast selle jamaga vaevama. Niing kui isa ja poeg on normaalsed mehed, saab katus tehtud (sageli isegi korralikult) ja pole vaja ei projekti, teostusjooniseid, ehitusluba, formaalset õigust üldse ehitada jne.
Re: Garaazi lae soojustamine
Postitatud: 18 Juun 2024, 01:04
Postitas vuuk
Võiks vahepeal vaadata mida ütleb vaidlusaluse küsimuse seisukohalt täna kehtiv Ehitusseadustik:
https://www.riigiteataja.ee/akt/105032015001?leiaKehtiv
@Kalvis, kus on seal öeldud, et ehitamine peab toimuma ehitaja tarkuse järgi või nii, kuidas tehti naabri juures või nii nagu ütles sõber või kasvõi nii, nagu ütles president isiklikult?
Ei ole ju.
Sulaselgelt on öeldud mida:
§ 12. Ehitamisele esitatavad nõuded
(1) Ehitada tuleb ehitusprojekti kohaselt, järgides ehitise ja ehitamise kohta kehtivaid nõudeid.
...
Seega, mis siin vaielda.
Re: Garaazi lae soojustamine
Postitatud: 18 Juun 2024, 10:14
Postitas xxx111
Lisaks kasutaja vuuk kommentaarile: vt ka nõuded ehitusprojektile...
Aga ega põhimõtteliselt keegi midagi keelata saa - teed nii nagu tahad / ise vastutad ka nö "tagajärgede" puhul...
Re: Garaazi lae soojustamine
Postitatud: 18 Juun 2024, 14:09
Postitas Kalvis
kunn24 kirjutas: 17 Juun 2024, 17:47
Jutt ei ole tädikese paljakstegemisest, vaid sellest, et kui tulevad isa ja poeg (kuskil külas tavaline), siis neil tõenäoliselt puudub igasugune formaalne õigus teenust pakkuda. Ja keegi ei hakka ka ennast selle jamaga vaevama. Niing kui isa ja poeg on normaalsed mehed, saab katus tehtud (sageli isegi korralikult) ja pole vaja ei projekti, teostusjooniseid, ehitusluba, formaalset õigust üldse ehitada jne.
said valesti aru.
Isa ja poeg isegi kui must särk ja pliiats on ainus vara - ei ole mingit firmat ega pabereid - võivad alati mistahes moel katust lappida. See ei ole seaduserikkumine. Kuna sa ei toonud välja mis seadusi isa ja poeg rikuvad siis minu teada mitte mingisuguseid.
OÜ mees ja koer tundub 100% seaduslik (mõeldud mingit ehitusfirmat) siis nemad teevad tädikese paljaks. Ma tean kahte juhtu kus tädi Maali tehti nii seaduslikult paljaks, et isegi Politsei keeldus - kõik on seaduslik. Mees kiitis taevani kui hea katuseehitaja on - jah referentslist ja puha ja kõik paberid, võtiis Maali papi (makstud pangaülekandega ja kadus. Politseisse avaldus lükati tagasi kuna kuriteokoosseis puudub ja nemad tsiviilasjadega ei tegele, kuid katust pole ja ettemakstud raha kah mitte. Tädi Maalil on taskus vaid ehitusleping katuse paikamiseks.
Re: Garaazi lae soojustamine
Postitatud: 18 Juun 2024, 14:18
Postitas kunn24
Kuna sa ei toonud välja mis seadusi isa ja poeg rikuvad siis minu teada mitte mingisuguseid.
Ok, kui nii siis nii.
Ma tean kahte juhtu kus tädi Maali tehti nii seaduslikult paljaks, et isegi Politsei keeldus - kõik on seaduslik.
Võmmid on asjade uuurmisega omadega p..s, vt näiteks Õhtulehte (ka kohus ja prokuratuur samuti).
Re: Garaazi lae soojustamine
Postitatud: 19 Juun 2024, 10:32
Postitas Kalvis
Selle viimase juhtumi algusosa toon ära seest see on üsna tüüpne petuviis kuidas tädi Maali seaduslikult rahast tühjaks tehakse. See on universaalne, jah antud juhtumil oligi katuse parendamine teliitud.
Tädi Maali sõlmis leppe firmaga Üks mees ja koer. Lepe oli täiesti tüüpleping - firma kohustub ehitama uue katuse summaga X. Oli isegi ette nähtud Y kuupäevaks katuse valmimine. Ettevõtja kõikjal listis ja referentslist kah puha kui hea ja tubli firma on. Tädi Maali viskas käe alla. Lepe nägi ette poole raha maksmist ettevõtja kontole ja lepingus oli isegi viide, millal tööd algavad kui raha laekunud ja millal täiesti valmis. Lepingus puudus viide leppetrahvile. Tädi Maali maksis raha ära.
Kõik. Rohkem firma ei vastanud. Paar korda õnnestus Maalil telefoni teel kätte saada kus kohe homme lubati töödega alustada, mida muidugi ei juhtunud. Läks siis Maali Politseisse. Seal vaadati asi üle ja tagastati ilma pikemalt mõtlemata - kõik on seaduslik, politsei ei tegele mingi ettevõtja ja tädi Maali vaheliste tsiviiltehingutega. Politseisse andmise hetkel oleks katus pidanud ammu valmis olema. Igaks juhuks ettevõtja likvideeris enda kah kiirelt ja lõi uue OÜ. Koer on nüüd teise nimega, kuigi piltide järgi sama....