2. leht 2-st
Re: Katusehari või mitte?
Postitatud: 21 Mai 2025, 22:26
Postitas EH.INS.
Vastus esimesele viitele
- Post aitab vähendada paindemomenti sarikas - nagu mainitud - mitte palju aga aitab
Hoopis olulisem on see, et aitab ja aitab oluliselt vähendada paindemomenti talas
Süsteem töötab tervikuna - so mingi elemendi eemaldamisel või lisamisel muutuvad kõikide süsteemi elementide sisejõud
- Laetala ei pea olema kahest tükist - vastupidi - parem kui on ühes tükis
Aga siinse foorumi kontekstis ma valin nö halvima võimaliku variandi (nt C18 mitte C24)
Ma ju ei tea mida tegelikult tehakse ja ei tahaks pärast peksa saada, et mida krdi idikas kokku oled keeranud
Re: Katusehari või mitte?
Postitatud: 21 Mai 2025, 23:43
Postitas Ehitusnohik

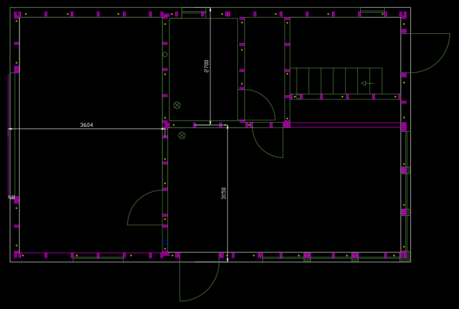
Siiski tänud veelkord kaasamõtlejatele. Kuigi posti teema oli algselt muu, siis härra EH.INS. tähelepanu mujal oli õige. Nimelt aastaid tagasi lammutasin vana abihoone ehk kuuri, ta mõõtmed jäid alla 50m2 ja seal oli näha selgelt kuidas sarikad olid aastate jooksul kõveraks vajunud, eks materjal oli selline ka, et mõni ristlõige kõikus 60 kuni 100 mm ja vahesamm oli 800-1200 mm. Vahelae laagid olid vist 120x120 ja sammuga 600-800 mm ning samamoodi kõveraks vajunud, kuigi sarikate all ei olnud keskel toetust, oli ainult penn, eks vana pahn pööningul andis oma raskusega kaasa. Seetõttu uue hoone joonestamisel ma eeldasin, et kui on tihedama sammuga sarikad siis peaks nagu pidama vastu. Aga noh, kahtlus ikka oli, võib olla tõesti oleks sarikatele 50x200 parem variant olnud, aga seekord oli hilja, materjal tellitud ja käes. Panen ühe joonise põhiplaanist, usun, et vaheseinad mingil määral leevendavad koormust, juhul kui sarikate all on toed. Loomulikult pööning on mõeldud panipaigana. Joonisel paremal poolel on roosa joontega tala omakorda laagidele, sest kõrval asub trepp ja osad laagid saavad keskelt tuge. Vasakul poolel tala ei saanud panna, sest tõstukuks oma parameetritega võtab lae all ruumi ära. Keskel asuv on kandev sein ja risti sein samuti, ülejäänud 3 seina on vaheseinad.
Re: Katusehari või mitte?
Postitatud: 21 Mai 2025, 23:56
Postitas EH.INS.
Ma omast arust tegin puust ja punaseks
See skeem mille ma Sulle andsin tähendab 50x150 materjali ja rohkem pole vaja
Võiks väiksemgi olla
Juures olid ka eeldused mille alusel seda väidan
Ja see skeem ei eelda mingeid sisemisi kandeseinu - toetus mõeldud vaid välisseintele
Lisaks oli mh juttu ka sellest "kui suur on veel varu"
Lihtsamini selgitada ei oska
Re: Katusehari või mitte?
Postitatud: 22 Mai 2025, 00:01
Postitas Ehitusnohik
Ära muretse, tegid selgeks küll.

Re: Katusehari või mitte?
Postitatud: 22 Mai 2025, 00:27
Postitas EH.INS.
Ehitusnohik kirjutas: 22 Mai 2025, 00:01
Ära muretse, tegid selgeks küll.
Väga tore - näed, saab küll
Siin ikka vingutakse ja tahtmata kedagi solvata vms aetakse ikka päris lolli juttu vahel ja siis leitakse sinna juurde mingid eriti lollid argumendid ka veel
Lisana:
Oleks selliseid inimesi siin rohkem (mõtlen suhtumist - mitte segi aja suhtlemisega) siis saaks rohkem inimesi oma probleemidele abi ka
OLEKS MINU TELLIJAD KÕIK SELLISED - elu nagu lill
Aga kipuvad vahel olema sellised nagu eespool mainitud (vastavat konsultanti kaasamata)
Aga enamasti lõpuks see konsultant kaasatakse ja siis ka OK
Ja kui ei kaasata konsultanti ja jääb oma jura juurde - see asi jääb minu poolt tegemata koos soovitusega leida keegi teine
Väljendid, mina ma siin foorumis kasutan on pisut vürtsikad - lootuses, et ehk jõuab paremini kohale
Ja mis seal salata - vahel läheb ka pisut teisti ja saab ka ilmselt üle piiri mindud
Re: Katusehari või mitte?
Postitatud: 22 Mai 2025, 09:20
Postitas T25
Igaks juhuks loen teemaalgatajale veel sõnad peale, et EH.INsi poolt pakutud lahendus kehtib õigelt koostatud sõlmede korral. Kui sa paari kipsi kruviga need vertikaalsed toed kinnitad, siis vajub kogu kompott laiali.
Nii et rääkige see sõlmede asi kindlasti omavahel läbi.
Re: Katusehari või mitte?
Postitatud: 22 Mai 2025, 12:10
Postitas EH.INS.
Mina jälle lisaks, et ära
LIIGA TÕSISELT (mis ei tähenda seda, et võid täiesti suvaliselt teha) võta ja viitan
Võtame puidu
On nii materjali kui koormuse osavarutegurid mida omakorda mõjutavad nii materjali kasutusklass kui koormuse iseloom (nt lühiajaline / keskkestev / pikaajaline)
Liigselt keeruliseks asja ajamata oletame, et meil on kasutusklass 2 ja koormus keskkestev ja see on lumekoormus
- Materjali osavarutegur 1,3
- Materjali kasutusklass 2 / Koormus keskkestev - tegur 0,8
- Koormuse osavarutegur 1,5
Ja hakkame nüüd arvutama kui palju mul "varu" on
NORMATIIVSED VÄÄRTUSED vs ARVUTUSLIKUD VÄÄRTUSED
- Materjal 0,8/1,3 peaks justkui olema ca 60% - siin tuleb tähele panna, et materjali parameetritest kasutame ära 60% - nö üle jääb 40%
- Koormus 1,5/1 peaks justkui olema ca 50%
No mida nüüd arvata???
Ja lisan, et selleks need tegurid ongi
Ja kui just objektil totaalset paska kokku ei keerata siis just sellised vead need tegurid katavad
LISANA
Lisan, et arvutused on teostatud puidu klassiga C18 / konstruktsioonipuit tavaliselt C24
Tee pisike jagamistehe ja vt kui palju suhteliselt muutuks tulemused (mina nagu näen, et kandevõime suureneks 1,33 korda)
See viitab sellele, et kui mis iganes põhjusel ei kasutata projektikohast materjali või on materjalil defektid (pole mõeldud paska) siis on ka see arvesse võetud