1. leht 2-st
Lõõride suurused?
Postitatud: 31 Mär 2014, 08:32
Postitas Robi 1
Ma pean silmas just laskuvate lõõridega ahju lõõri laiust. Võtame näiteks umbes 1mx1m suurune ahi, milliseid kogemusi on andnud erinevad laiused? Kuigi ahju suurus siin olulist rolli ei mängi. Minul on lõõrid jäänud keskmiselt 8...10 cm. Tean, et osad teevad palju laiemaid. Mida laiem on lõõr, seda aeglasemalt suitsugaasid liiguvad ja sellest ka ahju soojenemine...jne.
Jätakse seekord selle EN:::: kiitmise teiste teemade tarvis

Re: Lõõride suurused?
Postitatud: 31 Mär 2014, 10:34
Postitas motamees
Robi 1 kirjutas:... Minul on lõõrid jäänud keskmiselt 8...10 cm...
Minul 7-8 cm.
Re: Lõõride suurused?
Postitatud: 31 Mär 2014, 16:27
Postitas Robi 1
Aga kas on vahet märgata kui on kasutatud erinevaid mõõte?
Re: Lõõride suurused?
Postitatud: 31 Mär 2014, 21:55
Postitas raga
7,5-11 cm...7,5 on olnud küll pigem laskuva lõpp. Vahet pole saanud väga pädevalt katsetada. Eks mida kitsam lõõr, seda kuumem temp kogu lõõris, kuid takistuseks on pigem liigne kinnipoomine, ehk siis ajab suitsu sisse jne.Suuremas lõõris lahjem temp...süsteem tuimem jne või ei ole nii?
Re: Lõõride suurused?
Postitatud: 31 Mär 2014, 22:13
Postitas kaminahi
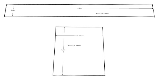
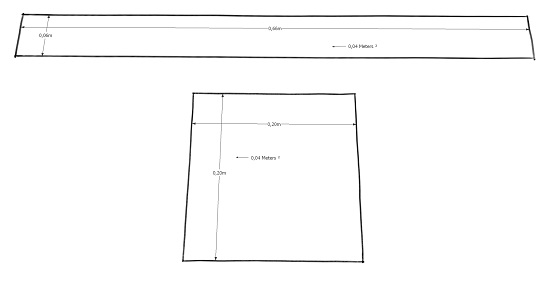
Kui on üks lõõr 20 x 20 = 400 cm2 ja teine 6 x 660= samuti 400 cm2 siis kui palju on nende lõõride jooksva meetri sisepinadlade erinevus.
Re: Lõõride suurused?
Postitatud: 31 Mär 2014, 22:31
Postitas kaminahi

- viielõõriline lõõr.jpg (20.98 KiB) Vaadatud 5208 korda
Kui ahjus on sellistest, 20 cm kõrgustest elementidest 5 elemendiline, 1 meetri kõrgune lõõristik, siis mis on lõõristiku arvutuslik pikkus.
Re: Lõõride suurused?
Postitatud: 01 Apr 2014, 08:16
Postitas Robi 1
kaminahi kirjutas:Kui on üks lõõr 20 x 20 = 400 cm2 ja teine 6 x 660= samuti 400 cm2 siis kui palju on nende lõõride jooksva meetri sisepinadlade erinevus.
...................
Kuna kõige kuumem on lõõri keskel, siis 20x20 puhul enamus soojust lihtsalt lipsab kiiruga läbi aga kitsa lõõriga on kokkupuude seinadele tunduvalt suurem ja seega ka soojuse ülekanne suurem...seda nüüd loogiliselt mõeldes.
Re: Lõõride suurused?
Postitatud: 01 Apr 2014, 08:29
Postitas kaminahi
Soojus juhitakse lõõri sisepinna kaudu kivisse. Kuidas mõjutab seda sama ristlõikega lõõride sisepinna erinev pindala.
Re: Lõõride suurused?
Postitatud: 01 Apr 2014, 08:42
Postitas kaminahi

- lõõrid -2 tk.jpg (13.64 KiB) Vaadatud 5138 korda
Re: Lõõride suurused?
Postitatud: 01 Apr 2014, 08:49
Postitas Robi 1
Seega, minu praktika ütleb, et see kitsas on kasulikum ( rääkides laskuvatest lõõridest).
Re: Lõõride suurused?
Postitatud: 01 Apr 2014, 08:57
Postitas kaminahi
Väidetakse samas, et paralleersete lõõride puhl ei ole kahe paralleelse, 2 meetrise lõõri pikkus mitte neli vaid kolm meetrit.
Samas, selline viie lõõriga lõõrimoodustis arvutatakse samal maal ikka viiekorselt ja meetrise moodustise lõõripikkus on tehase andmeil ikka viis, mitte üks meeter.
Kui ühe lõõri ühe meetri sisepindala on o,8 m2 ja teisel, sama ristlõikega ühe meetri lõõri sisepindala on 1,45 m2 siis kummas on soojusjuhtivuse pind suurem.
Re: Lõõride suurused?
Postitatud: 01 Apr 2014, 09:02
Postitas Robi 1
Munuarust muu polegi oluline kui tegelik sisepindala suurus.
Re: Lõõride suurused?
Postitatud: 01 Apr 2014, 09:03
Postitas kaminahi
Mida teised arvavad.
Re: Lõõride suurused?
Postitatud: 01 Apr 2014, 09:23
Postitas JJR
Robi 1 kirjutas:Seega, minu praktika ütleb, et see kitsas on kasulikum ( rääkides laskuvatest lõõridest).
Robi1, kaminahi, mul tekkis kohe küsimus, kuidas lahendatakse kitsa (lapiku ristlõikega) lõõri puhul suunatud ja ühtlane gaaside liikumine sedasi, et soojus ühtlaselt jaotuks? Või on siis parem see, kui gaasid rohkem seguneksid ja aeglasemalt liiguksid?
Kas koldest tuleva lõõri ristlõike mõlemad küljed on suuremad, kui näites küsitud lõõri omad? Kui jah, siis all olev pole probleem ja gaas peaks kiiremini liikuma hakkama ning suurt segunemist ei toimi, samas ei tohi gaas väga palju kiiremini liikuma hakata, muidu tekib turbulentside tõttu liiga suur takistus ja võib sisse ajama hakata

<<--- Parandage mind, kui see vale on.
Kood: Vali kõik
Teades, et vesi torus liigub kõige kiiremini toru ristlõike keskel ja servades tegelikult väga aeglaselt, siis arvan, et sama on ka gaasidega.
Automaailmast võiks ka tuua mõne näite, kus jahutusradiaatori õhku suunatakse ribidega radiaatori sees, et õhk õhtlaselt jaotuks kogu radiaatori ulatuses ning saaks ära anda võimalikult palju soojust.
http://www.treadstoneperformance.com/~treadstone/prod_imgs/img-1305-0-large.jpg
kaminahi kirjutas:viielõõriline lõõr.jpg
Kui ahjus on sellistest, 20 cm kõrgustest elementidest 5 elemendiline, 1 meetri kõrgune lõõristik, siis mis on lõõristiku arvutuslik pikkus.
Kaminahju poolt hea küsimus. Arvestan hetkel seda, et ringi sees olevad toed ei kanna soojust välja antud süsteemist. Loeme lihtsuse mõttes iga lõõri ristlõike võrdkülgseks kolmnurgaks, siis viie kolmnurga puhul saame 5x 1/3 pikkust, seega 5 x 0,3(3)m = 1,6(6)m.
Re: Lõõride suurused?
Postitatud: 01 Apr 2014, 09:32
Postitas kaminahi
JJR kirjutas:
Kas koldest tuleva lõõri ristlõike mõlemad küljed on suuremad, kui näites küsitud lõõri omad? Kui jah, siis all olev pole probleem ja gaas peaks kiiremini liikuma hakkama ning suurt segunemist ei toimi, samas ei tohi gaas väga palju kiiremini liikuma hakata, muidu tekib turbulentside tõttu liiga suur takistus ja võib sisse ajama hakata

<<--- Parandage mind, kui see vale on.
.
Koldest väljuva lõõri ristlõige on siin ca 120 x 360.
Suitsuõõrid on siin näites sama ristlõikega ja paralleelseid on kaks ehk ka ristlõige on kaks korda suurem ja ma ei usu, et gaas peaks nendes kiiremini liikuma, ikka aeglasemalt, kuna ka lõõri sisepinna takistus mõjub rohkem.
JJR kirjutas:]
Kaminahju poolt hea küsimus. Arvestan hetkel seda, et ringi sees olevad toed ei kanna soojust välja antud süsteemist. Loeme lihtsuse mõttes iga lõõri ristlõike võrdkülgseks kolmnurgaks, siis viie kolmnurga puhul saame 5x 1/3 pikkust, seega 5 x 0,3(3)m = 1,6(6)m.
Küsimuses rohkem rõhk soojusalvestusele, selle pinna ja lõõripikkuse suurustele. Välimisel pinnal on juba ka lõõri sisepindade kaudu salvestunud soojuse eraldumine.
Re: Lõõride suurused?
Postitatud: 01 Apr 2014, 11:31
Postitas JJR
kaminahi kirjutas:JJR kirjutas:
Kaminahju poolt hea küsimus. Arvestan hetkel seda, et ringi sees olevad toed ei kanna soojust välja antud süsteemist. Loeme lihtsuse mõttes iga lõõri ristlõike võrdkülgseks kolmnurgaks, siis viie kolmnurga puhul saame 5x 1/3 pikkust, seega 5 x 0,3(3)m = 1,6(6)m.
Küsimuses rohkem rõhk soojusalvestusele, selle pinna ja lõõripikkuse suurustele. Välimisel pinnal on juba soojuse eraldumine.
Siin jääb mul teadmistest natuke puudu, aga proovin veel korra.
Vaatame salvestuse efektiivsuse poole pealt. Loeme lihtsuse mõttes iga lõõri ristlõike võrdkülgseks kolmnurgaks. Antud konfiguratsioonis on igal lõõril 2 külge, mis võib lugeda n-ö unikaalseks. Teisiti öeldes loeme seinad kokku. Neid on kokku 10. Kui nüüd tuleb arvestada tavalise olukorraga ning võrdluse mõttes see lõõrisüsteem teha võrdeliseks nelja seinaga lõõriks, siis 10/4 = 2,5. Praeguse püsituse juures ka siis 2,5m efektiivset lõõri. Ristlõige on ruut küljepikkusega a (üks kolmnurga haar).
Kui nüüd arvestada kogupinda, siis vahet ei ole, eeldusel, et kolmnurga haar = ruudu külg = a.
Kui "sektorlõõri" ja ruutlõõri pikkusel takistust ei ole s.t. mõlemad lõõrid on kasutuses kogu pikkuses (kas see 2,5m pikk lõõr, mille ma arvutuse tulemusena sain ei ole juppideks jaotatud) ja eraldavad väliskülgedelt soojust, siis antud "sektorlõõr" peaks sooja 2x kauem hoidma ja seda ka 2x aeglasemalt välja andma, sest välispind on 2x väiksem.
Kui arvestame, et lõõri välispinnast eraldub soojus, kas siis kesmine osa, mis on kuumem ja rohkem paisunud ei hakka pragusid tekitama lõõrisüsteemi välisseina?!
Selline mõtlemine ajab

, aga õnneks mul sellega probleeme pole
__________________
Tehtud arvutused ja loogiline arutlus on minu enda tehtud ja võib aja jooksul muutuda ning ei pruugi olla mitte üheski osas õige

Re: Lõõride suurused?
Postitatud: 01 Apr 2014, 12:13
Postitas kaminahi

- Kachelofen lõõr.jpg (7.15 KiB) Vaadatud 5040 korda
Arutame seda edaspid kindlasti edasi ja vaataks võrdluseks ka seda eeskujuks seatavat lõõrisüsteemi, kus ruudukujulisest lõõrist neljandik on lõõri välspind.
Re: Lõõride suurused?
Postitatud: 01 Apr 2014, 19:00
Postitas Robi 1
Sellel eeskujul on alumine suur osa lihtsalt külm ja ei taha seal keegi istuda. Huvitav...ja tagant ka vastu seina...
Re: Lõõride suurused?
Postitatud: 01 Apr 2014, 22:55
Postitas kaminahi
Robi 1 kirjutas:Sellel eeskujul on alumine suur osa lihtsalt külm ja ei taha seal keegi istuda. Huvitav...ja tagant ka vastu seina...
Veel mõni aasta tagasi võideldi siin 0.9 x 1,16 põhjaga ahju vastu kui kohutav põrandapinna rõõvel.
Aga ikka lõõridest. Mis eesmärgil selline ahi selliste lõõridega on ehitatud? JJR juba tegi siin oma arvamuse aga kas on ka keegi, kes suudab veenda muus?
Kui arvestada selle ahjumaa traditsioone, siis on see igati tavapärane ja uhke ahjuke.
Re: Lõõride suurused?
Postitatud: 01 Apr 2014, 23:05
Postitas kaminahi
JJR kirjutas:
__________________
Tehtud arvutused ja loogiline arutlus on minu enda tehtud ja võib aja jooksul muutuda ning ei pruugi olla mitte üheski osas õige

Sul on loogiline jutt aga sellega sa ahjusi ei müüks

Re: Lõõride suurused?
Postitatud: 02 Apr 2014, 07:41
Postitas Robi 1
Ei tea mida ise silmas pead aga lahenduse eelis on see, et soojus tuuakse madalale maha ...aga samas on lõõrid sama paksu seinaga ja ka sama suurusega. Kuumem lõõr võiks olla avaram aga paksema seinaga, siis ka ahju ühtlasem soojenemine ja paisumine. Aga kui ta sedasi toimib...siis rahu temaga.
Re: Lõõride suurused?
Postitatud: 02 Apr 2014, 08:18
Postitas kaminahi
Ma mõtlen lõõri välipinna suhet, et neljast küljest üks on see, mille kaudu soojus tuppa pääseb. Soome tüüpi toahjul on see suhe suurem, oluliselt. ja lõõride sisepindala ka suhteliselt suurem võrreldes seda lõõri ristlõikega. Mida on rohkem vaja, lõõri ristlõiget või soojuse salvestuseks vajalikku lõõripinda. Tähtis tegur on ka lõõride "voolutakistus".
Re: Lõõride suurused?
Postitatud: 02 Apr 2014, 08:32
Postitas Robi 1
Seda minagi imestasin, et tagumine sein on lihtsalt kinni... Aga kas keegi normaalne inimene üldse tahab kahelda selles, et Soome, pikkade kogemustega, karmi kliimaga ahjumaaahjudel saaks olla erilist vastast? EI...ma olen veendunud, et sealsed ahjud on pikkade aastate jooksul juba tõestanud end ja kes seda näha ja kuulata ei taha, see külmetagu edasi. Muidugi... on olemas ka teisi häid lahendusi,,,aga see ei tee laskuvate lõõridega Soomeahju külmemaks. Tähtis on mõelda seda, et meie kliima on karm ja me vajame sooja...mitte tilulilu!
Re: Lõõride suurused?
Postitatud: 02 Apr 2014, 08:41
Postitas kaminahi
Ilu peab ka füüsikaliselt ilu olema, siis on ta eriti ilu.
Re: Lõõride suurused?
Postitatud: 02 Apr 2014, 19:08
Postitas JJR
Robi 1 kirjutas:Sellel eeskujul on alumine suur osa lihtsalt külm ja ei taha seal keegi istuda. Huvitav...ja tagant ka vastu seina...
Robi, isikulult arvan, et kui ülemises postituses toodud ahju iga päev köetakse, siis läheb ka see istumise pink piisavalt soojaks ja seda just soojuskiirguse tõttu. Eks midagi kandub ka lõõrist üle, aga see on vast väiksem osa. <<--- Võib mind parandada, kui eksin. <<--- Keegi, kellel kogemust on sellise ahjuga võiks teada anda, kas ka selline pink ikka soojaks läheb, mul ju ainult arvamus!
Pole ise sellisel ega ühelgi teisel lesol istunud, aga arvan, et parem on istuda soojal (~30-40 C) pingil, kui sellisel, millega ka ruumi köetakse. Kuskilt on meelde jäänud, et ahju pinnatemeperatuur kütmiseks võiks olla 60+ C. Selline istumisalune on piisavalt soe, et muna praadida ja väga kaua seal istuda vast ei taha. Muidugi saaks lambanaha või muu sarnase pehme asja vahele panna, aga kas siis see enam mõistlik on?
Jah, kunagi magati ka ahjude peal ja nahad oli all, aga kas keegi teab ka kui soojaks see magamise koht ahjul läks?
Nüüd, kui pink on mõnepäevase kütmisega parajalt soe, siis on seal hea istuda ja kui on seljale rohkem sooja vaja, siis saab selle ka vastu kuumemat lõõristiku osa toetada
___________________
Mis aga puutub lõõride ehitusse, et ainult 1 külg on välisseinas, kust soojust eraldub, siis arvan, et see on sellepärast nii, et lõõristik ka piisavalt sooja salvestaks, kuid annaks seda välja piisavalt pika aja jooksul. Eks tagumised kivid ja lõõride vahekivid ole sooja salvestamiseks.
Ma ei tea kas sellises kohas on mõistlik kasutada erineva paksusega kivisid - õhemiad välimises seinas ning paksemaid tagumises seinas ja lõõride vahel, et soe kiiremini välja tuleks, aga oleks ka lõõril piisavalt massi, et sooja salvestada.
_____________________
kaminahi kirjutas:Ma mõtlen lõõri välipinna suhet, et neljast küljest üks on see, mille kaudu soojus tuppa pääseb. Soome tüüpi toahjul on see suhe suurem, oluliselt. ja lõõride sisepindala ka suhteliselt suurem võrreldes seda lõõri ristlõikega. Mida on rohkem vaja, lõõri ristlõiget või soojuse salvestuseks vajalikku lõõripinda. Tähtis tegur on ka lõõride "voolutakistus".
Eks mõlemat ole vaja parajas koguses. Siin tuleks seda arvestada, et õhk on parim isolaator. Eriti veel selline õhk, mis seisab. Lapiku ristlõikega lõõr annab suurema kontaktpinna ning kui see liiga kitsaks ajada, siis ei käi sealt enam gaasid läbi.
kaminahi kirjutas:Kui on üks lõõr 20 x 20 = 400 cm2 ja teine 6 x 660= samuti 400 cm2 siis kui palju on nende lõõride jooksva meetri sisepinadlade erinevus.
Pean siin Sind parandama. 6 x 66 = ~400 cm2 Üks 0 ülearu. Küll saan aru, mida mõtled ja nõustun Robi1 väitega.
Erinevus on 1,8x lapiku lõõri kasuks.
Robi 1 kirjutas:kaminahi kirjutas:Kui on üks lõõr 20 x 20 = 400 cm2 ja teine 6 x 660= samuti 400 cm2 siis kui palju on nende lõõride jooksva meetri sisepinadlade erinevus.
...................
Kuna kõige kuumem on lõõri keskel, siis 20x20 puhul enamus soojust lihtsalt lipsab kiiruga läbi aga kitsa lõõriga on kokkupuude seinadele tunduvalt suurem ja seega ka soojuse ülekanne suurem...seda nüüd loogiliselt mõeldes.