1. leht 1-st
Eramaja ahiküte
Postitatud: 17 Jaan 2014, 09:33
Postitas and777
Tere
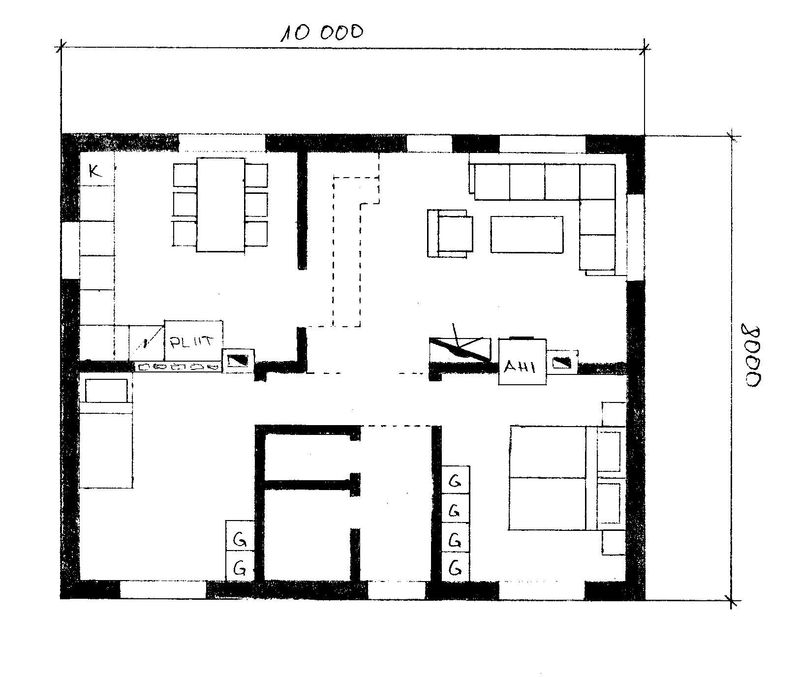
Plaan eramajas kasutada ahikütet. Tegin ka väikse visandi, milline asi välja peaks nägema.

- plaan
- kk.jpg (66.04 KiB) Vaadatud 5708 korda
Kööki ja üht magamistuba kütaks pliit ja soemüür, elutuba ja teist magamistuba kütaks ahi. Ruutmeetreid esimesel korrusel 65-80 (olenevalt maja mõõtudest).
Ehk mõni kogemustega pottsepp kiidaks või laidaks seda süsteemi, kas on sellisel küttelahendusel mõtet või peaks teistele alternatiividele mõtlema.
Ja mis suurusjärguga peaksin arvestama, kui lasen ehitada pliidi, soemüüri, ahju ja 2 korstent (punasest kivist).
Aitäh.
Re: Eramaja ahiküte
Postitatud: 17 Jaan 2014, 10:01
Postitas ErgoK
Plaan iseenesest on üsna mõistlik, aga rohkem tagasisidet saaksite ehk, kui postitaksite selle siia teemasse :
viewforum.php?f=1
Tellisahju, pliidi ja soojamüüri ehitamisel peaksite arvestama suurusjärguga vähemalt 5000.-eurot.
Korstnaga see teema, et ehk piisab ühest korstnast. Korstna hinda võiks ca. 100-120.-eurot meetri kohta arvestada.
Re: Eramaja ahiküte
Postitatud: 17 Jaan 2014, 10:41
Postitas and777
Ehk mõni moderaator saab teema ümber tõsta "Ahjud, kaminad, korstnad" alafoorumisse.
Re: Eramaja ahiküte
Postitatud: 17 Jaan 2014, 18:19
Postitas ahjumees
Ahi ja pliit kuskil 4000eurot oleneb millist ahjuust kasutada. Korstnal kuskil 120eurot meeter.
Re: Eramaja ahiküte
Postitatud: 17 Jaan 2014, 18:30
Postitas Koit
ErgoK ja ahjumees- kas need summad on tööraha, või töö koos materjaaliga?
Kui töö koos materjaaliga, siis võtaks teid kohe tööle.
Koit
Re: Eramaja ahiküte
Postitatud: 17 Jaan 2014, 19:01
Postitas rokikas
Koit kirjutas:kas need summad on tööraha
Ja siis imestatakse miks soojuspumbad võidukäiku teevad!

Re: Eramaja ahiküte
Postitatud: 17 Jaan 2014, 19:37
Postitas ahjumees
pigem ikka tervik lahendus
Koit kirjutas:ErgoK ja ahjumees- kas need summad on tööraha, või töö koos materjaaliga?
Kui töö koos materjaaliga, siis võtaks teid kohe tööle.
Koit
Re: Eramaja ahiküte
Postitatud: 17 Jaan 2014, 22:20
Postitas and777
Aga selline lahendus ja planeering on otstarbekas ja toimiv? Kas pliit soemüüriga ja ahi kütaks esimese korruse ca 80m2 ära?
Kas ahju saab/võib korstna külge ehitada või peab neil vahe sees olema?
Kui ehitustöödega sinapeal ja kellu käes püsib võib korstnad ise laduda ja küttekehad lasta spetsialistil teha?
Re: Eramaja ahiküte
Postitatud: 17 Jaan 2014, 23:41
Postitas motamees
and777 kirjutas:...Kas ahju saab/võib korstna külge ehitada või peab neil vahe sees olema?...
Kindlasti vahe sisse.
Sinu küttekehade asetusel pole häda midagi. Küttevõimsuse määrab ära maja soojustus rohkem, kui ruutmeetrid.
Re: Eramaja ahiküte
Postitatud: 25 Veebr 2014, 22:04
Postitas kaminamees
Kui oled õppimisvõimeline inimene võid ise teha nii korstnad kui ka ahjud. Sellega säästatd päris palju. Hea on ka läbida mõni pottsepa koolitus. Endale tegemiseks ei ole sul vaja tingimatta kvalifikatsiooni paberit.
Re: Eramaja ahiküte
Postitatud: 26 Veebr 2014, 08:27
Postitas amatöör1
Ei ole ma mingi ehitusspets aga omal esimesel korrusel pea samasugune lahendus. Maja soojustus ei ole ideaalne. Talve külmadega on pliita soojamüüri taguses toas sisetemperatuuri kõikumine üsna suur. Tuba ise natuke suurem kui siin olevatest mõõtudest võimalik välja lugeda. Kütan pliiti ka ainult õhtul ning soojamüüri salvestus siiski väike, kui hommikul saaks ka tule pliita alla oleks kindlasti asi parem aga kes ikka viitsib enne tööleminekut sellega jännata. Uue,hästi soojustatud maja korral ja kui veel vaheuks lahti siis vast pole see nii häiriv.
Re: Eramaja ahiküte
Postitatud: 01 Mär 2014, 11:48
Postitas maunoahjud
Koit kirjutas: Kui töö koos materjaaliga, siis võtaks teid kohe tööle.
Koit
Mina neid küll ei julgeks tööle võtta! Kui inimene oma tööd ei väärtusta, siis on ikka mingi kaugemale ulatuv põhjus selleks....äkki kvaliteet?! Mul ei ole mingit raskust tööd teha, kui korrutaksin need summad julgelt 1,5-ga.
Lugupidamisega
Re: Eramaja ahiküte
Postitatud: 01 Mär 2014, 12:43
Postitas stupiduser
Nagu Amatöör1 kirjutas, saab soemüüriga köetavas toas ja köögis temperatuuride kõikumine olema väga suur.
Magamistoaks see ruum sellisel juhul kindlasti ei sobiks.
Minu arvates oleks otstarbekas selle toa ja köögi temperatuurikõikumiste vähendamiseks (väike) salvestav ahi.
Muuseas, vene ajal oli kolmetoalise ca 65 m2 maja tüüpprojekt just sellise totra ühe toa soemüüriga kütmise lahendusega. Point võis olla selles, et eeldati praktiliselt kogu päeva tule pliidi all hoidmist

Re: Eramaja ahiküte
Postitatud: 01 Mär 2014, 12:58
Postitas madis64
stupiduser kirjutas:Muuseas, vene ajal oli kolmetoalise ca 65 m2 maja tüüpprojekt just sellise totra ühe toa soemüüriga kütmise lahendusega. Point võis olla selles, et eeldati praktiliselt kogu päeva tule pliidi all hoidmist

Kasutati seda lahendust ka möödunud sajandi 30-tel, meie majas olevat seda tuba nimetatud "teenijatoaks".