Aku paak soojuspumbale
Aku paak soojuspumbale
Lugemata postitus Postitas virgats »
Re: Aku paak soojuspumbale
Lugemata postitus Postitas keemik »
-
ffs
- külaline
Re: Aku paak soojuspumbale
Lugemata postitus Postitas ffs »
-
ffs
- külaline
Re: Aku paak soojuspumbale
Lugemata postitus Postitas ffs »
Re: Aku paak soojuspumbale
Lugemata postitus Postitas virgats »
Aga maasoojuspumbal on öösel sama kasutegur...
-
officer
- Ehitusspets

- Postitusi: 500
- Liitunud: 19 Jaan 2014, 09:19
- On tänanud: 19 korda
- On tänatud: 5 korda
Re: Aku paak soojuspumbale
Lugemata postitus Postitas officer »
Tegemist Õ/V pumbaga.
Re: Aku paak soojuspumbale
Lugemata postitus Postitas virgats »
Kas praeguste elektrihindade juures juba on mõistlikum öösiti akupaaki soojendada ja päeval ÕV-soojuspump välja lülitada?
-
Ac457765
- Ehitusguru

- Postitusi: 988
- Liitunud: 16 Jaan 2021, 22:47
- On tänanud: 7 korda
- On tänatud: 33 korda
Re: Aku paak soojuspumbale
Lugemata postitus Postitas Ac457765 »
-
Coolhouse
- Ehitusveteran

- Postitusi: 1076
- Liitunud: 12 Sept 2008, 14:19
- On tänanud: 1 korda
- On tänatud: 30 korda
Re: Aku paak soojuspumbale
Lugemata postitus Postitas Coolhouse »
Ära päris välja lülita st pinge jäta peale kuid nupust lülita välja (standby ehk ooteasend). Muidu võib juhtuda et "järgmisel hommikul enam ei mäleta mis õhtul juhtus" - mälu auk.virgats kirjutas: 07 Sept 2022, 17:39 Taaselustaks vana teema.
Kas praeguste elektrihindade juures juba on mõistlikum öösiti akupaaki soojendada ja päeval ÕV-soojuspump välja lülitada?
Loomulikult võid kütta siis kui elekter soodsama hinnaga ja kallima hinnaga mitte kütta, eriti sügisel ja kevadel.
Ise pead otsustama millal ja palju kütad, mõttetu on arvata et mõni tark, robot jne oskaks arvata kuidas sinu maja kütta.
Muidugi kui keegi suudab soovitada mõnda börsihinda järgivat seadet siis oleks huvitav. Ehk algoritm peaks siis näiteks arvestama iga maja seadistust (hilistumine, võimalik küttegraafik), homne elektrihind, nt nelja päeva ilmateade, tuule suund ning tugevus.
Müük, hooldus. info@coolhouse.ee
-
Kalvis
- Ehituspenskar

- Postitusi: 11512
- Liitunud: 03 Veebr 2008, 14:02
- On tänanud: 4 korda
- On tänatud: 331 korda
Re: Aku paak soojuspumbale
Lugemata postitus Postitas Kalvis »
-
martitam
- Uus kasutaja

- Postitusi: 16
- Liitunud: 20 Okt 2018, 00:05
- On tänanud: 1 korda
- On tänatud: 1 korda
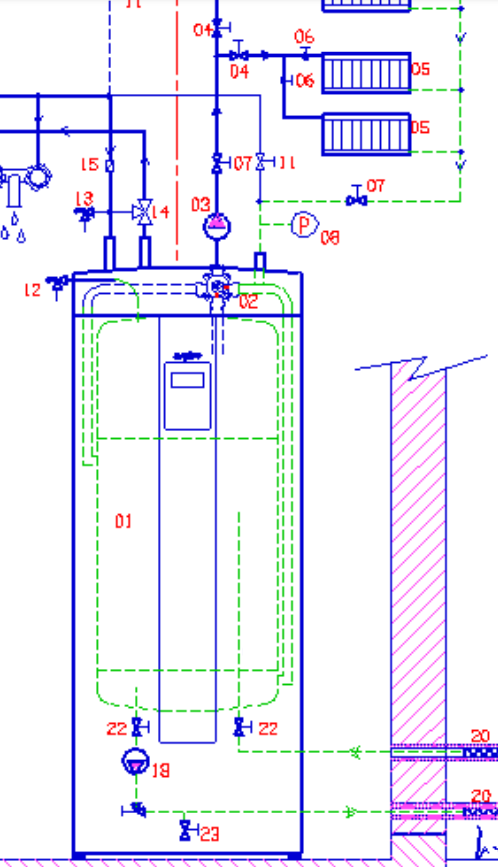
Õhkvesi soojuspump akupaak mahupaak
Lugemata postitus Postitas martitam »
Siseosa koosneb 200L (aku)paak, 4T segamissõlm, automaatika.
Mõned aastad tagasi paigaldati split ÕV, mille siseosa ühendati SANYO mahupaagiga. Soojuspump kütab vett SANYO akupaaki ja SANYO automaatika saadab sealt küttevee põrandasse edasi vastavalt vajadusele.
Kuuris vedeleb üks 200L boiler, mille mõtlesin kuskile vahele pookida ja panna ÕV elektrihinna järgi tööle. Kuna asjad tasuta käes, siis ilmselt mingi säästu sellest 200L lisamahust ikka saaks.
Küsimus on nüüd selles, et kuhu oleks kõige mõistlikum see vana boiler mahupaagina jadamisi vahele pookida?
Mõned pildid Sanyo siseosa kohta:
- Hiid
- Ehituspenskar

- Postitusi: 4432
- Liitunud: 30 Jaan 2005, 12:46
- Asukoht: Tartu
- On tänanud: 110 korda
- On tänatud: 87 korda
Re: Aku paak soojuspumbale
Lugemata postitus Postitas Hiid »
Mis effekti sa saavutad, kui viskad supipotti lusikatäie kuuma vett?
-
Coolhouse
- Ehitusveteran

- Postitusi: 1076
- Liitunud: 12 Sept 2008, 14:19
- On tänanud: 1 korda
- On tänatud: 30 korda
Re: Aku paak soojuspumbale
Lugemata postitus Postitas Coolhouse »
Kütad vee paagis ca 50C ja siis segad jahedama veega et saada soojust põrandaküttele.
Enam nii ei tehta. Sul pole mõtet teha soojuspumbaga soojemat vett kui 30..35 C ja sealt tulebki kokkuhoid. Soojuspump peab vähem pingutama ning kasutegur tuleb ca 20% parem.
Tänapäeva õhk-vesi soojuspumbad on võimalusega kütta maja ja vajadusel eraldi paagis tarbevett.
Selleks on soojuspumbas olemas või lisatakse ümberlülitav elektriline ventiil. Nt ventiil lülib 15 minutiks ringi ja selle aja jooksul soojendatakse tarbevee paaki 50? kraadini.
Siin praegu võib see Sanyo paak jääda tarbeveele.
Kütteringi võiksid lisada mingi puhverpaagi jne kuid mõistlikum oleks omandada teadmisi koolis kui kuskil veebiavarustes (tulemus võib olla korralik häving) . Seega jäta asi rahule ja küsi sealt kus kohast soojuspumba said kuidas skeemi paremaks teha.
Müük, hooldus. info@coolhouse.ee
-
Kalvis
- Ehituspenskar

- Postitusi: 11512
- Liitunud: 03 Veebr 2008, 14:02
- On tänanud: 4 korda
- On tänatud: 331 korda
Re: Aku paak soojuspumbale
Lugemata postitus Postitas Kalvis »
-
martitam
- Uus kasutaja

- Postitusi: 16
- Liitunud: 20 Okt 2018, 00:05
- On tänanud: 1 korda
- On tänatud: 1 korda
Re: Aku paak soojuspumbale
Lugemata postitus Postitas xil »
- Ehitusfoorum
- ↳ Üldfoorum
- ↳ Ahjud, kaminad, korstnad
- ↳ Aiad, väravad
- ↳ Aknad, uksed
- ↳ Betoon ja betoonitooted
- ↳ Ehitustööriistad
- ↳ Ehitusmaterjalid
- ↳ Elekter, elektriseadmed
- ↳ Energiamärgis ja energiaaudit
- ↳ Fassaadide arutelu
- ↳ Katused, laed
- ↳ Hüdroisolatsioon
- ↳ Kaevud
- ↳ Konstruktsioonid, seinad
- ↳ Küttesüsteemid
- ↳ Palkmajad
- ↳ Projekteerimine, projektid
- ↳ Põrandad
- ↳ Puit ja puidutooted
- ↳ Restaureerimine
- ↳ Seadusandlus
- ↳ Soojustus, isolatsioon
- ↳ Saunad, dussiruumid, vannitoad, sanitaartehnika
- ↳ Siseviimistlus, värvid, plaatimistööd
- ↳ Ventilatsioon
- ↳ Veevarustus, kanalisatsioon, käimlad
- ↳ Vundamendid
- ↳ Naljanurk
- ↳ Arhiiv
- Ärifoorumid
- ↳ Otsin tööd
- ↳ Pakun tööd
- ↳ Ostu-müügifoorum
- ↳ Annan/võtan rendile
- ↳ Hinnapäring