vundament savipinnasel, väga kõrge põhjavesi

Kalvis
Ehituspenskar
Ehituspenskar
Postitusi: 11513
Liitunud: 03 Veebr 2008, 14:02
On tänanud: 4 korda
On tänatud: 331 korda

Re: vundament savipinnasel, väga kõrge põhjavesi

Lugemata postitus Postitas Kalvis »

Äärenurk kirjutas: 14 Mär 2023, 13:05
Kalvis kirjutas: 13 Mär 2023, 08:04 Edasi saalungid ja valaks monoliitbetooni.
Milleks lisaliigutusi teha? Paraja laiusega kraav savisse ja betoon sisse.
Kusjuures ma ise olen seda teinud ja see toimib. Saalung tuli vaid maapinnale.
aga antud juhul on väike erisus - vett on palju. Tavaliselt siis kaevatakse kopaga ja see teeb liiga laia kaevise (tänapäeval saab muidugi 20 cm koppa kah.). Saalungid on sel juhul mahu vähendamiseks.
aldas
Uus kasutaja
Uus kasutaja
Postitusi: 5
Liitunud: 19 Dets 2013, 18:38

Re: vundament savipinnasel, väga kõrge põhjavesi

Lugemata postitus Postitas aldas »

xxx111 kirjutas: 13 Mär 2023, 11:21
Projekteerimistingimustes on: lubatud tõsta pinda 30cm, sokkel 40cm.
Kinnistul on väga kõrge põhjavesi. Drenaazida pole võimalik. Märjal kevadel on asukohas vesi 10cm sügavusel (tasane asukoht). Pinnas ise: ~40cm mulda, ~40cm liiva, edasi savi...
Püüame midagi arvata selle põhjal
Lisame, et nimetatud liivast ei tea midagi aga oletame, et on "normaalne"

Eemaldame 40cm mulda
Täidame kogu ala 60cm so oleme tõstnud 20cm
Hoone aluse täidame liivaga, hoone ümber võime täita ka "muuga"
Hoone aluse tihendame kiht-kihilt
Iga tihendatud kihti "mõõdame"
Tihendustegur min 0,95, E1 min 60 MPa, E2/E1 max 2,2
Tõstame sokli, mis tähistaks ka 0-i 40cm sellest täidetud pinnast
Esialgse liiva peale on meil seega KM -1000
Paneme vundamendi KM -1200
See teeb planeeritavast maapinnast KM -800
Teeme madala süvisega lintvundamendi, soojustame vertikaalselt ja horisontaalselt
Taldmiku teeme betoonist paksusega 200mm
0-ni laome betoonõõnesplokist / armeerime ja betoneerime täis (5 rida)
Taldmiku laius vastavalt koormustele ja liiva kandevõimele (ARVESTADES KANDEVÕIMET VEES JA ARVESTADES, ET ALUSE SAVI KANDEVÕIME ON LÄHEDANE LIIVAGA)
Mul on üpris keeruline neid kihtide järjestust asjatundmatu inimesena jälgida. Numbrid hüppavad siia-sinna. Põhimõtteliselt, kui ma õigesti aru saan, siis on see ujuv lintvundament? "Väikemajad, Tiit Masso" vundamentide skeemidelt ma vist leidsin midagi sarnast läbilõike skeemina.

Algne situatsioon:
0.4m lubatud sokkel
0.3m lubatud tõsta pinda
0.4m muld (algne)
0.4m liiv (algne)
x savi (algne)

Sinu poolt kirjeldatud. Ma ei suuda nende ridade juurest edasi enam kihte paika seda:
Tõstame sokli, mis tähistaks ka 0-i 40cm sellest täidetud pinnast
Esialgse liiva peale on meil seega KM -1000
Paneme vundamendi KM -1200
See teeb planeeritavast maapinnast KM -800
Ma saan aru, et siin kirjeldab korraga tegevusi kihtide kaupa ja samas kirjeldab nende suhteid 0-ga ja maapinnaga, aga ma ei suuda seda jälgida. See vist kirjeldab mitut läbilõiget korraga. Pildita väga raske mul aru saada. Kas sul oleks võimalus abistava selgitusena panna kirja kihid vundamendi läbilõikes (skeemi vaadates on 3 erinevat läbilõiget võimalik saada - väljaspoole jääb, vundamendi keskelt vaadates kihid, perimeetri sees (põranda all) kihid), et mul oleks võimalik seda endale mentaalselt visualiseerida ning näiteks suhtes savi piiri algusega.

Näiteks ma ei saa aru, kas tald on mõeldud selle 0.6m täidetud liiva peale või mitte? Tihendamise jutt eeldaks, et tal on kandev ülesanne, et midagi peab tal peal olema. aga "Paneme vundamendi KM -1200" on juba sokklist alla tulles sellest 0.6m liivaga sama sügaval - justkui algse 0.4m liiva peal.
xxx111
külaline

Re: vundament savipinnasel, väga kõrge põhjavesi

Lugemata postitus Postitas xxx111 »

Kui sellest jutust aru ei saa, siis pole ise mõtet asjaga tegeleda...
Aga: puust ja punaseks...
aldas
Uus kasutaja
Uus kasutaja
Postitusi: 5
Liitunud: 19 Dets 2013, 18:38

Re: vundament savipinnasel, väga kõrge põhjavesi

Lugemata postitus Postitas aldas »

xxx111 kirjutas: 18 Mär 2023, 22:42 Kui sellest jutust aru ei saa, siis pole ise mõtet asjaga tegeleda...
Aga: puust ja punaseks...
Tänud pildi eest. See on arusaadav.


Eelmine kirjeldus ei olnud - näiteks rõhutad selle 0.6m liivakihi tihendamist, nimetad norme/standardeid sellega seoses ja jätad mainimata, et selle kihi funktsioon on põranda kandmiseks ja ei mitte vundamendi (seina/talla) aluseks. Selline konkreetsus justkui viitaks, et sellel on vundamendi endaga seoses kandev vms funktsioon. Põrand ja vundament ei ole ju alati samad.

Enivei, see tundub natuke surnud ring, kus võhik küsida ei tohi, kui algandmed täielikud ei ole (aga kuidas peaks teadma, mis vastamiseks vaja) ja selgitusi küsides ei peaks üldse asjaga tegema - sest noh, sa küsija oled nii rumal. Kui ekspert ei ole, siis pole mõtet üldse kirjutada. Kõik, mis teed on vale.

pole võimalik vastata, sest algandmed puudu, aga kui keegi teine (ilmselgelt mitte nii tark kui vastaja) vastab midagi, siis ego nõuab mentaalset musklisirgutamist ning saame algandmete puudumisest üle, Ja vastus saab ilmselgelt 7taseme inseneerile kohaselt täpne ning küsija on võiks üldse vait olla kui ta sellest aru ei saa.

Kui sa niivõrd valdkonnas haritud inimene oled ja foorumi külastajad nii võhikud, siis võiksid empaatiliselt ikka nende tasemele vastavalt vastata - nagu näiteks oma 5 aastasele lapsele maailma asju selgitamiseks on teine viis/sõnavara, kui kontoris kolleegist diplomeeritud insenerile elatsusmoodulit selgitada.
xxx111
külaline

Re: vundament savipinnasel, väga kõrge põhjavesi

Lugemata postitus Postitas xxx111 »

Eelmine kirjeldus oli piisav
Kirjeldatigi täidet põranda all
Soovitusi olen andnud siin (foorumis ma mõtlen) küllaga - esimene soovitus on pöörduda spetsialisti poole
Aga jah - kui eelpool kirjeldatud tekst jääb mõistmatuks, siis tõepoolest ongi soovitus mitte ise asjaga tegeleda
Ja soovitustega on veel selline asi, et ega neid ei pea kuulama...
Vabalt võib teha kellegi teise või kolmanda jne soovituste järgi

Aga Sa pole ainuke, kes mulle mõningaid asju ette heidab
Mõni on jälle tänanud
Mul on Sinule ja sinu toetajatele ettepanek: koguge kokku nt 20 foorumi kasutajat (kasutajaid peaks olema üle 20 000-nde) kes lihtsalt ei soovi minu kommentaare kuulda
Ja kustutan konto...
aldas
Uus kasutaja
Uus kasutaja
Postitusi: 5
Liitunud: 19 Dets 2013, 18:38

Re: vundament savipinnasel, väga kõrge põhjavesi

Lugemata postitus Postitas aldas »

xxx111 kirjutas: 18 Mär 2023, 23:54 Eelmine kirjeldus oli piisav
Kirjeldatigi täidet põranda all
Soovitusi olen andnud siin (foorumis ma mõtlen) küllaga - esimene soovitus on pöörduda spetsialisti poole
Aga jah - kui eelpool kirjeldatud tekst jääb mõistmatuks, siis tõepoolest ongi soovitus mitte ise asjaga tegeleda
Ja soovitustega on veel selline asi, et ega neid ei pea kuulama...
Vabalt võib teha kellegi teise või kolmanda jne soovituste järgi

Aga Sa pole ainuke, kes mulle mõningaid asju ette heidab
Mõni on jälle tänanud
Mul on Sinule ja sinu toetajatele ettepanek: koguge kokku nt 20 foorumi kasutajat (kasutajaid peaks olema üle 20 000-nde) kes lihtsalt ei soovi minu kommentaare kuulda
Ja kustutan konto...
Ära ole melodramaatiline ja lapsik. Inimesed ei soovi, et sa lahkuksid. Sa ole kogenud ja intelligentne inimene - seda inimesed siit otsivadki. Inimesed soovivad saada konstruktiivset ja täislausetega argumenteeritud tagasisidet, mitte lakoonilisi vastuseid, mis nõretavad valdkonnast sügavalt kibestunud nootidest.

kui sa arvad, et inimesed ei ole õppimisvõimelised - siis miks sa ennast piinad? sa toidad nii vaid oma kibestumist ja mürgitad ka teisi.

Kontoriinimesena ja mitte päris noore inimesena oled sa kindlasti oma eluteel näinud indiviide, kes koosolekutel on alati oponeerimas seal esitatud mõtteid, kõik on valesti, midagi ei ole võimalik teha või kui on tehtud, siis on kõik valesti. Kui lõpuks inimeste kannatus katkeb ning tollelt inimeselt küsitakse viisakalt,et mis on sinu ettepanekud või äkki sa selgitad mis on valesti ja kuidas oleks õigesti - siis see inimene vastab ,et see pole tema töö. See ei ole konstruktiivne - see ei aita lahendustele kaasa vaid pikapeale muudab tolle isiku osaks probleemist ettevõttes/asutuses/valdkonnas/diskussioonis. Need inimesed ei ole rumalad, tihti on ühed targemad inimesed koosolekul, aga nad on siiski oma intelligentsi väljundiks valinud oma teadmiste jagamise asemel vaid passiivselt agresiivselt õhkkonna toksiliseks muutmise. Tihti on sellise kibestumise algallikaks töö- või eraelustress. Olen olnud elus sarnases olukorras, kus muutusin nii negatiivseks, et enamusel mu kolleegidest on minuga suhtlemine ebamugav. Kõik oli halvasti tehtud ja eriti loll oli klient.

Sa oled haritud inimene, sinu erinevatest vastustest on seda näha. Selle asemel, et lakooniliselt öelda, et küsija on rumal ning tema mõte on poolik vastamiseks. Võiks empaatiliselt panna ennast teiste asemele - küsija ei diplomeeritud insener, ta ei tea ja tal pole seda kogemust mis sinul. Talle ei olegi mõnikord vaja numbrilist vastust, vaid piisaks selgitusest ning mõnikord näitest. Miks selliste andmete pealt ei ole võimalik vastata 100% kindlusega ning näitena - kui X on Y, siis Z, koos disclaimeriga, et see on õhust võetud näide. See oleks konstruktiivne ja aitaks ka järgmisi lugejaid, kes teevad enne küsimist foorumis eeltööd.

Vaata kui pikk mu esimene postitus oli. See oli pikk selle pärast, et uurisin enne kirjutamist ka vanemaid postitusti siin alateemas ja nägin sinu suhtumist "algandmete vähesusse" ja "võhikute" küsimustesse. Proovisin panna nii palju asju kirja, kui tean situatsioonist. Kuna ma ei ole ehituses tegusev inimene, veel vähem diplomeeritud insener, siis ilmselgelt ma ei tea kõike ette mainida ja nagu näha sinu vastusest, siis saab ka vastuse "poolikute" andmete pealt (kui su ego tunneb vajadust ennast arvamusliidrite hierarhias tõestamiseks).

Kui sa püüaks selgitada küsija tasemel, siis oleks tõenäoline, et mõni mitte päris juhm tegelane loeb vanemaid teemasi, eeltööd tehes, ja ei küsi neid "lolle" küsimusi, sest ta on saanud juba vastuse. Ja - alati on ning jääb osa inimesi, kes ei tee eeltööd. Neist ei ole mõtet lasta ennast häirida, oma meelerahu huvides.



p.s.

Teema kohta mõned võhiku küsimused:
* See näitena toodud vundament on 0.8m sügaval maapinnas ja ulatub vette. Mis sind ajendas just sellist lahendust pakkuma. Miks mitte täiesti veepinnat ülespoole. Miks mitte plaat? Mind huvitaks arutluskäik - miks midagi valitakse.
* Kas 1m vundamendi müür (5rida) on valikul on määravaks faktoriks, et vundament asuks ala 0.8m sügavusel (külmumispiir?) või on otsutuskohaks, et vundment moodustaks jäiga aluse, mis ei deformeeru/pandu, mille saab alles 5 reada piisavalt vastupidava, kui vundamendi alune pind ebaühtlaselt vertikaalselt liigub. Näiteks lõuna/läänekülg sulab ja põhjakülg on külmem või savi koostis on erinev ning selle tõttu niiskuspaisumine erienv.
* Ingliskeelses kirjanduses leiab ka mõiste "expansive clay", ehk savi mis paisub ja kahaneb vastavalt veesisaldusele. Kas Eesti kontektsis opereeritakse pigem "külmumisega" kui sellega, et savi võiks maja all liigniiskusest tulenevalt ka kevael/suvel/sügisel ebaühtlaselt paisuda veesisalduse tõttu. "plasticity index" PI on üks karakteristik, millega seda kirjeldatakse.
Expansive clay soils (also known as heavy clay or fat clay soil) are soft-textured soils containing minerals that undergo considerable volumetric changes during seasonal moisture fluctuations. They absorb water and expand (swell), as much as ten percent or more when wet, and crack (shrink) when dry.
xxx111
külaline

Re: vundament savipinnasel, väga kõrge põhjavesi

Lugemata postitus Postitas xxx111 »

Teema kohta mõned võhiku küsimused:
* See näitena toodud vundament on 0.8m sügaval maapinnas ja ulatub vette. Mis sind ajendas just sellist lahendust pakkuma. Miks mitte täiesti veepinnat ülespoole. Miks mitte plaat?
* Kas 1m vundamendi müür (5rida) on valikul on määravaks faktoriks, et vundament asuks ala 0.8m sügavusel (külmumispiir?) või on otsutuskohaks, et vundment moodustaks jäiga aluse, mis ei deformeeru/pandu, mille saab alles 5 reada piisavalt vastupidava, kui vundamendi alune pind ebaühtlaselt vertikaalselt liigub. Näiteks lõuna/läänekülg sulab ja põhjakülg on külmem või savi koostis on erinev ning selle tõttu niiskuspaisumine erienv.
* Ingliskeelses kirjanduses leiab ka mõiste "expansive clay", ehk savi mis paisub ja kahaneb vastavalt veesisaldusele. Kas Eesti kontektsis opereeritakse pigem "külmumisega" kui sellega, et savi võiks maja all liigniiskusest tulenevalt ka kevael/suvel/sügisel ebaühtlaselt paisuda veesisalduse tõttu. "plasticity index" PI on üks karakteristik, millega seda kirjeldatakse.
1. Aga miks vesi probleem on?
Ehitamise seisukohalt? Arvan, et sobival perioodil probleem pole / vajadusel ehitusaegne veetõrje (saab kraavidega, saab pumpadega, saab kombinatsiooniga)
Vundamenti ei taha panna täitele vaid looduslikule aluspinnasele
2. Määravaks sai hoopis sokli kõrgus ja see, et vundament ei toetuks täitele
3. Nii ja naa - esiteks on savi väga külmakerkeline ja teiseks kaotab leondudes ja "seal peal mässates" oluliselt kandevõimes
Minu pakutud näite puhul kumbki asi probleem pole

PS
Pakutud vaid 1 võimalik lahendus
Ei tähenda, et see oleks ainus / ainuõige

PPS
Pole ei melodraamatiline ega lapsik
Ei taha "jurada", kui tagasiside pigem negatiivne a-la Sinu väited: ülbe, kibestunud, lakooniline jne...
Olen konkreetne / ratsionaalne ja täpselt nii vastan - see võib meeldida või mitte
Ja kui piisav hulk inimesi leiab, et see on siin foorumis vastuvõetamatu siis nii on...
Ja ega siis polegi mõtet "jurada"
Urmas
autodidakt
Postitusi: 13127
Liitunud: 17 Apr 2009, 23:51
On tänanud: 407 korda
On tänatud: 445 korda

Re: vundament savipinnasel, väga kõrge põhjavesi

Lugemata postitus Postitas Urmas »

Kasutaja aldas, selleks, õppida lugema-arvutama, käisin ise 11 aastat koolis + paar aastat veel midagi. Arvatavasti on kasutaja xxx111 rohkem aastaid koolis käinud ja talle ette heita, et ei jaga oma tarkusi umbmääraste algandmete põhjal või kui vastab ilma põhjendamata ja lühidalt, et see või teine variant ei sobi, on vast veidi kohatu.süüdistada, et ta ei pane "lusikaga putru suhu". Kasutaja xxx111 ei ole su järeltulija, kellele ta peab aru andma. ;) Võib tunduda ülbe sõnastus, ei osanud paremini.
NB! Ei võta materiaalset vastutust oma kommentaarides soovitatu kasutamise eest! ;)
kaimagk
Ehitusveteran
Ehitusveteran
Postitusi: 1423
Liitunud: 02 Juun 2010, 17:53
On tänanud: 114 korda
On tänatud: 44 korda

Re: vundament savipinnasel, väga kõrge põhjavesi

Lugemata postitus Postitas kaimagk »

..... teemaalgataja saab vastused kuidas edasi toimedada kui loeb xxx111 esimest postitust. Esiteks peab teadma milline pinnas on, millist koormust see talub(kõikidele pinnastele on olemas sobiv lahendus) , kui suur/raske see maja sellele pinnasele mõeldud jaa nii nati edasi. Kui ise ei oska pinnase kandevõimet arvutada siis pead selle pinnaseuuringu andmed siis panema ja lootma et keegi teab vastuseid . Aga noh kes raatsib ja viitsib sellele raha kulutada :D . Üldiselt , vundament ikka alla külmumispiiri, pooltugevasti üledimensioneerida , jne. Või ikka lasta teha sellel kes oskab.
Siit foorumist sa vaevalt sellist infot saad.
Ps Osad foorumlased on raha eest nõus seda tegema, kuna kardavad et muidu jäävad oma 'leivast' ilma :D
xxx111
külaline

Re: vundament savipinnasel, väga kõrge põhjavesi

Lugemata postitus Postitas xxx111 »

Kasutaja xxx111 on käinud alg/põhi/keskkoolis/gümnaasiumis 12a
Peale seda on käinud ülikoolis 5a
Peale seda on asunud tööle projekteerimisvaldkonnas ehituskonstruktsioonide alal
Mõned aastad töötanud, sai mindud magistratuuri - see jäi lõpetamata kuna polnud võimalik ühildada õppimist/tööd/eraelu
Kogu töötamise ajal olen järjepidevalt läbinud erinevaid koolitusi (mis on üks kutse andmise, tõendamise jms osa)
Tänaseni käib järjepidev koolitustel osalemine
rye
Ehitusspets
Ehitusspets
Postitusi: 469
Liitunud: 15 Juul 2019, 22:54
On tänanud: 15 korda
On tänatud: 7 korda

Re: vundament savipinnasel, väga kõrge põhjavesi

Lugemata postitus Postitas rye »

Mul oli tüpselt sama lähteolukord, mis teemaalgatajal ja mina ategin nii:
- koorisin pinnase
- 40 cm kruusatäiet
- 20 cm kandev plaat, topeltarmeeringuga
- 20 cm EPS100
- 10 cm põrandaplaat
Mina olen seni nii aru saanud, et plaatvundamendiga on kehval savipinnasel eksimisvõimalus natuke väiksem.
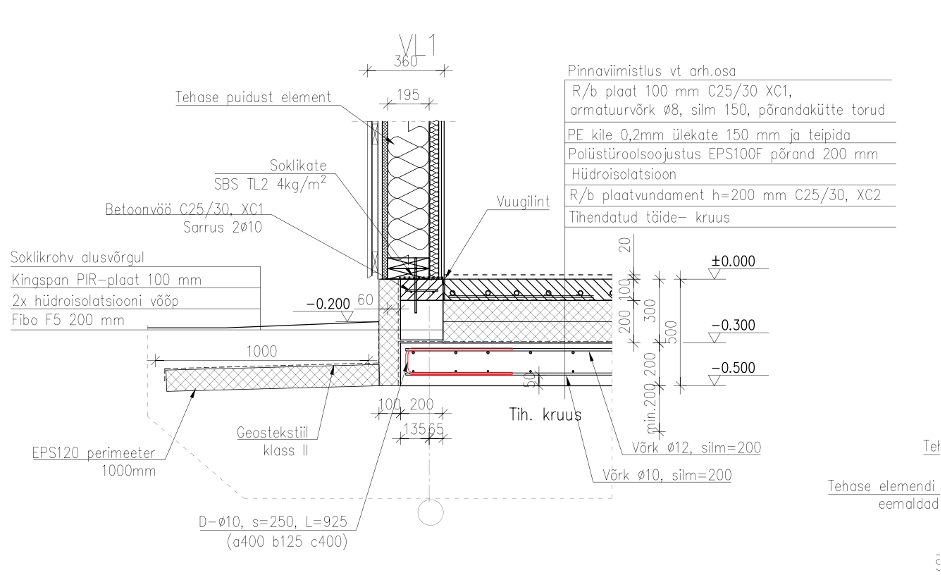
Lisan ristlõikejoonise
Picture 1.png
Aga kuna ma ise olen loomjult natuke põdeja tüüp, siis asendasin joonisel oleva ümber perimeetri jooksva fibo columbia plokiga ja panin vertikaalsed armatuurvardad läbi columbia avade ja sidusin selle kandva plaadi armeeringuga ja ka columbia peal jooksva betoonvööga. Selliselt sain 50 cm kõrguse monoliitse silluse ümber perimeetri jooksma. Lahendus on kindlasti kallim, kui tavaline ühekordne plaat. Hetkel 2 talve üle elanud, aga kiidan ikka enda lahendust :)
PS! väldime foorumis vastuseid stiilis "telli projekt", "mine esindusse", "kutsu professionaal" vms.
xxx111
külaline

Re: vundament savipinnasel, väga kõrge põhjavesi

Lugemata postitus Postitas xxx111 »

Mina olen seni nii aru saanud, et plaatvundamendiga on kehval savipinnasel eksimisvõimalus natuke väiksem.
No pole õige väide...
Plaatvundament on vaid üks vundamenditüüp - ei muud
Plaatvundamendi saab vabalt asendada VASTAVA lintvundamendiga, postvundamendiga vms

Aga meeldib pilt - tõepoolest tegemist PLAATVUNDAMENDIGA mitte pinnasel põrandaga...
Ja joonise "tehniline keel" viitab natuke professionaalsemale insenerile
vuuk
Ehituspenskar
Ehituspenskar
Postitusi: 2470
Liitunud: 15 Jaan 2008, 09:34
On tänanud: 71 korda
On tänatud: 133 korda

Re: vundament savipinnasel, väga kõrge põhjavesi

Lugemata postitus Postitas vuuk »

Ehitaja seisukohalt vaadatuna seisneb plaatvundamendi suur eelis selles, et maja ehitustöid teostada sellelt suhteliselt siledalt ja sirgelt töömaalt on parem. Materjalide ladustamine ning teisaldamine, tellingute paigaldamine ja teisaldamine jne.
Ehitaja töösse võrrelduna paljude teiste töödega on olnud siiani paraku raske "tugitoolimugavusi" tekitada, aga kui vähemasti jalgealune töö tasapind on ühtlane - seegi suur asi.
Kuid sellisel juhul oleks hea kui plaatvundamenti kavandav (arvutav) insener arvestakski projektis ka ehitamise ajal müüriplokkide aluste tekitatavate ajutise ladustamise punktkoormustega, sest vastasel juhul saab juba ehitamise faasis plaatvundament koormustest põhjustatud kahjustusi. Vastav informatsioon peaks projektis kenasti must-valgel kirjas olema, samuti see info, mitu päeva pärast plaatvundamendi ehitamist võib plaati koormata. mitte nii, nagu eelprojektide puhul kipub olema, (iga suvaline) ehitaja peaks tugevusarvutustega infot üle kontrollima, kas, mida ja millal plaat kannatab. Kui ehitusettevõtja ei ole vastava spetsialiteediga insener, siis temalt ei saa selliseid insenertehnilisi arvutusi eeldada.

200 mm kõrgune 2-kordse tööarmatuuriga plaat tundub sobilik plaatvundamendiks väiksemale majale kui alus on piisava ja ühtlase tugevusega, aga mõnel juhul kõlbaks pigem kandvaks betoonpõrandaks.
Praegusel aja ehitatakse eramud juba mitusada m2 pinnaga, mis lisaks pole kujult ka lihtne riskülik. Niisugusele majale tundub minu kõhutunde järgi selline plaat pigem kahtlasevõitu. Aga eelkõige oleneb ka aluse tugevusest ja koormuste jaotusest.
rye
Ehitusspets
Ehitusspets
Postitusi: 469
Liitunud: 15 Juul 2019, 22:54
On tänanud: 15 korda
On tänatud: 7 korda

Re: vundament savipinnasel, väga kõrge põhjavesi

Lugemata postitus Postitas rye »

xxx111 kirjutas: 06 Mai 2023, 19:53
Mina olen seni nii aru saanud, et plaatvundamendiga on kehval savipinnasel eksimisvõimalus natuke väiksem.
No pole õige väide...
Plaatvundament on vaid üks vundamenditüüp - ei muud
Plaatvundamendi saab vabalt asendada VASTAVA lintvundamendiga, postvundamendiga vms
Mina väitsin, et eksimisvõimalus on väiksem....
Ja pidasin silmas just ehitaja poolset nurkade sirgeks laskmist, et kui ehitaja unustab postide betooni vibramata.... võrreldes sellega, kui plaati ei vibra (mis mul juhtus)
Viimati muutis rye, 07 Mai 2023, 08:39, muudetud 1 kord kokku.
PS! väldime foorumis vastuseid stiilis "telli projekt", "mine esindusse", "kutsu professionaal" vms.
rye
Ehitusspets
Ehitusspets
Postitusi: 469
Liitunud: 15 Juul 2019, 22:54
On tänanud: 15 korda
On tänatud: 7 korda

Re: vundament savipinnasel, väga kõrge põhjavesi

Lugemata postitus Postitas rye »

vuuk kirjutas: 07 Mai 2023, 06:25
200 mm kõrgune 2-kordse tööarmatuuriga plaat tundub sobilik plaatvundamendiks väiksemale majale kui alus on piisava ja ühtlase tugevusega, aga mõnel juhul kõlbaks pigem kandvaks betoonpõrandaks.
Praegusel aja ehitatakse eramud juba mitusada m2 pinnaga, mis lisaks pole kujult ka lihtne riskülik. Niisugusele majale tundub minu kõhutunde järgi selline plaat pigem kahtlasevõitu. Aga eelkõige oleneb ka aluse tugevusest ja koormuste jaotusest.
Mind on selle 200mm plaadiga vaikselt tögatud (ka siin foorumis), et kas pommivarjendit ehitan vä?
Õnneks on väike puidust majake selle peal :)
PS! väldime foorumis vastuseid stiilis "telli projekt", "mine esindusse", "kutsu professionaal" vms.
xxx111
külaline

Re: vundament savipinnasel, väga kõrge põhjavesi

Lugemata postitus Postitas xxx111 »

rye kirjutas: 07 Mai 2023, 08:14
vuuk kirjutas: 07 Mai 2023, 06:25
200 mm kõrgune 2-kordse tööarmatuuriga plaat tundub sobilik plaatvundamendiks väiksemale majale kui alus on piisava ja ühtlase tugevusega, aga mõnel juhul kõlbaks pigem kandvaks betoonpõrandaks.
Praegusel aja ehitatakse eramud juba mitusada m2 pinnaga, mis lisaks pole kujult ka lihtne riskülik. Niisugusele majale tundub minu kõhutunde järgi selline plaat pigem kahtlasevõitu. Aga eelkõige oleneb ka aluse tugevusest ja koormuste jaotusest.
Mind on selle 200mm plaadiga vaikselt tögatud (ka siin foorumis), et kas pommivarjendit ehitan vä?
Õnneks on väike puidust majake selle peal :)
Sa ära lase end FOORUMIS sellistes küsimustes tögada...
Ma väidan (ja olen ka koolitustel korduvalt sel teemal sõna võtnud saades vastuseks mingi jura), et enamus praegu ehitatavaid ja igal võimalikul lehel reklaamitavaid "plaatvundamente" on ribidega ujuvad põrandad pinnasel mitte vundamendid...
xxx111
külaline

Re: vundament savipinnasel, väga kõrge põhjavesi

Lugemata postitus Postitas xxx111 »

Ehitaja seisukohalt vaadatuna seisneb plaatvundamendi suur eelis selles, et maja ehitustöid teostada sellelt suhteliselt siledalt ja sirgelt töömaalt on parem. Materjalide ladustamine ning teisaldamine, tellingute paigaldamine ja teisaldamine jne.
Insenertehniliselt pole absoluutselt mingi argument...
Ehitaja ehitab projekti järgi
Projekti ei tehta ehitaja mugavuse järgi vaid hoopis muude argumentide põhjal
vuuk
Ehituspenskar
Ehituspenskar
Postitusi: 2470
Liitunud: 15 Jaan 2008, 09:34
On tänanud: 71 korda
On tänatud: 133 korda

Re: vundament savipinnasel, väga kõrge põhjavesi

Lugemata postitus Postitas vuuk »

xxx111 kirjutas: 07 Mai 2023, 10:33
Insenertehniliselt pole absoluutselt mingi argument...
Ehitaja ehitab projekti järgi
Projekti ei tehta ehitaja mugavuse järgi vaid hoopis muude argumentide põhjal
Selline suhtumine on jah paraku meil laialt levinud, et ega ehitaja pole inimene - kuigi koolipingist on millegipärast kõrvu jäänud, et hea projekteerija mõtleb võimalikult kõikidest seisukohtadest lähtuvalt (ka töö tegemise lihtsuse, tootlikkuse, ehitaja kui tööinimese töötervise ine jne seisukohast, mitte ainult ühest või kahest ning enda mugavuse ja lihtsuse lähtepunktist. Aga jah - nagu näha, oleme õppinud erineva õppejõu tarkuste järgi.
Ja siis öeldakse, meil on tootlikkus madal, seda teist, kolmandat. Aga tootlikkus just suuresti sõltubki inseneridest, mitte niivõrd "labidameestest". Ei tea, millal meil sellest hakatakse aru saama.
Õnneks mul pensionipõlv juba paistab...
kunn24
Ehituspenskar
Ehituspenskar
Postitusi: 4131
Liitunud: 11 Veebr 2018, 14:45
On tänanud: 45 korda
On tänatud: 139 korda

Re: vundament savipinnasel, väga kõrge põhjavesi

Lugemata postitus Postitas kunn24 »

Projekti ei tehta ehitaja mugavuse järgi vaid hoopis muude argumentide põhjal
Paraku nii teevad paljud autoehitajad ja siis poevad kuskile kaugele peitu (muidu saaksid peksa). Kui kõrgemas koolis käisid, siis oli selline kursus nagu insenerieetika. Su lause näitab, et selles distsipliinis arvestust poleks teinud või oled pärast kooli lõpetamist unustanud. :).
Juhe teab kõike.
xxx111
külaline

Re: vundament savipinnasel, väga kõrge põhjavesi

Lugemata postitus Postitas xxx111 »

vuuk kirjutas: 07 Mai 2023, 10:52
xxx111 kirjutas: 07 Mai 2023, 10:33
Insenertehniliselt pole absoluutselt mingi argument...
Ehitaja ehitab projekti järgi
Projekti ei tehta ehitaja mugavuse järgi vaid hoopis muude argumentide põhjal
Selline suhtumine on jah paraku meil laialt levinud, et ega ehitaja pole inimene - kuigi koolipingist on millegipärast kõrvu jäänud, et hea projekteerija mõtleb võimalikult kõikidest seisukohtadest lähtuvalt (ka töö tegemise lihtsuse, tootlikkuse, ehitaja kui tööinimese töötervise ine jne seisukohast, mitte ainult ühest või kahest ning enda mugavuse ja lihtsuse lähtepunktist. Aga jah - nagu näha, oleme õppinud erineva õppejõu tarkuste järgi.
Ja siis öeldakse, meil on tootlikkus madal, seda teist, kolmandat. Aga tootlikkus just suuresti sõltubki inseneridest, mitte niivõrd "labidameestest". Ei tea, millal meil sellest hakatakse aru saama.
Õnneks mul pensionipõlv juba paistab...
Valesti aru saadud...
Projekti argumendid on muud - ehitaja mugavusega arvestatakse võimaluse piires

PS
Mina väidaks hoopis, et levinud on arusaam, et projekteerija on tellija "hüpiknukk"
xxx111
külaline

Re: vundament savipinnasel, väga kõrge põhjavesi

Lugemata postitus Postitas xxx111 »

kunn24 kirjutas: 07 Mai 2023, 11:04
Projekti ei tehta ehitaja mugavuse järgi vaid hoopis muude argumentide põhjal
Paraku nii teevad paljud autoehitajad ja siis poevad kuskile kaugele peitu (muidu saaksid peksa). Kui kõrgemas koolis käisid, siis oli selline kursus nagu insenerieetika. Su lause näitab, et selles distsipliinis arvestust poleks teinud või oled pärast kooli lõpetamist unustanud. :).
Insenerieetika on hoopis midagi muud...
Mis muu hulgas hõlmab parimate teadmiste põhjal parima tehn lahenduse valikut
Mitte aga seda, et ehitaja dikteerib tehn lahendusi

PS
Vt ka eelmine kommentaar
Viimati muutis xxx111, 07 Mai 2023, 11:15, muudetud 1 kord kokku.
kunn24
Ehituspenskar
Ehituspenskar
Postitusi: 4131
Liitunud: 11 Veebr 2018, 14:45
On tänanud: 45 korda
On tänatud: 139 korda

Re: vundament savipinnasel, väga kõrge põhjavesi

Lugemata postitus Postitas kunn24 »

Selle loo kontekstis hüpiknukku küll ei saa väita.
Insenerieetika haakub väga tugevalt sellga, et tooted peavad olema ka ehitajale/ remontijale käideldavad.
Ehk insener peab kogu aeg lähtuma ka sellest, et ei keeraks projektis kokku sellist sitta, mida ta ei taha näha, kui teda ennast sunnitakse ehitama/ remontima. Aga olgu, läheb antud teemast välja.
Viimati muutis kunn24, 07 Mai 2023, 11:46, muudetud 1 kord kokku.
Juhe teab kõike.
xxx111
külaline

Re: vundament savipinnasel, väga kõrge põhjavesi

Lugemata postitus Postitas xxx111 »

Kogemusest...
Kohtan pidevalt tellijaid kelle arvamus on a-la "mina tellin ja sina teed nii nagu ma tahan"
Minu arvamus selline pole...
xxx111
külaline

Re: vundament savipinnasel, väga kõrge põhjavesi

Lugemata postitus Postitas xxx111 »

Jutu lõppu lühike eetikakonspekt...
Iga kord kutset taotledes käib kutsestandardi juurde ka insenerieetika...
Ja olenemata Sinu arvamusest olen sellest küllalt teadlik...

Püstitan küsimuse teistmoodi...
Kui ehitaja tahab mugavat lahendust, kuid insener näeb, et see pole tehniliselt õige siis seda ei tehta
Urmas
autodidakt
Postitusi: 13127
Liitunud: 17 Apr 2009, 23:51
On tänanud: 407 korda
On tänatud: 445 korda

Re: vundament savipinnasel, väga kõrge põhjavesi

Lugemata postitus Postitas Urmas »

vuuk kirjutas: 07 Mai 2023, 06:25 mitte nii, nagu eelprojektide puhul kipub olema, (iga suvaline) ehitaja peaks tugevusarvutustega infot üle kontrollima, kas, mida ja millal plaat kannatab. Kui ehitusettevõtja ei ole vastava spetsialiteediga insener, siis temalt ei saa selliseid insenertehnilisi arvutusi eeldada.
Vahet ei ole, asjalik või suvaline ehitaja, ei ole tema asi teha omaniku järelvalvet ega pea tegema tellija või järelvalve poolt tegemata tööd. ;)
NB! Ei võta materiaalset vastutust oma kommentaarides soovitatu kasutamise eest! ;)
Vasta